Lib.at Logo
Startseite Makler Liste Gespeicherte Immobilien
Einloggen oder Registrieren Für Makler

TOP-GESCHÄFTSSTANDORT zu KAUFEN !!!

€ 170.000
€ 2.267 / m²
9020 Klagenfurt am Wörthersee
  • sofort

Beschreibung

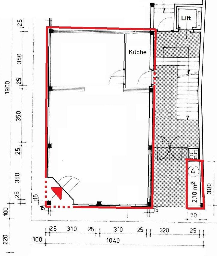
Bei diesem Geschäftslokal handelt es sich um 2 miteinander verbundene Geschäftslokale die sehr zentral auf einer sehr stark frequentierten Straße, der Klagenfurter Altstadt, liegen! Sowohl der Alte Platz als auch der Neue Platz befinden sich in unmittelbarer Nähe!

Geschäftsfläche:

a) Erdgeschoss: 75 qm

b) WC-Keller: 3,58 qm

c) Keller: 14 qm

d) Vitrine: 2,10 qm

–––––––––––––––––––––––––––––––––––

Die Gesamtfläche beträgt 92,58 qm.

Der Personenlift im Haus fährt auch in das UG

Die Bilder wurden mittels KI belebter gestaltet.

Für weitere Informationen und Besichtigungstermine wenden Sie sich bitte an

...

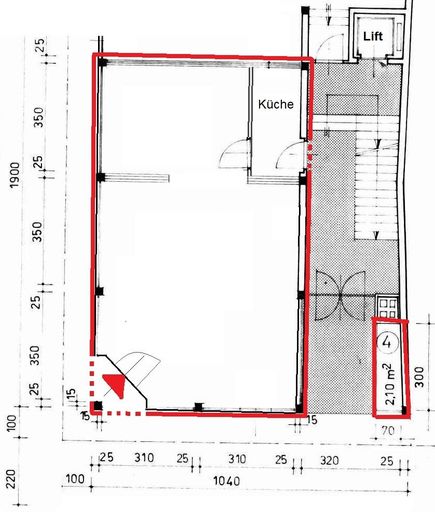
Bei diesem Geschäftslokal handelt es sich um 2 miteinander verbundene Geschäftslokale die sehr zentral auf einer sehr stark frequentierten Straße, der Klagenfurter Altstadt, liegen! Sowohl der Alte Platz als auch der Neue Platz befinden sich in unmittelbarer Nähe! 


Geschäftsfläche:


a) Erdgeschoss: 75 qm


b) WC-Keller: 3,58 qm


c) Keller: 14 qm


d) Vitrine: 2,10 qm


–––––––––––––––––––––––––––––––––––


Die Gesamtfläche beträgt 92,58 qm.


 


Der Personenlift im Haus fährt auch in das UG


Die Bilder wurden mittels KI belebter gestaltet.


 


Für weitere Informationen und Besichtigungstermine wenden Sie sich bitte an











 




























Mag. Ulrike Brunner
 


Immobilienmaklerin



















ULLI IMMO / Lebensräume die passen.



Alter Platz 25 | A-9020 Klagenfurt am Wörthersee



+43 (0) 463 203120 | +43 (0) 676 4680409



www.ulli-immo.at | office@ulli-immo.at



 




 


Pflichtinformationen gemäß Artikel 13 DSGVO 
Im Falle des Erstkontakts sind wir gemäß Art. 12, 13 DSGVO verpflichtet, Ihnen folgende datenschutzrechtliche Pflichtinformationen zur Verfügung zu stellen: Wenn Sie uns per E-Mail kontaktieren, verarbeiten wir Ihre personenbezogenen Daten nur, soweit an der Verarbeitung ein berechtigtes Interesse besteht (Art. 6 Abs. 1 lit. f DSGVO), Sie in die Datenverarbeitung eingewilligt haben (Art. 6 Abs. 1 lit. a DSGVO), die Verarbeitung für die Anbahnung, Begründung, inhaltliche Ausgestaltung oder Änderung eines Rechtsverhältnisses zwischen Ihnen und uns erforderlich sind (Art. 6 Abs. 1 lit. b DSGVO) oder eine sonstige Rechtsnorm die Verarbeitung gestattet. Ihre personenbezogenen Daten verbleiben bei uns, bis Sie uns zur Löschung auffordern, Ihre Einwilligung zur Speicherung widerrufen oder der Zweck für die Datenspeicherung entfällt (z. B. nach abgeschlossener Bearbeitung Ihres Anliegens). Zwingende gesetzliche Bestimmungen – insbesondere steuer- und handelsrechtliche Aufbewahrungsfristen – bleiben unberührt. Sie haben jederzeit das Recht, unentgeltlich Auskunft über Herkunft, Empfänger und Zweck Ihrer gespeicherten personenbezogenen Daten zu erhalten. Ihnen steht außerdem ein Recht auf Widerspruch, auf Datenübertragbarkeit und ein Beschwerderecht bei der zuständigen Aufsichtsbehörde zu. Ferner können Sie die Berichtigung, die Löschung und unter bestimmten Umständen die Einschränkung der Verarbeitung Ihrer personenbezogenen Daten verlangen. Details entnehmen Sie unserer Datenschutzerklärung. Unseren Datenschutzbeauftragten erreichen Sie unter office@ulli-immo.at . 

Sonstiges:

Wir ersuchen um Verständnis, dass wir aufgrund unserer Nachweispflicht gegenüber dem Eigentümer / der Eigentümerin nur Anfragen mit vollständigen Kontaktdaten (Name, Adresse, Telefonnummer, E-Mail) bearbeiten können.

Sämtliche Angaben zum beschriebenen Mietobjekt sind ohne Gewähr und basieren auf Informationen und Unterlagen, die vom Eigentümer der Liegenschaft bzw. Dritten zur Verfügung gestellt wurden. Für Vollständigkeit, Richtigkeit und Aktualität aller Angaben und Abmessungen wird keine Gewähr übernommen. Allfällige Änderungen, Irrtümer, Satz- und Druckfehler vorbehalten.

Provision:

Wir bitten um Standortprüfung und dürfen der guten Ordnung halber festhalten, dass bei Erwerb oder Anmietung eines von uns namhaft gemachten Objektes eine Vermittlungsprovision in der jeweils ausgewiesenen Höhe in Rechnung gestellt wird. Die Provisionspflicht besteht auch dann, wenn Sie die Ihnen überlassenen Informationen an Dritte weitergeben. Für dieses Angebot gelten die Bestimmungen des Maklergesetzes idgF. BGB Nr.262/96 einschließlich des § 15 Maklergesetz als vereinbart. Die Informationen und Angaben beruhen auf Unterlagen des Abgebers und sind ohne Gewähr. Nebenkosten: 1,1% Eintragungsgebühr, 3,5% Grunderwerbsteuer, Vermittlungsprovision 3% bzw 3 BMM + 20% MWSt.

 


Der Vermittler ist als Doppelmakler tätig.


Infrastruktur / Entfernungen

Gesundheit
Arzt <500m
Apotheke <500m
Krankenhaus <1.000m
Klinik <1.000m
Kinder & Schulen
Schule <500m
Kindergarten <500m
Universität <500m
Höhere Schule <500m
Nahversorgung
Supermarkt <500m
Bäckerei <500m
Einkaufszentrum <500m
Sonstige
Bank <500m
Geldautomat <500m
Post <500m
Polizei <500m
Verkehr
Bus <500m
Autobahnanschluss <3.500m
Bahnhof <1.000m
Flughafen <3.500m
Angaben Entfernung Luftlinie / Quelle: OpenStreetMap

Objektdaten

Ausstattung

  • Klimatisiert
  • Zentralheizung
  • Fern Befeuerung

Zustand

HWB
68.18 kWh/m² pro Jahr
Klasse HWB
C

Flächen

Anzahl der sep. WCs
1
Nutzfläche
75m²
Lagerfläche
14m²
Verkaufsfläche
75m²
Kellerfläche
14m²

Kosten

Kaufpreis Brutto
€ 170.000,00
Betriebskosten
€ 318,74
Heizkosten
€ 101,63
Sonstige Kosten
€ 132,81

Verwaltung

Verfügbar ab
sofort