Historische Remise, neuer Glanz – einzigartiges Ziegelensemble in Wien Leopoldstadt
Beschreibung
Diese außergewöhnliche Liegenschaft vereint Wiener Industriegeschichte mit stabiler Rendite: Eine charmante, historische Ziegelremise im 2. Wiener Gemeindebezirk, liebevoll erhalten und aktuell als Lebensmittelmarkt genutzt.
Der Mieter ist eine bekannte österreichische Supermarktkette, die für Stabilität, Bonität und langfristige Partnerschaften steht. Die Nutzung erfolgt im Rahmen eines Baurechts, das bis 31. Dezember 2035 läuft. Der Baurechtszins beträgt 95.875 € alle 6 Monate, also im Jahr 191.750,- Euro
Der Mieter zahlt 28.259,29 Nettomiete, also im Jahr 339.111,48 Euro Es bleiben im Jahr netto übrig: 147.361,48
(Baurechtszins und Miete sind indexangepasst)
BK: 2569,45
Wenn Sie eine Verhandlung mit dem Baurechtsgeber über eine Verlängerung erfolgreich...
Diese außergewöhnliche Liegenschaft vereint Wiener Industriegeschichte mit stabiler Rendite:
Eine charmante, historische Ziegelremise im 2. Wiener Gemeindebezirk, liebevoll erhalten und aktuell als Lebensmittelmarkt genutzt.
Der Mieter ist eine bekannte österreichische Supermarktkette, die für Stabilität, Bonität und langfristige Partnerschaften steht.
Die Nutzung erfolgt im Rahmen eines Baurechts, das bis 31. Dezember 2035 läuft.
Der Baurechtszins beträgt 95.875 € alle 6 Monate, also im Jahr 191.750,- Euro
Der Mieter zahlt 28.259,29 Nettomiete, also im Jahr 339.111,48 Euro
Es bleiben im Jahr netto übrig: 147.361,48
(Baurechtszins und Miete sind indexangepasst)
BK: 2569,45
Wenn Sie eine Verhandlung mit dem Baurechtsgeber über eine Verlängerung erfolgreich gestalten, haben Sie noch ein wirtschaftliches Upsite.
Dank der markanten Ziegelarchitektur, der zentralen Lage und der etablierten Nutzung bietet dieses Objekt eine attraktive und sichere Investmentmöglichkeit mit solidem Ertragspotenzial bis zum Ende der Baurechtslaufzeit.
Verkehrsanbindung:
Die Liegenschaft ist hervorragend angebunden – mehrere Buslinien befinden sich in unmittelbarer Nähe, und die U1-Station Vorgartenstraße ist in nur 5 Gehminuten erreichbar. Dadurch ist das Objekt sowohl für Kunden als auch für Lieferverkehr optimal erschlossen.
Der Energieausweis wird nach Anfrage beim Eigentümer gerne zur Verfügung gestellt.
Kontakt:
Für einen Besichtigungstermin oder nähere Informationen steht Ihnen Herr Augenhammer gerne jederzeit unter 0660 4678417 zur Verfügung.
Nebenkosten:
3% Provision zzgl. 20% USt, damit Sie von dieser Gelegenheit erfahren
1,1% Eintragung Grundbuch
3,5% Grunderwerbssteuer
Bis zu 3% für die Kaufvertragserrichtung
Nebenkosten für die Finanzierung
Es wird darauf hingewiesen, dass die Boubeva Makler GmbH als Doppelmakler tätig ist, und dass zwischen dem Abgeber und der Boubeva Makler GmbH ein wirtschaftliches und familiäres Naheverhältnis besteht. Es kann, aufgrund von zeitlichen Änderungen, zu Abweichungen der Angaben kommen.
Hinweis gemäß Energieausweisvorlagegesetz: Ein Energieausweis wurde vom Eigentümer bzw. Verkäufer, nach unserer Aufklärung über die generell geltende Vorlagepflicht, sowie Aufforderung zu seiner Erstellung noch nicht vorgelegt. Daher gilt zumindest eine dem Alter und der Art des Gebäudes entsprechende Gesamtenergieeffizienz als vereinbart. Wir übernehmen keinerlei Gewähr oder Haftung für die tatsächliche Energieeffizienz der angebotenen Immobilie.
Wir weisen darauf hin, dass zwischen dem Vermittler und dem zu vermittelnden Dritten ein familiäres oder wirtschaftliches Naheverhältnis besteht.
Der Vermittler ist als Doppelmakler tätig.
Infrastruktur / Entfernungen
Gesundheit
Arzt <500m
Apotheke <500m
Klinik <500m
Krankenhaus <2.000m
Kinder & Schulen
Schule <500m
Kindergarten <500m
Universität <1.000m
Höhere Schule <2.500m
Nahversorgung
Supermarkt <500m
Bäckerei <500m
Einkaufszentrum <2.000m
Sonstige
Geldautomat <500m
Bank <500m
Post <1.000m
Polizei <1.000m
Verkehr
Bus <500m
U-Bahn <500m
Straßenbahn <500m
Bahnhof <500m
Autobahnanschluss <1.500m
Angaben Entfernung Luftlinie / Quelle: OpenStreetMap
Objektdaten
Ausstattung
- Teeküche
- Massiv Bauweise
Dokumente / Links
Flächen
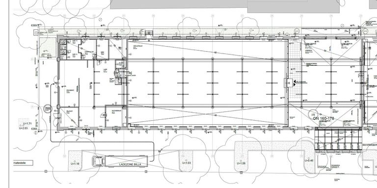
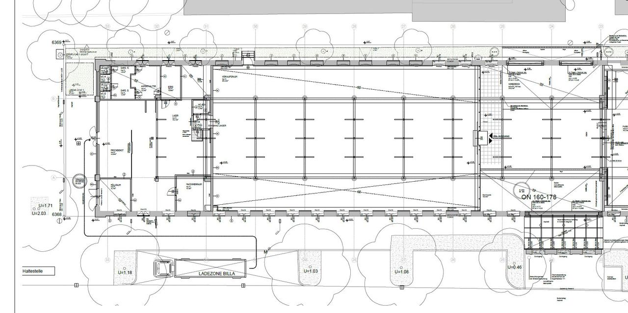
- Gesamtfläche
- 3.953m²
- Lagerfläche
- 174m²
- Verkaufsfläche
- 655m²
Kosten
- Kaufpreis Brutto
- € 1.600.000,00
- Betriebskosten
- € 2.569,45
Immobilien im Einzelhandel zum Kaufen in Österreich
Immobilien im Einzelhandel zum Kaufen in Österreich
Immobilien im Einzelhandel zum Kaufen in Österreich
Andere Besucher suchen nach...
- Grundstücke kaufen in 3400 Weidlingbach
- Wohnungen kaufen in 4663 Laakirchen
- Häuser in 7471 Rechnitz
- Wohnungen in 2410 Hainburg an der Donau
- Häuser kaufen in 2432 Schwadorf
- Wohnungen kaufen in 3002 Purkersdorf
- Häuser in 3150 Wilhelmsburg
- Wohnungen kaufen in 3470 Engelmannsbrunn
- Grundstücke kaufen im Bezirk Mattersburg
- Grundstücke kaufen im Bezirk Gmunden