*** MIETANBOT LIEGT VOR *** Historischer Raum aus 1620 mit 4,16 m Höhe – vielseitig nutzbar
-
ab sofort
Beschreibung
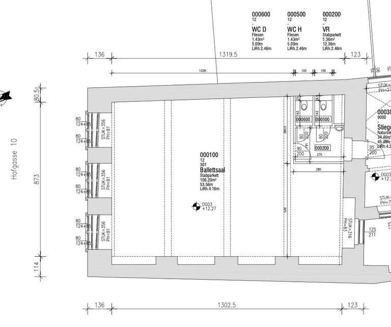
Willkommen in Ihrer einzigartigen Immobilie in zentraler Lage von Graz! Dieser beeindruckende Raum mit 119,72 m² im 3. Obergeschoss stammt ursprünglich aus dem Jahr 1620 und besticht durch historisches Flair, hohe Repräsentanz und eine Raumhöhe von 4,16 m – ideal für Yoga, Tanz- oder Fitnesskurse, Workshops, Seminare, exklusive Veranstaltungen oder andere vielseitige Nutzungen.
Vielseitige Nutzungsmöglichkeiten
Die offene, helle Fläche bietet flexible Gestaltungsmöglichkeiten. Ob als:
-
Yoga- oder Meditationsraum
-
Tanz- oder Fitnessstudio
-
Workshop- oder Seminarraum
-
Exklusiver Event- oder Ballsaal
-
Kreativ- oder Präsentationsfläche
…der Raum passt sich individuell Ihren Ideen und...
Willkommen in Ihrer einzigartigen Immobilie in zentraler Lage von Graz! Dieser beeindruckende Raum mit 119,72 m² im 3. Obergeschoss stammt ursprünglich aus dem Jahr 1620 und besticht durch historisches Flair, hohe Repräsentanz und eine Raumhöhe von 4,16 m – ideal für Yoga, Tanz- oder Fitnesskurse, Workshops, Seminare, exklusive Veranstaltungen oder andere vielseitige Nutzungen.
Vielseitige Nutzungsmöglichkeiten
Die offene, helle Fläche bietet flexible Gestaltungsmöglichkeiten. Ob als:
Yoga- oder Meditationsraum
Tanz- oder Fitnessstudio
Workshop- oder Seminarraum
Exklusiver Event- oder Ballsaal
Kreativ- oder Präsentationsfläche
…der Raum passt sich individuell Ihren Ideen und Anforderungen an.
Besondere Merkmale:
Historischer Charme aus 1620 kombiniert mit moderner Ausstattung
Raumhöhe 4,16 m für ein luftiges, großzügiges Ambiente
Hochwertige Fliesen- und Parkettböden, ideal für Bewegung und Kurse
Zentralheizung für angenehme Temperaturen
Personenaufzug für barrierefreien Zugang
Großartiger Stadtblick, der Ihrer Nutzung eine besondere Note verleiht
Zentrale Lage mit optimaler Infrastruktur
Die Lage dieser Immobilie ist unschlagbar:
Öffentliche Verkehrsmittel (Bus, Straßenbahn, Bahnhof) in unmittelbarer Nähe
Einkaufsmöglichkeiten, Supermärkte und Bäckereien bequem erreichbar
Ärzte, Apotheken und Kliniken in der Umgebung
Hier profitieren Sie von einer perfekt erreichbaren, repräsentativen Umgebung, die Teilnehmer, Kunden oder Gäste gleichermaßen begeistert.
Konditionen
Monatliche Miete: 2.219,59 €
Fläche: 119,72 m²
Etage: 3. OG
Zugang: Personenaufzug
Fazit
Dieser Raum ist mehr als nur eine Immobilie – er ist eine Bühne für Ihre Ideen. Historisches Flair trifft auf moderne Flexibilität: Nutzen Sie den Raum für Yoga-, Tanz- oder Fitnesskurse, Workshops, Seminare, Events oder andere kreative Zwecke – alles ist möglich in dieser einzigartigen, zentral gelegenen Fläche in Graz.
📞 Vereinbaren Sie noch heute einen Besichtigungstermin und entdecken Sie die vielseitigen Möglichkeiten dieser historischen Immobilie!
Wir weisen darauf hin, dass zwischen dem Vermittler und dem zu vermittelnden Dritten ein familiäres oder wirtschaftliches Naheverhältnis besteht.
Der Vermittler ist als Doppelmakler tätig.
Infrastruktur / Entfernungen
Gesundheit
Arzt <250m
Apotheke <250m
Klinik <750m
Krankenhaus <750m
Kinder & Schulen
Schule <250m
Kindergarten <500m
Universität <250m
Höhere Schule <250m
Nahversorgung
Supermarkt <250m
Bäckerei <250m
Einkaufszentrum <750m
Sonstige
Geldautomat <500m
Bank <500m
Post <750m
Polizei <500m
Verkehr
Bus <250m
Straßenbahn <250m
Autobahnanschluss <5.250m
Bahnhof <500m
Flughafen <9.500m
Angaben Entfernung Luftlinie / Quelle: OpenStreetMap
Objektdaten
Ausstattung
- Fliesenboden
- Parkettboden
- Zentralheizung
- Personen Fahrstuhl
- Massiv Bauweise
Zustand
- Zustand
- GEPFLEGT
- Baujahr
- 1620
- Alter
- ALTBAU
- HWB
- 71.8 kWh/m² pro Jahr
- Klasse HWB
- C
- fGEE
- 1.2
- Klasse fGEE
- C
Flächen
- Anzahl der Zimmer
- 1
- Anzahl der sep. WCs
- 2
- Nutzfläche
- 120m²
Kosten
- Gesamtmiete Brutto
- € 2.219,59
- Miete
- € 1.556,36
- Betriebskosten
- € 257,39
- Heizkosten
- € 119,72
- Sonstige Kosten
- € 35,91
- Umsatzsteuer
- € 393,87
Verwaltung
- Verfügbar ab
- ab sofort
- Mietdauer
- bis 3,0 Jahre
Immobilien im Einzelhandel zum Mieten in Österreich
Immobilien im Einzelhandel zum Mieten in Österreich
Immobilien im Einzelhandel zum Mieten in Österreich
Andere Besucher suchen nach...
- Grundstücke kaufen in 3400 Weidlingbach
- Wohnungen kaufen in 4663 Laakirchen
- Häuser in 7471 Rechnitz
- Wohnungen in 2410 Hainburg an der Donau
- Häuser kaufen in 2432 Schwadorf
- Wohnungen kaufen in 3002 Purkersdorf
- Häuser in 3150 Wilhelmsburg
- Wohnungen kaufen in 3470 Engelmannsbrunn
- Grundstücke kaufen im Bezirk Mattersburg
- Grundstücke kaufen im Bezirk Gmunden