VIELSEITIGE SHOWROOMFLÄCHE in Graz St. Peter!
-
sofort
Beschreibung
In gut angebundener Lage in Graz, an der St.-Peter-Hauptstraße, gelangt diese vielseitig nutzbare Gewerbefläche zur Vermietung.
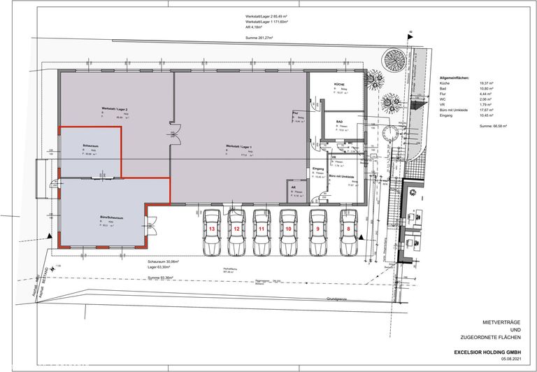
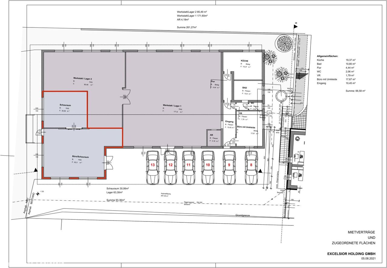
Die Fläche wurde bislang erfolgreich als Showroom für hochwertige Wohnmöbel und Küchen genutzt und eignet sich aufgrund ihrer offenen Struktur, der angenehmen Raumwirkung und der schönen Parkettböden ideal für unterschiedliche Nutzungskonzepte.
Ob als Showroom für Einrichtung, Design oder Lifestyle-Produkte, als Studio, Atelier oder Ausstellungsfläche – ebenso ist eine Nutzung als Büro mit Schauraum, Beratungsfläche oder kreativer Arbeitsraum gut vorstellbar. Die Räumlichkeiten lassen sich flexibel gestalten und individuell an die jeweiligen Anforderungen anpassen.
In der Ausstattung verbleiben die bestehende Showroom-Küche sowie die vorhandenen Beleuchtungskörper und...
In gut angebundener Lage in Graz, an der St.-Peter-Hauptstraße, gelangt diese vielseitig nutzbare Gewerbefläche zur Vermietung.
Die Fläche wurde bislang erfolgreich als Showroom für hochwertige Wohnmöbel und Küchen genutzt und eignet sich aufgrund ihrer offenen Struktur, der angenehmen Raumwirkung und der schönen Parkettböden ideal für unterschiedliche Nutzungskonzepte.
Ob als Showroom für Einrichtung, Design oder Lifestyle-Produkte, als Studio, Atelier oder Ausstellungsfläche – ebenso ist eine Nutzung als Büro mit Schauraum, Beratungsfläche oder kreativer Arbeitsraum gut vorstellbar. Die Räumlichkeiten lassen sich flexibel gestalten und individuell an die jeweiligen Anforderungen anpassen.
In der Ausstattung verbleiben die bestehende Showroom-Küche sowie die vorhandenen Beleuchtungskörper und können vom neuen Mieter weiterhin genutzt werden.
Zusätzlich besteht die Möglichkeit, die angrenzende Lagerfläche anzumieten und das Nutzungskonzept dadurch sinnvoll zu erweitern – ideal für Lagerung, Logistik oder ergänzende Arbeitsbereiche.
Die Parkettböden verleihen der Fläche eine warme, einladende Atmosphäre und bieten eine hochwertige Basis für verschiedenste Branchen und Konzepte.
Eine attraktive Gewerbefläche für Unternehmen, die gut erreichbar sein möchten und Raum für Entwicklung, Präsentation und neue Ideen suchen.
----------------------------------------------
MIETKOSTEN:
- Showroom: € 1.400,40 netto / p.m.
- zzgl. Strom nach Verbrauch
- Parkplatz: Freifläche € 40,00 netto / p.m. pro Abstellplatz
Alle Kosten verstehen sich zzgl.Ust
Mindestmietdauer: 3 - 5 Jahre befristet
Kaution: € 6.000,00
------------------------------------------------------
Die Lage an einer gut angebundenen Hauptstraße gewährleistet eine bequeme Erreichbarkeit für Kunden und Lieferanten!
Für weitere Informationen und eine individuelle Besichtigung stehe ich Ihnen gerne zur Verfügung.
Ich freue mich auf Ihre Kontaktaufnahme!
Gertrud Sablatnig, MBA
Staatlich konzessionierte Immobilienmaklerin
Lindengasse 1/3c, 8501 Lieboch
Tel: +43/664 88 14 04 85
E-Mail: gertrud@immobilien-sablatnig.at
Alle Informationen beruhen auf Angaben des Abgebers und sind ohne Gewähr. Weiters möchten wir Sie informieren, dass ein Provisionsanspruch erst nach Unterzeichnung eines Kaufanbots besteht. Eine Besichtigung ist selbstverständlich unverbindlich und kostenlos.
WICHTIGER gesetzlicher HINWEIS:
Wir bitten um Ihr Verständnis, dass wir aufgrund einer neuen EU-Richtlinie (§11FAGG) Unterlagen und Besichtigungstermine für unsere Immobilien erst dann zusenden und vereinbaren können, wenn Sie uns bestätigen, dass Sie über Ihre Rücktrittsrechte aufgeklärt wurden und unser sofortiges Tätigwerden wünschen.
Des weiteren ersuchen wir um Verständnis, dass wir gemäß österreichischer Gewerbeordnung, sowie unserer Nachweispflicht gegenüber dem Auftraggeber nur Anfragen mit vollständigem Namen, Anschrift, Telefonnummer und Mail Adresse bearbeiten bzw. detaillierte Unterlagen weiterleiten können.
Wir bitten um Ihr Verständnis, vielen Dank!
Hinweis gemäß Energieausweisvorlagegesetz: Ein Energieausweis wurde vom Eigentümer bzw. Verkäufer, nach unserer Aufklärung über die generell geltende Vorlagepflicht, sowie Aufforderung zu seiner Erstellung noch nicht vorgelegt. Daher gilt zumindest eine dem Alter und der Art des Gebäudes entsprechende Gesamtenergieeffizienz als vereinbart. Wir übernehmen keinerlei Gewähr oder Haftung für die tatsächliche Energieeffizienz der angebotenen Immobilie.
Wir weisen darauf hin, dass zwischen dem Vermittler und dem zu vermittelnden Dritten ein familiäres oder wirtschaftliches Naheverhältnis besteht.
Der Vermittler ist als Doppelmakler tätig.
Infrastruktur / Entfernungen
Gesundheit
Arzt <500m
Apotheke <1.500m
Klinik <4.000m
Krankenhaus <5.000m
Kinder & Schulen
Schule <1.000m
Kindergarten <1.500m
Universität <3.000m
Höhere Schule <4.500m
Nahversorgung
Supermarkt <500m
Bäckerei <1.000m
Einkaufszentrum <1.000m
Sonstige
Geldautomat <500m
Bank <2.000m
Post <2.000m
Polizei <2.000m
Verkehr
Bus <500m
Straßenbahn <2.000m
Autobahnanschluss <1.500m
Bahnhof <1.500m
Flughafen <7.500m
Angaben Entfernung Luftlinie / Quelle: OpenStreetMap
Objektdaten
Zustand
- Zustand
- NEUWERTIG
Flächen
- Bürofläche
- 93m²
Kosten
- Gesamtmiete Brutto
- € 1.680,48
- Kaution
- € 6.000,00
- Miete
- € 1.400,40
- Umsatzsteuer
- € 280,08
Verwaltung
- Verfügbar ab
- sofort
Immobilien im Einzelhandel zum Mieten in Österreich
Immobilien im Einzelhandel zum Mieten in Österreich
Immobilien im Einzelhandel zum Mieten in Österreich
Andere Besucher suchen nach...
- Grundstücke kaufen in 3400 Weidlingbach
- Wohnungen kaufen in 4663 Laakirchen
- Häuser in 7471 Rechnitz
- Wohnungen in 2410 Hainburg an der Donau
- Häuser kaufen in 2432 Schwadorf
- Wohnungen kaufen in 3002 Purkersdorf
- Häuser in 3150 Wilhelmsburg
- Wohnungen kaufen in 3470 Engelmannsbrunn
- Grundstücke kaufen im Bezirk Mattersburg
- Grundstücke kaufen im Bezirk Gmunden