Ein Juwel mitten in der Fußgängerzone sucht einen NACHMIETER !
-
Jänner
Beschreibung
Diese stilvolle Geschäftsfläche befinden sich in einem der repräsentativsten Gebäude im Altstadtzentrum von Klagenfurt!
Direkt in der Kramergasse (Hauptfrequenzzone Richtung City Arkaden) liegt !
Abgesehen von der einzigartigen und Architektur besticht diese Fläche natürlich auch durch die schönen Schaufensterfronten und die Nähe zu den City Arkaden, dem Neuen Platz und dem Alten Platz!
Ausstattung:
- Zwei Schaufenster
- Zwei Vitrinen
- Fernwärme, ein direkter Vertrag mit der EKG (Fernwärme) zu machen.
- WC mit Entlüftung, Handwaschbecken
Eckdaten :
Das Geschäftslokal liegt in mitten der Kramergasse:
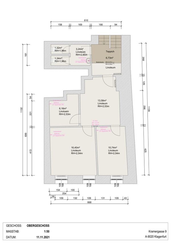
Verkaufslokal mit ca. 61,79 m2
OG mit...
Diese stilvolle Geschäftsfläche befinden sich in einem der repräsentativsten Gebäude im Altstadtzentrum von Klagenfurt!
Direkt in der Kramergasse (Hauptfrequenzzone Richtung City Arkaden) liegt !
Abgesehen von der einzigartigen und Architektur besticht diese Fläche natürlich auch durch die schönen Schaufensterfronten und die Nähe zu den City Arkaden, dem Neuen Platz und dem Alten Platz!
Ausstattung:
- Zwei Schaufenster
- Zwei Vitrinen
- Fernwärme, ein direkter Vertrag mit der EKG (Fernwärme) zu machen.
- WC mit Entlüftung, Handwaschbecken
Eckdaten :
Das Geschäftslokal liegt in mitten der Kramergasse:
Verkaufslokal mit ca. 61,79 m2
OG mit " Wc`s, 2 Büro`s oder Magazzinflächen und Küchenanschlüssen ca 60m²
Heiz- und Stromkosten werden direkt vom Mieter mit dem jeweiligen Anbieter abgerechnet!
3BMM Kaution
Ein Energieausweiß ist in Arbeit!
Sowohl direkt vor dem Haus als auch in unmittelbarer Nähe befinden sich zahlreiche Tiefgaragen!
Möchten Sie sich gerne ein persönliches Bild machen? Ich freue mich auf eine Besichtigung mit Ihnen!
Für weitere Informationen und Besichtigungstermine wenden Sie sich bitte an:
Mag. Ulrike Brunner
********************************************************************************************
ULLI Immo
T: +43 676 4680409
E: office@ulli-immo.at
Sonstiges:
Wir ersuchen um Verständnis, dass wir aufgrund unserer Nachweispflicht gegenüber dem Eigentümer / der Eigentümerin nur Anfragen mit vollständigen Kontaktdaten (Name, Adresse, Telefonnummer, E-Mail) bearbeiten können.
Sämtliche Angaben zum beschriebenen Mietobjekt sind ohne Gewähr und basieren auf Informationen und Unterlagen, die vom Eigentümer der Liegenschaft bzw. Dritten zur Verfügung gestellt wurden. Für Vollständigkeit, Richtigkeit und Aktualität aller Angaben und Abmessungen wird keine Gewähr übernommen. Allfällige Änderungen, Irrtümer, Satz- und Druckfehler vorbehalten.
Provision:
Im Falle eines Vertragsabschlusses beträgt unser Honorar lt. Maklerverordnung für Immobilienmakler (IMV), BGBl. 297/1996 idgF BGBl. II Nr. 268/2010, sowie Maklergesetz, BGB. Nr. 262/1996 idF BGBl. I Nr. 58/2010, 3 % des Kaufpreises zzgl. 20 % USt.
Der Vermittler ist als Doppelmakler tätig.
Infrastruktur / Entfernungen
Gesundheit
Arzt <500m
Apotheke <500m
Krankenhaus <1.000m
Klinik <1.000m
Kinder & Schulen
Schule <500m
Kindergarten <500m
Universität <1.000m
Höhere Schule <500m
Nahversorgung
Supermarkt <500m
Bäckerei <500m
Einkaufszentrum <500m
Sonstige
Bank <500m
Geldautomat <500m
Post <500m
Polizei <500m
Verkehr
Bus <500m
Autobahnanschluss <3.500m
Bahnhof <1.500m
Flughafen <3.500m
Angaben Entfernung Luftlinie / Quelle: OpenStreetMap
Objektdaten
Ausstattung
- Klimatisiert
- Barrierefrei
- Fliesenboden
- Laminatboden
- Linoleumboden
- Fernwärme Heizung
- Fern Befeuerung
- Massiv Bauweise
Zustand
- Zustand
- NEUWERTIG
- Alter
- ALTBAU
Flächen
- Anzahl der sep. WCs
- 2
- Nutzfläche
- 121m²
- Lagerfläche
- 20m²
- Verkaufsfläche
- 62m²
- Bürofläche
- 60m²
- Kellerfläche
- 20m²
Kosten
- Gesamtmiete Brutto
- € 5.936,40
- Miete
- € 4.500,00
- Betriebskosten
- € 447,00
- Umsatzsteuer
- € 989,40
Verwaltung
- Verfügbar ab
- Jänner
Immobilien im Einzelhandel zum Mieten in Österreich
Immobilien im Einzelhandel zum Mieten in Österreich
Immobilien im Einzelhandel zum Mieten in Österreich
Andere Besucher suchen nach...
- Grundstücke kaufen in 3400 Weidlingbach
- Wohnungen kaufen in 4663 Laakirchen
- Häuser in 7471 Rechnitz
- Wohnungen in 2410 Hainburg an der Donau
- Häuser kaufen in 2432 Schwadorf
- Wohnungen kaufen in 3002 Purkersdorf
- Häuser in 3150 Wilhelmsburg
- Wohnungen kaufen in 3470 Engelmannsbrunn
- Grundstücke kaufen im Bezirk Mattersburg
- Grundstücke kaufen im Bezirk Gmunden