SERFAUS - attraktive Geschäftsfläche in Premiumlage!
€ 6.420 / Monat
€ 20 / m²
6534 Serfaus
-
Nach VB
Beschreibung
Vermietet wird eine hochwertige Geschäftsfläche in Top Lage von Serfaus, zur vielseitigen Nutzung:
Verkaufsfläche, Studio, Büro, Praxis, Showroom
Die zentrale Lage ist perfekt zugänglich und ideal angebunden. Sie gilt als repräsentativ und bietet Ihnen den entscheidenden Standortvorteil.
Serfaus-Fiss-Ladis ist eine der begehrtesten Tourismusregionen Tirols und bietet sowohl im Sommer als auch im Winter Urlaubserlebnisse der Spitzenklasse. Sie haben nunmehr die Chance, sich in alpiner Traumlage unternehmerisch zu verwirklichen.
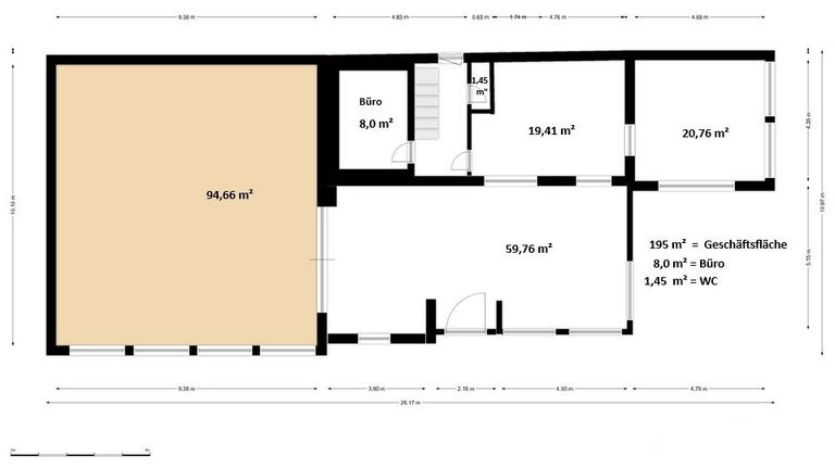
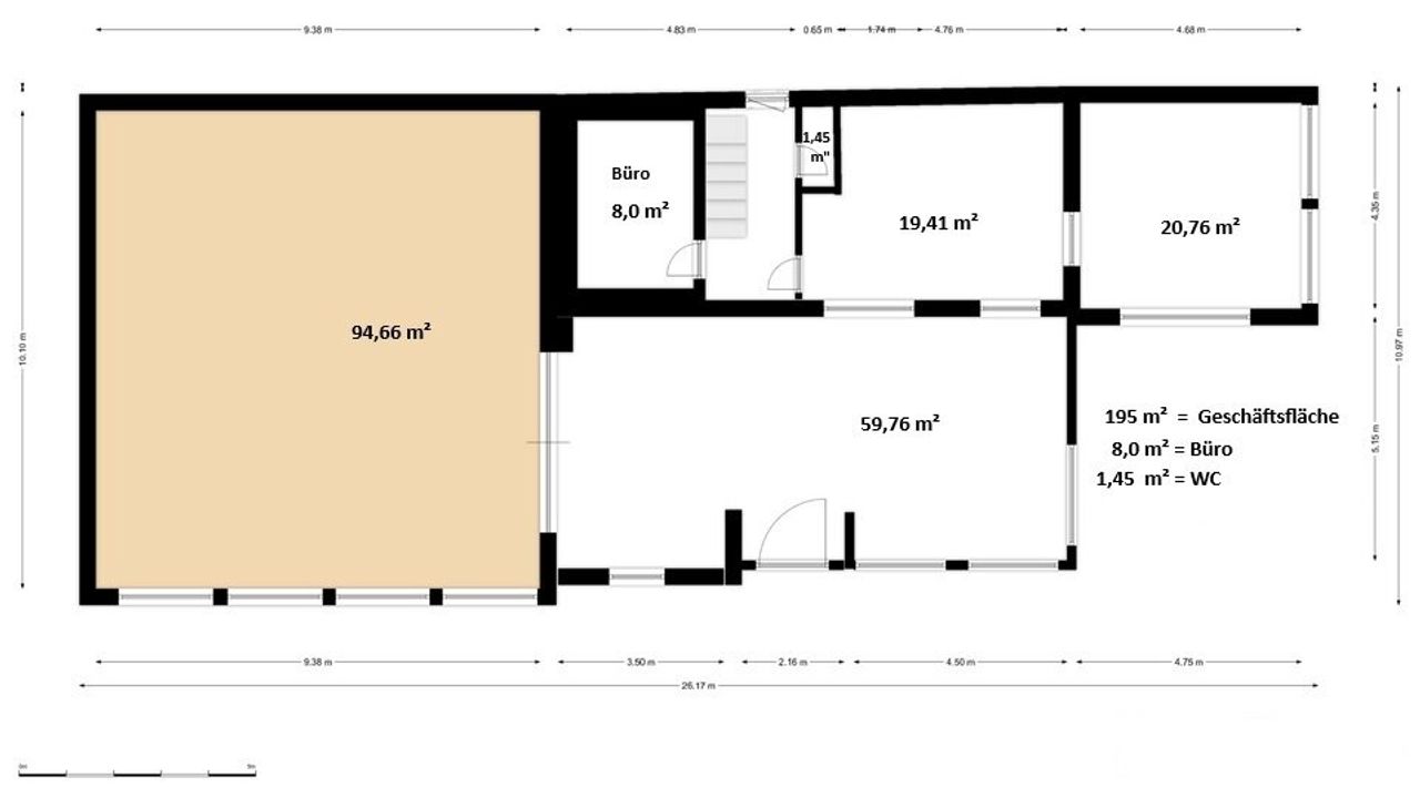
Die Nutzflächen im Detail:
-
Geschäftsfläche, 195 m²
-
Büro, 8,0 m²
-
WC, 1,45 m²
...
Vermietet wird eine hochwertige Geschäftsfläche in Top Lage von Serfaus, zur vielseitigen Nutzung:
Verkaufsfläche, Studio, Büro, Praxis, Showroom
Die zentrale Lage ist perfekt zugänglich und ideal angebunden. Sie gilt als repräsentativ und bietet Ihnen den entscheidenden Standortvorteil.
Serfaus-Fiss-Ladis ist eine der begehrtesten Tourismusregionen Tirols und bietet sowohl im Sommer als auch im Winter Urlaubserlebnisse der Spitzenklasse. Sie haben nunmehr die Chance, sich in alpiner Traumlage unternehmerisch zu verwirklichen.
Die Nutzflächen im Detail:
Geschäftsfläche, 195 m²
Büro, 8,0 m²
WC, 1,45 m²
Abstell-/Kellerräume, 120 m²
Nebengebäude, 45 m²
Ihr Kontakt zu uns:
markus@geos.cc
+4369919076108
Bitte beachten Sie:
Wir sind gegenüber unserem Auftraggeber nachweispflichtig und bitten daher im Zuge Ihrer Anfrage um Übermittlung Ihrer kompletten Kontaktdaten, andernfalls kann Ihre Anfrage nicht bearbeitet werden. Alle Angaben und erteilten Informationen beruhen auf Aussagen und Unterlagen des Eigentümers. Es gelten unsere Allgemeinen Geschäftsbedingungen. Alle Angaben, inkl. Mietzinsangaben sind unverbindlich und freibleibend. Nebenkosten bei Abschluss des Mietvertrages: Vergebührung Finanzamt, Vermittlungshonorar (2 BMM), Vertragskosten (ca. € 1.500.-). Dieses Offert ist unverbindlich und freibleibend, Zwischenvermietung vorbehalten. Alle Angaben sind ohne Gewähr von Richtigkeit und Vollständigkeit / Irrtum vorbehalten.
Der Vermittler ist als Doppelmakler tätig.
Infrastruktur / Entfernungen
Gesundheit
Arzt <350m
Apotheke <800m
Klinik <1.750m
Kinder & Schulen
Schule <50m
Kindergarten <75m
Nahversorgung
Supermarkt <175m
Bäckerei <175m
Sonstige
Bank <150m
Geldautomat <2.050m
Polizei <575m
Post <25m
Verkehr
Bus <175m
Bahnhof <100m
U-Bahn <100m
Angaben Entfernung Luftlinie / Quelle: OpenStreetMap
Objektdaten
Ausstattung
- Massiv Bauweise
Zustand
- Zustand
- GEPFLEGT
Flächen
- Anzahl der sep. WCs
- 1
- Nutzfläche
- 320m²
- Verkaufsfläche
- 195m²
- Kellerfläche
- 120m²
Kosten
- Gesamtmiete Brutto
- € 6.420,00
- Miete
- € 5.350,00
- Umsatzsteuer
- € 1.070,00
Verwaltung
- Verfügbar ab
- Nach VB
Immobilien im Einzelhandel zum Mieten im Umkreis von Serfaus
Immobilien im Einzelhandel zum Mieten im Umkreis von Serfaus
Immobilien im Einzelhandel zum Mieten in Österreich
Andere Besucher suchen nach...
- Grundstücke kaufen in 3400 Weidlingbach
- Wohnungen kaufen in 4663 Laakirchen
- Häuser in 7471 Rechnitz
- Wohnungen in 2410 Hainburg an der Donau
- Häuser kaufen in 2432 Schwadorf
- Wohnungen kaufen in 3002 Purkersdorf
- Häuser in 3150 Wilhelmsburg
- Wohnungen kaufen in 3470 Engelmannsbrunn
- Grundstücke kaufen im Bezirk Mattersburg
- Grundstücke kaufen im Bezirk Gmunden