Gut sichtbares Geschäftslokal mit Lagermöglichkeit am Winterhafen!
€ 5.565 / Monat
€ 15 / m²
4020 Linz
-
sofort
Beschreibung
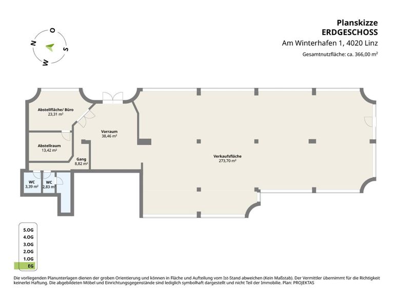
SHOWROOM - VERKAUFSBÜRO - PARKPLÄTZE - KLIMA QUICKFACTS Nutzfläche gesamt: ca. 366 m² Verkaufsfläche: bis ca. 273 m² Bürofläche: ca. 33 m² Lagerfläche: ca. 50 m² Raumaufteilung: siehe Planskizze Stockwerk: EG WC Anlagen: 2 getrennt Nettomiete / m²: € 10,00 Bezugstermin: ab sofort OBJEKTBESCHREIBUNG Dieses ebenerdige Geschäftslokal mit guter Sichtbarkeit von der hochfrequentierten Hafenstrasse bietet eine wunderbare Basis für zahlreiche Geschäftsmodelle. Die bis ca. 273 m² große, klimatisierte Verkaufsfläche ist praktisch mit einem Büro- bzw. Lagerbereich verbunden und verfügt über 3 Eingänge zur einfachen Anlieferung. Selbstverständlich sind Teeküche und getrennte Sanitäranlagen. Vor dem Geschäftslokal stehen 6 Freistellparkplätze für Kunden und...
SHOWROOM - VERKAUFSBÜRO - PARKPLÄTZE - KLIMA
QUICKFACTS
Nutzfläche gesamt: ca. 366 m²
Verkaufsfläche: bis ca. 273 m²
Bürofläche: ca. 33 m²
Lagerfläche: ca. 50 m²
Raumaufteilung: siehe Planskizze
Stockwerk: EG
WC Anlagen: 2 getrennt
Nettomiete / m²: € 10,00
Bezugstermin: ab sofort
OBJEKTBESCHREIBUNG
Dieses ebenerdige Geschäftslokal mit guter Sichtbarkeit von der hochfrequentierten Hafenstrasse bietet eine wunderbare Basis für zahlreiche Geschäftsmodelle. Die bis ca. 273 m² große, klimatisierte Verkaufsfläche ist praktisch mit einem Büro- bzw. Lagerbereich verbunden und verfügt über 3 Eingänge zur einfachen Anlieferung. Selbstverständlich sind Teeküche und getrennte Sanitäranlagen. Vor dem Geschäftslokal stehen 6 Freistellparkplätze für Kunden und Mitarbeiter zur Verfügung. Zusätzliche Parkplätze sind in der nahegelegenen Tiefgarage anmietbar. Freistellparkplatz € 45,00 netto, Tiefgaragenparkplatz € 80,00 netto
LAGE & VERKEHRSANBINDUNG
Das Objekt liegt gut sichtbar an der Hafenstrasse und bietet Parkmöglichkeiten für Kunden direkt am Objekt. Die Autobahnauffahrt Hafenstrasse liegt vor dem Objekt und gute öffentliche Busverbindungen sind ebenfalls vorhanden.
AUSSTATTUNG
Zustand: gut
Boden: Fliese/Parkett
Schaufenster: vorhanden
Beleuchtung: teilweise vorhanden
Raumhöhe: 4,20 m
Datenverkabelung: teilweise vorhanden
Heizung: Fernwärme
Klima: vorhanden
Teeküche: vorhanden
Parkplätze: 6 Freistellparkplätze zu je € 45,00 netto
KONDITIONEN (NETTO)
Miete: € 10,00 / m² / Monat
Gesamtmiete: € 3.660,00 / Monat
Betriebskosten: € 567,08 / Monat
Heizkosten: € 235,11 / Monat
Strom: nach Verbrauch
Befristung: 3 - 5 Jahre
Kaution: 3 BMM
Provision: 3 BMM
Zögern Sie nicht uns bei etwaigen Rückfragen oder zur Vereinbarung eines unverbindlichen Besichtigungs- bzw. Beratungstermines zu kontaktieren. Unser Team steht Ihnen gerne zur Verfügung! Ihr Ansprechpartner: Herr Claudio Feistritzer (0664 / 12 88 000 bzw. 0732 / 77 0 88 5-22)
PS: Zahlreiche weitere Immobilien finden Sie auf unserer Homepage unter www.projektas.at
Hinweis: Wir verarbeiten personenbezogene Daten zu geschäftlichen Zwecken. Nähere Informationen finden Sie unter www.projektas.at
QUICKFACTS
Nutzfläche gesamt: ca. 366 m²
Verkaufsfläche: bis ca. 273 m²
Bürofläche: ca. 33 m²
Lagerfläche: ca. 50 m²
Raumaufteilung: siehe Planskizze
Stockwerk: EG
WC Anlagen: 2 getrennt
Nettomiete / m²: € 10,00
Bezugstermin: ab sofort
OBJEKTBESCHREIBUNG
Dieses ebenerdige Geschäftslokal mit guter Sichtbarkeit von der hochfrequentierten Hafenstrasse bietet eine wunderbare Basis für zahlreiche Geschäftsmodelle. Die bis ca. 273 m² große, klimatisierte Verkaufsfläche ist praktisch mit einem Büro- bzw. Lagerbereich verbunden und verfügt über 3 Eingänge zur einfachen Anlieferung. Selbstverständlich sind Teeküche und getrennte Sanitäranlagen. Vor dem Geschäftslokal stehen 6 Freistellparkplätze für Kunden und Mitarbeiter zur Verfügung. Zusätzliche Parkplätze sind in der nahegelegenen Tiefgarage anmietbar. Freistellparkplatz € 45,00 netto, Tiefgaragenparkplatz € 80,00 netto
LAGE & VERKEHRSANBINDUNG
Das Objekt liegt gut sichtbar an der Hafenstrasse und bietet Parkmöglichkeiten für Kunden direkt am Objekt. Die Autobahnauffahrt Hafenstrasse liegt vor dem Objekt und gute öffentliche Busverbindungen sind ebenfalls vorhanden.
AUSSTATTUNG
Zustand: gut
Boden: Fliese/Parkett
Schaufenster: vorhanden
Beleuchtung: teilweise vorhanden
Raumhöhe: 4,20 m
Datenverkabelung: teilweise vorhanden
Heizung: Fernwärme
Klima: vorhanden
Teeküche: vorhanden
Parkplätze: 6 Freistellparkplätze zu je € 45,00 netto
KONDITIONEN (NETTO)
Miete: € 10,00 / m² / Monat
Gesamtmiete: € 3.660,00 / Monat
Betriebskosten: € 567,08 / Monat
Heizkosten: € 235,11 / Monat
Strom: nach Verbrauch
Befristung: 3 - 5 Jahre
Kaution: 3 BMM
Provision: 3 BMM
Zögern Sie nicht uns bei etwaigen Rückfragen oder zur Vereinbarung eines unverbindlichen Besichtigungs- bzw. Beratungstermines zu kontaktieren. Unser Team steht Ihnen gerne zur Verfügung! Ihr Ansprechpartner: Herr Claudio Feistritzer (0664 / 12 88 000 bzw. 0732 / 77 0 88 5-22)
PS: Zahlreiche weitere Immobilien finden Sie auf unserer Homepage unter www.projektas.at
Hinweis: Wir verarbeiten personenbezogene Daten zu geschäftlichen Zwecken. Nähere Informationen finden Sie unter www.projektas.at
| Angaben gemäß gesetzlichem Erfordernis: | |||
| Miete | € | 3660 | zzgl 20% USt. |
| Betriebskosten | € | 567,08 | zzgl 20% USt. |
| Heizkosten | € | 235,11 | zzgl 20% USt. |
| Autoabstellplatz | € | 175 | zzgl 20% USt. |
| Umsatzsteuer | € | 927,44 | |
| ------------------------------------------------------------------ | |||
| Gesamtbetrag | € | 5564,63 | |
| ------------------------------------------------------------------ | |||
| Heizwärmebedarf: | 70.0 kWh/(m²a) | ||
| Klasse Heizwärmebedarf: | C | ||
| Faktor Gesamtenergieeffizienz: | 1.06 | ||
| Klasse Faktor Gesamtenergieeffizienz: | C | ||
Objektdaten
Ausstattung
- Klimatisiert
- DV Verkabelung
- Teeküche
- Zentralheizung
- Erdwärme
- Personen Fahrstuhl
- Bus
- Zentralheizung mit Wärmepumpe
- Sonstiges
- Hohe Autofrequenz
Dokumente / Links
Flächen
- Anzahl der sep. WCs
- 2
- Stellplätze
- 11
- Nutzfläche
- 366m²
- Verkaufsfläche
- 366m²
Kosten
- Kaltmiete
- € 5.564,63
- Nebenkosten
- € 1.172,63
- Kaution
- € 16.000,00
- Betriebskosten Brutto
- € 680,50
- Heizkosten Brutto
- € 282,13
Verwaltung
- Verfügbar ab
- sofort
- Mietdauer
- 3,0 Jahre bis 5,0 Jahre
Immobilien im Einzelhandel zum Mieten in Österreich
Immobilien im Einzelhandel zum Mieten in Österreich
Immobilien im Einzelhandel zum Mieten in Österreich
Andere Besucher suchen nach...
- Grundstücke kaufen in 3400 Weidlingbach
- Wohnungen kaufen in 4663 Laakirchen
- Häuser in 7471 Rechnitz
- Wohnungen in 2410 Hainburg an der Donau
- Häuser kaufen in 2432 Schwadorf
- Wohnungen kaufen in 3002 Purkersdorf
- Häuser in 3150 Wilhelmsburg
- Wohnungen kaufen in 3470 Engelmannsbrunn
- Grundstücke kaufen im Bezirk Mattersburg
- Grundstücke kaufen im Bezirk Gmunden