NEU (maßgeschneidert) sanierte Geschäfts-/Büro-/Ordinationsfläche mit XL-Schaufenstern - 1A Preis-/Leistung, direkt neben dem (Vital-)Zentrum Muldenstraße!
-
01.12.2025
Beschreibung
BILDER WERDEN IN KÜRZE (NACH SANIERUNG) DEM INSERAT BEIGEFÜGT!
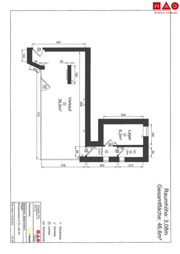
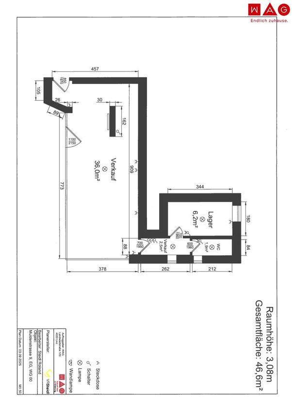
Linz / Spallerhof / Muldenstraße 9 / EG : (Provisionsfrei) Neu, nach Ihren Wünschen und Vorgaben, sanierte Geschäftsfläche, mit der Möglichkeit zur Vergrößerung um ca. 10 m², in topfrequentierter Lage eingebettet in den dicht bewohnten Stadtteil Spallerhof - MIT GROSSEN SCHAUFENSTERFLÄCHEN! In der Fläche wird aktuell ein Schuhservice /Schuster betrieben. Hervorragende Anbindung an den öffentlichen Verkehr, nähe Autobahnauffahrt A7. In der Nähe befinden sich Lebensmittelgeschäfte, Wochenmarkt, Friseur, Tiefgarage, Vitalzentrum, Ärzte, Senioren-Wohnheim, Schulen, Kindergärten, Pfarrzentrum, Einkaufszentrum Muldenstraße und O-Bus... Alles auf einen Blick: - Neu (maßgeschneidert) sanierte Gewerbefläche mit 44,00 m² auf...
BILDER WERDEN IN KÜRZE (NACH SANIERUNG) DEM INSERAT BEIGEFÜGT!
Linz / Spallerhof / Muldenstraße 9 / EG : (Provisionsfrei)
Neu, nach Ihren Wünschen und Vorgaben, sanierte Geschäftsfläche, mit der Möglichkeit zur Vergrößerung um ca. 10 m², in topfrequentierter Lage eingebettet in den dicht bewohnten Stadtteil Spallerhof - MIT GROSSEN SCHAUFENSTERFLÄCHEN! In der Fläche wird aktuell ein Schuhservice /Schuster betrieben. Hervorragende Anbindung an den öffentlichen Verkehr, nähe Autobahnauffahrt A7.
In der Nähe befinden sich Lebensmittelgeschäfte, Wochenmarkt, Friseur, Tiefgarage, Vitalzentrum, Ärzte, Senioren-Wohnheim, Schulen, Kindergärten, Pfarrzentrum, Einkaufszentrum Muldenstraße und O-Bus...
Alles auf einen Blick:
- Neu (maßgeschneidert) sanierte Gewerbefläche mit 44,00 m² auf einer Ebene
- öffentliche Verkehrsanbindung
- Optional Einzelgarage (nutzbar als zusätzlicher Lagerraum), € 92,-- (exkl. MwSt.)
- Neu saniertes Objekt - 2018
- Gute Kundenfrequenz auch dank hoher Bewohnerdichte im direkten Umfeld
- Größtmöglicher Mit-Planungs- und Gestaltungsfreiraum
- ein ausgeprägtes Gesundheitsumfeld (Vitalzentrum Muldenstraße) bietet zusätzliche Umsatzchancen
- Neues modernes Schaufensterportal wird verbaut
Die Fläche mit XL-Schaufenstern eignet sich zum Beispiel für folgende Nutzungen:
Büro, Ordination, Dienstleistungsbranche, Handel (Sport, Fahrrad, Drogerie/Parfümerie, E-Bike...), Agentur...
Seitens der Bewohner im Umfeld wurde mehrfach der Wunsch nach einem
- Handyshop/Reparatur
- Reformhaus
- Tierarzt
- (E-)Bike/Fahrradfachhandel mit Werkstatt
geäußert.
Miete inkl. Betriebskosten: € 777,94 (exkl. MwSt.)
Kaution: 3 - 4 Bruttomonatsmieten (auch in Form einer unwiderruflichen wertgesicherten Bankgarantie möglich)
Sie sind an weiteren Wohnungs- bzw. Gewerbeangeboten interessiert? Ein vielfältiges Angebot finden Sie auf unserer Website.
Zur WAG-Immobiliensuche: SUCHE
Zur WAG-Wohnungsanmeldung: Wohnungsanmeldung
Gerne beraten wir Sie persönlich über unser vielfältiges Angebot, rufen Sie uns einfach an! Und das natürlich ohne Vermittlungsgebühren und provisionsfrei!
Angaben sind ohne Gewähr auf Richtigkeit und Vollständigkeit. Druckfehler vorbehalten.
Infrastruktur / Entfernungen
Gesundheit
Arzt <500m
Apotheke <500m
Klinik <2.000m
Krankenhaus <1.000m
Kinder & Schulen
Kindergarten <500m
Schule <500m
Universität <3.000m
Höhere Schule <3.500m
Nahversorgung
Supermarkt <500m
Bäckerei <500m
Einkaufszentrum <500m
Sonstige
Bank <500m
Geldautomat <500m
Post <500m
Polizei <2.000m
Verkehr
Bus <500m
Straßenbahn <1.000m
Bahnhof <1.500m
Autobahnanschluss <1.000m
Flughafen <3.500m
Angaben Entfernung Luftlinie / Quelle: OpenStreetMap
Objektdaten
Ausstattung
- Kabel/SAT-TV
- Zentralheizung
- Fern Befeuerung
- Personen Fahrstuhl
Dokumente / Links
Zustand
- HWB
- 68 kWh/m² pro Jahr
- Klasse HWB
- C
- fGEE
- 1.17
- Klasse fGEE
- C
Flächen
- Anzahl der sep. WCs
- 1
- Stellplätze
- 1
- Nutzfläche
- 44m²
Kosten
- Gesamtmiete Brutto
- € 920,73
- Kaution
- € 2.890,00
- Miete
- € 647,33
- Betriebskosten
- € 119,94
- Umsatzsteuer
- € 153,46
Verwaltung
- Verfügbar ab
- 01.12.2025, ab 01. 12. 2025
Immobilien im Einzelhandel zum Mieten in Österreich
Immobilien im Einzelhandel zum Mieten in Österreich
Immobilien im Einzelhandel zum Mieten in Österreich
Andere Besucher suchen nach...
- Grundstücke kaufen in 3400 Weidlingbach
- Wohnungen kaufen in 4663 Laakirchen
- Häuser in 7471 Rechnitz
- Wohnungen in 2410 Hainburg an der Donau
- Häuser kaufen in 2432 Schwadorf
- Wohnungen kaufen in 3002 Purkersdorf
- Häuser in 3150 Wilhelmsburg
- Wohnungen kaufen in 3470 Engelmannsbrunn
- Grundstücke kaufen im Bezirk Mattersburg
- Grundstücke kaufen im Bezirk Gmunden