Lib.at Logo
Startseite Makler Liste Gespeicherte Immobilien
Einloggen oder Registrieren Für Makler

Knittelfeld Zentrum - Platz für Ihre Vision: ca. 303m2 Geschäftsflächen plus ca. 250m2 Garten auf 3 Ebenen

8720 Knittelfeld

Beschreibung

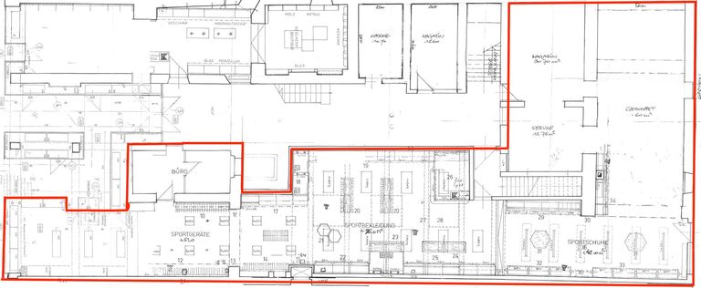
Mitten im Zentrum von Knittelfeld, in bester frequendierter Lage, wartet dieses einzigartige Geschäftslokal auf seinen nächsten starken Auftritt. Auf rund ca. 303 m² Nutzfläche bietet die Immobilie eine große, offene Verkaufsfläche, mehrere Nebenräume sowie ein separates Büro perfekt für vielfältige Nutzungskonzepte. Ein absolutes Highlight ist der 250m2 große, versteckte Garten mit Blick auf den Stadtbach.

Highlights im Überblick:

  • Ca. 303 m² Geschäftsfläche – flexibel für Handel, Dienstleistung, Showroom, Studio oder auch Gastronomie.

  • Separates Büro – ideal für Besprechungen oder ruhiges Arbeiten

  • 2 Lagerflächen mit ca. 42m2 - vom Geschäftslokal und vom Innenhof begehbar

  • ...

Mitten im Zentrum von Knittelfeld, in bester frequendierter Lage, wartet dieses einzigartige Geschäftslokal auf seinen nächsten starken Auftritt. Auf rund ca. 303 m² Nutzfläche bietet die Immobilie eine große, offene Verkaufsfläche, mehrere Nebenräume sowie ein separates Büro perfekt für vielfältige Nutzungskonzepte. Ein absolutes Highlight ist der 250m2 große, versteckte Garten mit Blick auf den Stadtbach.


Highlights im Überblick:




  • Ca. 303 m² Geschäftsfläche – flexibel für Handel, Dienstleistung, Showroom, Studio oder auch Gastronomie.




  • Separates Büro – ideal für Besprechungen oder ruhiges Arbeiten




  • 2 Lagerflächen mit ca. 42m2 - vom Geschäftslokal und vom Innenhof begehbar




  • Große Schaufensterfront mit automatischer Glastür zum frequentierten Hauptplatz




  • Stilvolle Gewölbeabschnitte im hinteren Bereich – viel Charme, viel Potenzial




  • Dreistufig angelegter Garten auf der Rückseite – ideal für kreative Nutzungsideen auf rund ca. 250m2




  • Direkter Bachzugang – ruhige, grüne Rückseite als seltener Bonus im Stadtkern




Top Lage – direkt im Zentrum




  • Bestlage in Knittelfeld in der Frauengasse mit hoher Kundenfrequenz, unmittelbar zum Hauptplatz




  • Ladezone direkt vor dem Geschäftslokal




  • Kurzparkzone rund um das Geschäftslokal




  • Zugang zum Parkhaus in nur wenigen Metern




  • Öffentliche Verkehrsmittel in 1-2 Minuten zu Fuß erreichbar




  • Optimal erreichbar & sichtbar – ideal für jedes Business




  • Förderung seitens der Gemeinde Knittelfeld nach Absprache möglich - Mietzinszuschuss in den ersten 3 Jahren, Werbekosten- & Investitionskostenzuschuss




Das Geschäftslokal wird derzeit mittels Öl-Zentralheizung beheizt. Eine Umstellung auf eine alternative Heizungsart – beispielsweise eine zentrale Luftwärmepumpe – ist nach Rücksprache mit den Eigentümern grundsätzlich möglich.


Preisinformationen
Die genaue Höhe der Miete ist auf Anfrage – wir erstellen für Ihr Nutzungskonzept gerne ein individuelles Angebot.


Flexibilität bei Mietzins und Investitionen
Die Miethöhe kann abhängig von der geplanten Nutzung sowie dem Investitionsbedarf des zukünftigen Mieters individuell angepasst werden. Der Vermieter zeigt sich in diesem Zusammenhang offen für eine faire, partnerschaftliche Lösung und ist insbesondere bei einem längerfristigen Mietverhältnis bereit, sich aktiv an Investitionen zu beteiligen – sei es durch bauliche Anpassungen, technische Verbesserungen oder die Modernisierung der Ausstattung.


Langfristige Partnerschaft erwünscht
Das Ziel ist eine langfristige Vermietung – dafür bringt der Vermieter nicht nur Offenheit, sondern auch Bereitschaft zu Investitionen mit. Um Ihrem Unternehmen den Start zu erleichtern, kann beispielsweise ein Staffelmietmodell vereinbart werden:




  • im 1. Jahr: 70 % des regulären Mietzinses




  • im 2. Jahr: 80 %




  • im 3. Jahr: 90 %




  • ab dem 4. Jahr: voller Mietzins




Auch andere Modelle – etwa Investitionskostenzuschüsse, mietfreie Anfangsmonate oder eine Beteiligung an Umbaumaßnahmen – sind verhandelbar.


Fördermöglichkeiten
Zusätzlich bietet die Stadtgemeinde Knittelfeld im Rahmen ihrer Stadtentwicklungsstrategie Förderprogramme für neue Betriebsansiedelungen an. Diese können beispielsweise beinhalten:




  • Mietzinszuschüsse in den ersten drei Jahren




  • Zuschüsse für Werbung, Marketing oder Investitionen




  • Die Förderprogramme sind abhängig von Branche, Betriebsgröße und Nutzungskonzept und vorbehaltlich der Zusage der Gemeinde




Die genauen Voraussetzungen und Förderhöhen sind mit der Stadtgemeinde individuell abstimmbar – wir unterstützen Sie gerne bei der Kontaktaufnahme und Antragstellung




Fazit: Ihr nächster Business-Move
Dieses Objekt bietet nicht nur einen Top-Standort, sondern auch flexible Rahmenbedingungen für Ihre Geschäftsidee – mit Unterstützung von Vermieter und Gemeinde. Lassen Sie uns gemeinsam über Ihre Pläne sprechen!


Ob Einzelhandel, Kreativbüro, Praxis, Showroom oder Konzept-Store – dieses Objekt bietet viel Raum, viel Sichtbarkeit und ein besonderes Extra mit Garten & Bach. Ein Standort mit echtem Wiedererkennungswert – und der Freiheit, Ihre Idee Wirklichkeit werden zu lassen.


Maklerprovision: 3 Bruttomonatsmieten zzgl. 20% Ust.


Der Vermittler ist als Doppelmakler tätig.


Infrastruktur / Entfernungen

Gesundheit
Arzt <250m
Apotheke <250m
Krankenhaus <750m
Kinder & Schulen
Schule <500m
Kindergarten <500m
Nahversorgung
Supermarkt <250m
Bäckerei <250m
Einkaufszentrum <6.500m
Sonstige
Bank <250m
Geldautomat <250m
Post <250m
Polizei <500m
Verkehr
Bus <250m
Autobahnanschluss <1.500m
Bahnhof <750m
Flughafen <6.750m
Angaben Entfernung Luftlinie / Quelle: OpenStreetMap

Objektdaten

Ausstattung

  • Fliesenboden
  • Zentralheizung
  • Befeuerung mit Öl
  • Ausrichtung Balkon/Terrasse - Nord

Dokumente / Links

Zustand

Baujahr
1967
HWB
281.9 kWh/m² pro Jahr
Klasse HWB
G
fGEE
2.04
Klasse fGEE
D

Flächen

Nutzfläche
303m²
Gartenfläche
250m²

Kosten