Geschäftshaus mit hohem Entwicklungspotenzial - BARRIEREFREI
Beschreibung
Das Geschäftshaus ist aufgeteilt auf 3 Geschosse - rd. 868m²
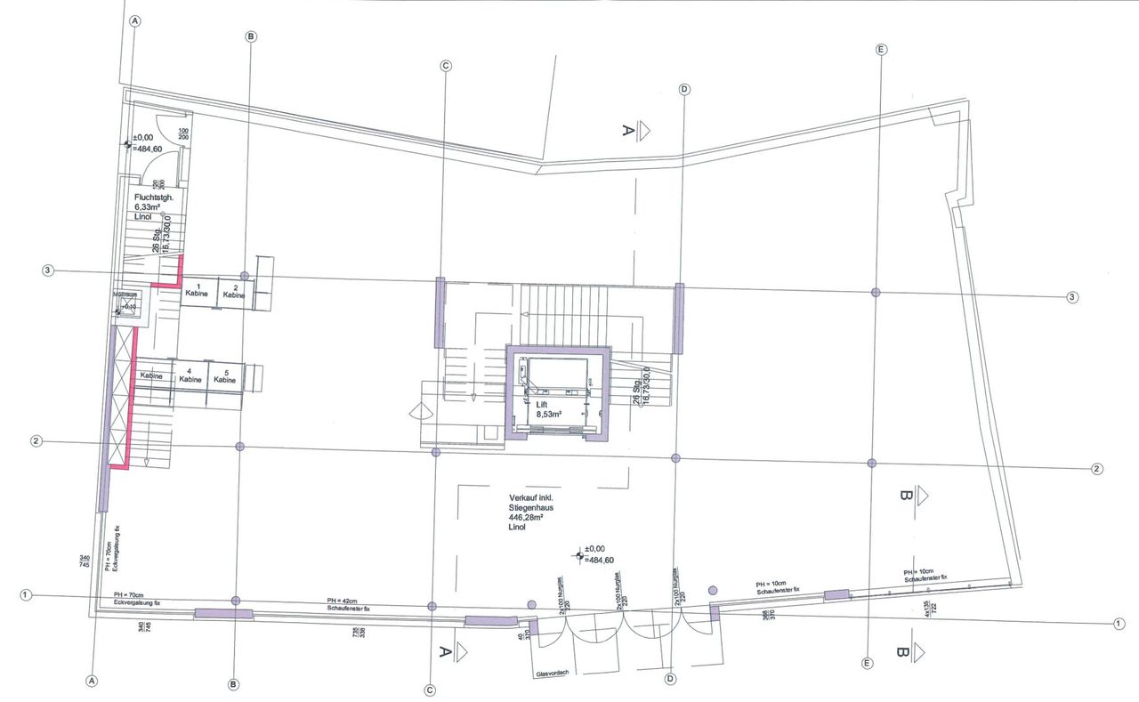
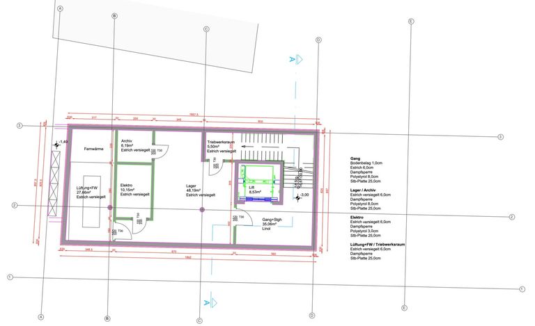
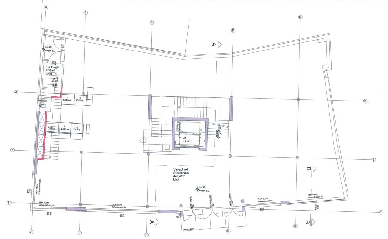
Verkaufsfläche im Erdgeschoß 446,28m² und im 1. Obergeschoss Verkauf inkl. Stiegenhaus 421,84m² sowie 48m² Lagerfläche im Kellergeschoss.
Getrennte Sanitärbereiche für Kunden und Mitarbeiter sowie ein Aufenthaltsraum sind im 1. Obergeschoss untergebracht. Ein Kabinenlift für den barrierefreien Zugang in alle Geschosse ist vorhanden.
Das gesamte Gebäude ist mit einer Lüftungs- und Klimaleitung, einer vollständigen Elektroverkabelung sowie einer automatischen Brandmeldeanlage ausgestattet.
Klimaanlage ist vorhanden! Heizung Fernwärme und die BK belaufen sich schätzungsweise auf ca. € 1000 netto/Monat!
Es liegt ebenfalls eine Machbarkeitsstudie von 08/2023 vor, wonach die Flächen...
Das Geschäftshaus ist aufgeteilt auf 3 Geschosse - rd. 868m²
Verkaufsfläche im Erdgeschoß 446,28m² und im 1. Obergeschoss Verkauf inkl. Stiegenhaus 421,84m² sowie 48m² Lagerfläche im Kellergeschoss.
Getrennte Sanitärbereiche für Kunden und Mitarbeiter sowie ein Aufenthaltsraum sind im 1. Obergeschoss untergebracht. Ein Kabinenlift für den barrierefreien Zugang in alle Geschosse ist vorhanden.
Das gesamte Gebäude ist mit einer Lüftungs- und Klimaleitung, einer vollständigen Elektroverkabelung sowie einer automatischen Brandmeldeanlage ausgestattet.
Klimaanlage ist vorhanden! Heizung Fernwärme und die BK belaufen sich schätzungsweise auf ca. € 1000 netto/Monat!
Es liegt ebenfalls eine Machbarkeitsstudie von 08/2023 vor, wonach die Flächen auch in Büro- bzw. Wohnflächen aufgeteilt werden könnten - hier gibt es viel Gestaltungsspielraum.
3 BMM Kaution
Möchten Sie sich gerne ein persönliches Bild machen?
Ich freue mich auf eine Besichtigung mit Ihnen!
Für weitere Informationen und Besichtigungstermine wenden Sie sich bitte an :
|
Sonstiges:
Wir ersuchen um Verständnis, dass wir aufgrund unserer Nachweispflicht gegenüber dem Eigentümer / der Eigentümerin nur Anfragen mit vollständigen Kontaktdaten (Name, Adresse, Telefonnummer, E-Mail) bearbeiten können.
Sämtliche Angaben zum beschriebenen Objekt sind ohne Gewähr und basieren auf Informationen und Unterlagen, die vom Eigentümer/von der Eigentümerin der Liegenschaft bzw. Dritten zur Verfügung gestellt wurden. Für Vollständigkeit, Richtigkeit und Aktualität aller Angaben und Abmessungen wird keine Gewähr übernommen. Allfällige Änderungen, Irrtümer, Satz- und Druckfehler vorbehalten.
Provision:
Im Falle eines Vertragsabschlusses beträgt unser Honorar lt. Maklerverordnung für Immobilienmakler (IMV), BGBl. 297/1996 ifgF BGBl. 268/2010, sowie Maklergesetz, BGB Nr. 262/1996 idF BGBl. I Nr. 58/2010, 3% des Kaufpreises bzw. 3 BMM zzgl. 20% USt.
Wir weisen darauf hin, dass zwischen dem Vermittler und dem zu vermittelnden Dritten ein familiäres oder wirtschaftliches Naheverhältnis besteht.
Der Vermittler ist als Doppelmakler tätig.
Infrastruktur / Entfernungen
Gesundheit
Arzt <500m
Apotheke <500m
Krankenhaus <500m
Kinder & Schulen
Schule <500m
Kindergarten <5.000m
Nahversorgung
Supermarkt <500m
Bäckerei <6.000m
Einkaufszentrum <1.500m
Sonstige
Bank <500m
Geldautomat <500m
Post <500m
Polizei <500m
Verkehr
Bus <500m
Autobahnanschluss <2.000m
Bahnhof <1.000m
Flughafen <5.000m
Angaben Entfernung Luftlinie / Quelle: OpenStreetMap
Objektdaten
Ausstattung
- Räume veränderbar
- Klimatisiert
- Rollstuhlgerecht
- Barrierefrei
- Gäste-WC
- Fernwärme Heizung
- Fern Befeuerung
- Personen Fahrstuhl
- Alarmanlage
- Satteldach
Zustand
- Baujahr
- 2003
- Alter
- NEUBAU
- HWB
- 55.1 kWh/m² pro Jahr
- Klasse HWB
- C
- fGEE
- 0.67
- Klasse fGEE
- A+
Flächen
- Nutzfläche
- 916m²
- Lagerfläche
- 48m²
- Verkaufsfläche
- 868m²
Kosten
- Gesamtmiete Brutto
- € 6.480,00
- Miete
- € 5.400,00
- Umsatzsteuer
- € 1.080,00
Immobilien im Einzelhandel zum Mieten im Umkreis von Frauenstein
Immobilien im Einzelhandel zum Mieten im Umkreis von Frauenstein
Immobilien im Einzelhandel zum Mieten in Österreich
Andere Besucher suchen nach...
- Grundstücke kaufen in 3400 Weidlingbach
- Wohnungen kaufen in 4663 Laakirchen
- Häuser in 7471 Rechnitz
- Wohnungen in 2410 Hainburg an der Donau
- Häuser kaufen in 2432 Schwadorf
- Wohnungen kaufen in 3002 Purkersdorf
- Häuser in 3150 Wilhelmsburg
- Wohnungen kaufen in 3470 Engelmannsbrunn
- Grundstücke kaufen im Bezirk Mattersburg
- Grundstücke kaufen im Bezirk Gmunden