SHOPPING-BISTRO LOKAL
€ 1.080 / Monat
€ 6 / m²
4400 Steyr
-
sofort
Beschreibung
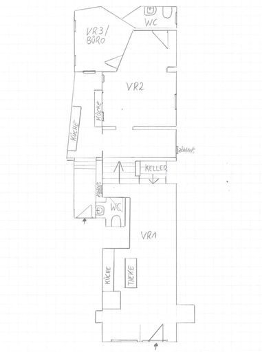
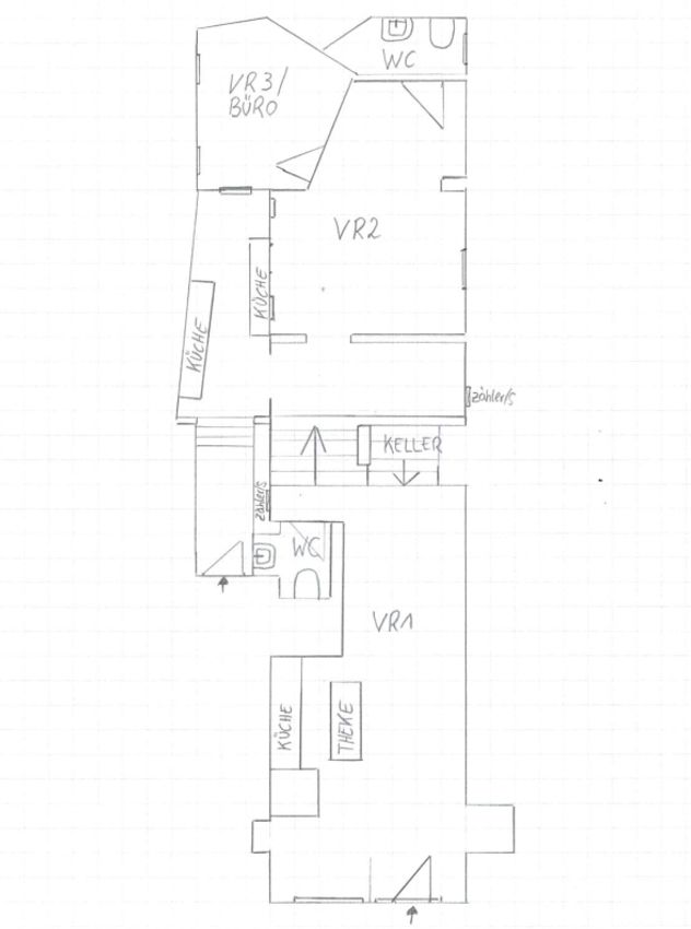
Dieses Geschäftslokal bietet Ihnen auf insgesamt 161 m² eine Verkaufs- und Lokalfläche in bester Altstadtlage! Die Immobilie befindet sich am Grünmarkt 18 und überzeugt mit Sichtbarkeit, guter Erreichbarkeit und Charme! Die Geschäftsfläche verfügt straßenseitig über zwei große Glasportale, die viel Tageslicht in den Innenraum bringen. Sie betreten die Immobilie über eines der beiden Portale und gelangen direkt in den ersten ca. 68 m² großen Verkaufsraum.Dieser Raum verfügt über eine Gewölbeform, wodurch ein charaktervolles Ambiente gegeben ist, welches Sie stilvoll in Szene setzen können. Im hinteren Bereich führt Sie eine 6-stufige Treppe hinauf in den zweiten ca. 46 m² großen Verkaufsraum...
Dieses Geschäftslokal bietet Ihnen auf insgesamt 161 m² eine Verkaufs- und Lokalfläche in bester Altstadtlage!
Die Immobilie befindet sich am Grünmarkt 18 und überzeugt mit Sichtbarkeit, guter Erreichbarkeit und Charme!
Die Geschäftsfläche verfügt straßenseitig über zwei große Glasportale, die viel Tageslicht in den Innenraum bringen. Sie betreten die Immobilie über eines der beiden Portale und gelangen direkt in den ersten ca. 68 m² großen Verkaufsraum.Dieser Raum verfügt über eine Gewölbeform, wodurch ein charaktervolles Ambiente gegeben ist, welches Sie stilvoll in Szene setzen können.
Im hinteren Bereich führt Sie eine 6-stufige Treppe hinauf in den zweiten ca. 46 m² großen Verkaufsraum (derzeit geteilt in zwei Räume mit 39 und 7 m²). Nebenbei befindet sich eine Küche, die vollständig in einem mit Glas überdachten Innenhof liegt und über einen eigenen Nebeneingang erschlossen ist.
Zusätzlich verfügt dieses Gewerbeobjekt über einen weiteren Raum mit ca. 16 m², den Sie als Büro, als zusätzlichen Verkaufsraum oder als Lager nutzen könnten.
Zwei separate Toiletten, sowie ein Kellerraum mit ca. 30 m² runden das Gesamtpaket dieser Immobilie ab.
Technik & Energie
+ Fußbodenheizung (Gas Zentralheizung)
Weitere Eckdaten
+ Nettomiete: € 900,-
+ Betriebs- und Heizkostenakonto netto: ca. € 345,-
+ die ersten 3 Monate sind mietfrei
+ Beziehbar ab sofort
+ Provision: 3 BMM zzgl. USt (einmalig)
Flächen:
Gesamtfläche inkl. Keller ca. 191,87 m²
Gesamtfläche ohne Keller: ca. 161 m²
Eine Teilung in zwei Einheiten wäre möglich.
+ Verkaufsräume inkl. Büro und Keller: ca. 166 m²
+ Küche: ca. 25 m²
Ich freue mich darauf, Sie auf dem Weg zu Ihrem neuen Geschäftslokal begleiten zu dürfen!
Herzlichst,
Diana Hertl, MSc
Immobilientreuhänderin
DIANOR Estates GmbH
Leopold-Werndl-Straße 27, 4400 Steyr
0676/4422972, office@dianor.at
Die Immobilie befindet sich am Grünmarkt 18 und überzeugt mit Sichtbarkeit, guter Erreichbarkeit und Charme!
Die Geschäftsfläche verfügt straßenseitig über zwei große Glasportale, die viel Tageslicht in den Innenraum bringen. Sie betreten die Immobilie über eines der beiden Portale und gelangen direkt in den ersten ca. 68 m² großen Verkaufsraum.Dieser Raum verfügt über eine Gewölbeform, wodurch ein charaktervolles Ambiente gegeben ist, welches Sie stilvoll in Szene setzen können.
Im hinteren Bereich führt Sie eine 6-stufige Treppe hinauf in den zweiten ca. 46 m² großen Verkaufsraum (derzeit geteilt in zwei Räume mit 39 und 7 m²). Nebenbei befindet sich eine Küche, die vollständig in einem mit Glas überdachten Innenhof liegt und über einen eigenen Nebeneingang erschlossen ist.
Zusätzlich verfügt dieses Gewerbeobjekt über einen weiteren Raum mit ca. 16 m², den Sie als Büro, als zusätzlichen Verkaufsraum oder als Lager nutzen könnten.
Zwei separate Toiletten, sowie ein Kellerraum mit ca. 30 m² runden das Gesamtpaket dieser Immobilie ab.
Technik & Energie
+ Fußbodenheizung (Gas Zentralheizung)
Weitere Eckdaten
+ Nettomiete: € 900,-
+ Betriebs- und Heizkostenakonto netto: ca. € 345,-
+ die ersten 3 Monate sind mietfrei
+ Beziehbar ab sofort
+ Provision: 3 BMM zzgl. USt (einmalig)
Flächen:
Gesamtfläche inkl. Keller ca. 191,87 m²
Gesamtfläche ohne Keller: ca. 161 m²
Eine Teilung in zwei Einheiten wäre möglich.
+ Verkaufsräume inkl. Büro und Keller: ca. 166 m²
+ Küche: ca. 25 m²
Ich freue mich darauf, Sie auf dem Weg zu Ihrem neuen Geschäftslokal begleiten zu dürfen!
Herzlichst,
Diana Hertl, MSc
Immobilientreuhänderin
DIANOR Estates GmbH
Leopold-Werndl-Straße 27, 4400 Steyr
0676/4422972, office@dianor.at
Objektdaten
Ausstattung
- Zentralheizung
- Befeuerung mit Gas
- Bus
- Denkmalgeschützt
- Stadtzentrum
- Sonstiges
- Zentralheizung mit Gas
Dokumente / Links
Zustand
- Alter
- ALTBAU
Flächen
- Anzahl der sep. WCs
- 2
- Nutzfläche
- 191m²
- Verkaufsfläche
- 191m²
Kosten
- Kaltmiete
- € 1.080,00
- Kaution
- € 4.000,00
Verwaltung
- Verfügbar ab
- sofort
- Mietdauer
- ab 3,0 Jahre
- Denkmalgeschützt
- Ja
Immobilien im Einzelhandel zum Mieten in Österreich
Immobilien im Einzelhandel zum Mieten in Österreich
Immobilien im Einzelhandel zum Mieten in Österreich
Andere Besucher suchen nach...
- Grundstücke kaufen in 3400 Weidlingbach
- Wohnungen kaufen in 4663 Laakirchen
- Häuser in 7471 Rechnitz
- Wohnungen in 2410 Hainburg an der Donau
- Häuser kaufen in 2432 Schwadorf
- Wohnungen kaufen in 3002 Purkersdorf
- Häuser in 3150 Wilhelmsburg
- Wohnungen kaufen in 3470 Engelmannsbrunn
- Grundstücke kaufen im Bezirk Mattersburg
- Grundstücke kaufen im Bezirk Gmunden