Jetzt anmieten - Geschäftslokal auf der Ungargasse!
Beschreibung
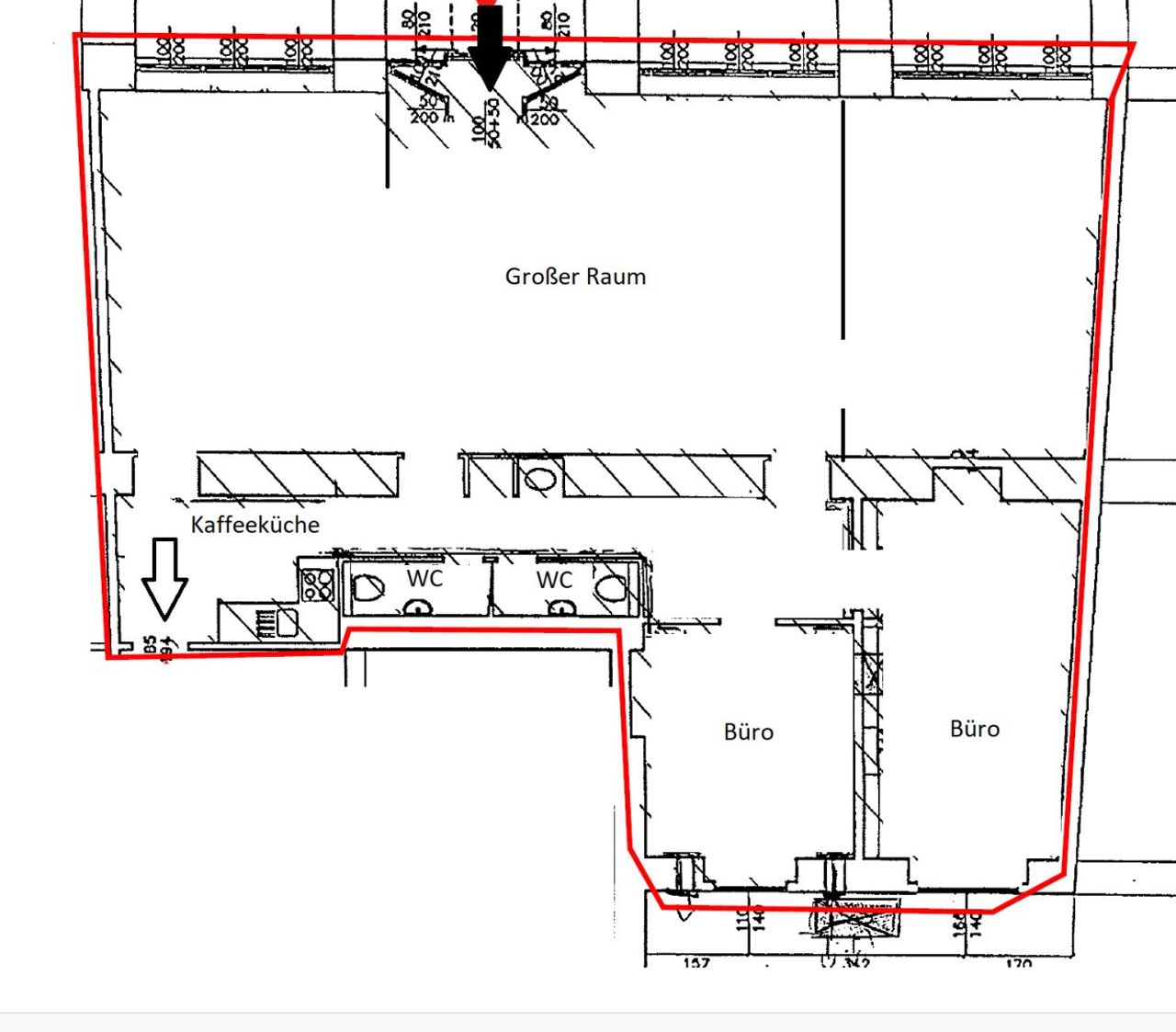
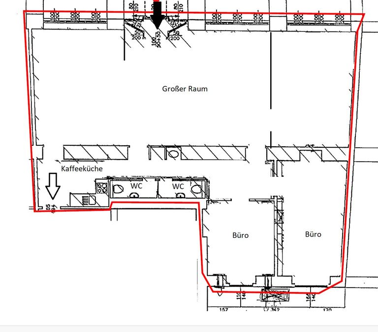
Zur Vermietung gelangt dieses rund 142 m² große Geschäftslokal in ansprechender Lage auf der Ungargasse. Das Objekt verfügt über einen großzügigen vorderen Bereich mit einer klimatisierten Fläche von etwa 80 m², der durch eine Glaswand bzw. ein weiteres Glasschiebemodul flexibel gestaltet werden kann. Dadurch besteht die Möglichkeit, den Raum bei Bedarf in bis zu drei separate Einheiten zu unterteilen, was eine vielseitige Nutzung ermöglicht. Im hinteren Bereich befinden sich zwei weitere getrennte Räume sowie 2 separate Toiletten und eine kleine Teeküche. Zusätzlich bietet ein Hinterausgang direkten Zugang zum Innenhof.
Dank der durchdachten Raumaufteilung eignet sich das Objekt ideal für unterschiedliche...
Zur Vermietung gelangt dieses rund 142 m² große Geschäftslokal in ansprechender Lage auf der Ungargasse.
Das Objekt verfügt über einen großzügigen vorderen Bereich mit einer klimatisierten Fläche von etwa 80 m², der durch eine Glaswand bzw. ein weiteres Glasschiebemodul flexibel gestaltet werden kann. Dadurch besteht die Möglichkeit, den Raum bei Bedarf in bis zu drei separate Einheiten zu unterteilen, was eine vielseitige Nutzung ermöglicht.
Im hinteren Bereich befinden sich zwei weitere getrennte Räume sowie 2 separate Toiletten und eine kleine Teeküche. Zusätzlich bietet ein Hinterausgang direkten Zugang zum Innenhof.
Dank der durchdachten Raumaufteilung eignet sich das Objekt ideal für unterschiedliche Nutzungsarten, sei es als Einzelhandelsfläche, Büro oder Praxis, und bietet somit ein hohes Maß an Flexibilität.
Aufteilung:
- Eingangsbereich
- Großer Raum (teilbar in 3 Räumer)
- 2 hofseitige ausgerichtete Räume
- 2 getrennte Toiletten
- Kaffeeküche
Der Vermittler ist als Doppelmakler tätig.
Infrastruktur / Entfernungen
Gesundheit
Arzt <500m
Apotheke <500m
Klinik <500m
Krankenhaus <500m
Kinder & Schulen
Schule <500m
Kindergarten <500m
Universität <500m
Höhere Schule <1.000m
Nahversorgung
Supermarkt <500m
Bäckerei <500m
Einkaufszentrum <500m
Sonstige
Geldautomat <500m
Bank <500m
Post <500m
Polizei <1.000m
Verkehr
Bus <500m
U-Bahn <500m
Straßenbahn <500m
Bahnhof <500m
Autobahnanschluss <2.500m
Angaben Entfernung Luftlinie / Quelle: OpenStreetMap
Objektdaten
Ausstattung
- Klimatisiert
- Pantry Küche
- Parkettboden
- Etage Heizung
- Befeuerung mit Gas
Zustand
- Baujahr
- 1954
- Alter
- NEUBAU
- HWB
- 118 kWh/m² pro Jahr
- Klasse HWB
- D
- fGEE
- 2.2
- Klasse fGEE
- D
Flächen
- Anzahl der Zimmer
- 5
- Anzahl der sep. WCs
- 2
- Nutzfläche
- 142m²
- Gesamtfläche
- 142m²
Kosten
- Gesamtmiete Brutto
- € 2.099,43
- Miete
- € 1.416,13
- Betriebskosten
- € 552,75
- Umsatzsteuer
- € 130,55
Verwaltung
- Mietdauer
- bis 10,0 Jahre
Immobilien im Einzelhandel zum Mieten in Österreich
- Bezirk Gemeindebezirk Landstrasse
- Bezirk Gemeindebezirk Landstrasse
- Bezirk Gemeindebezirk Landstrasse
- Bezirk Gemeindebezirk Innere Stadt
- Bezirk Gemeindebezirk Innere Stadt
- Bezirk Gemeindebezirk Innere Stadt
- Bezirk Gemeindebezirk Neubau
- Bezirk Gemeindebezirk Neubau
- Bezirk Gemeindebezirk Neubau
- Bezirk Gemeindebezirk Alsergrund
Immobilien im Einzelhandel zum Mieten in Österreich
Immobilien im Einzelhandel zum Mieten in Österreich
Andere Besucher suchen nach...
- Grundstücke kaufen in 3400 Weidlingbach
- Wohnungen kaufen in 4663 Laakirchen
- Häuser in 7471 Rechnitz
- Wohnungen in 2410 Hainburg an der Donau
- Häuser kaufen in 2432 Schwadorf
- Wohnungen kaufen in 3002 Purkersdorf
- Häuser in 3150 Wilhelmsburg
- Wohnungen kaufen in 3470 Engelmannsbrunn
- Grundstücke kaufen im Bezirk Mattersburg
- Grundstücke kaufen im Bezirk Gmunden