Grundstück mit Apartmenthaus inmitten der Kitzbüheler Alpen zu kaufen
-
sofort
Beschreibung
Exklusiv bei Zefi Immobilien - Grundstück mit Apartmenthaus inmitten der Kitzbüheler Alpen zu kaufen!
Diese Liegenschaft besteht aus einem 1045 qm großen Grundstück mit lukrativem Schnitt und einem "Altbestand" in Form eines Apartmenthauses mit ca. 487 qm Nutzfläche. Insgesamt hat das Haus ca. 33 Betten, 8 Balkone, sowie einen üppigen Gastbereich mit Cafe/Bar im Erdgeschoss, sowie Küche.
Durch die Widmung (Wohngebiet gemischt) sind diverse Nachnutzungsmöglichkeiten geboten. Ein Umbau zu Wohnungen, Betrieb eines Mitarbeiterhauses, Abriss- und Neuerrichtung oder Erweiterung zu einer Wohnanlage usw. sind vorstellbare Möglichkeiten.
Selbstverständlich ist auch der Erwerb und der Bau einer exklusiveren Privatnutzung vorstellbar.
Grundsätzlich ist die...
Exklusiv bei Zefi Immobilien - Grundstück mit Apartmenthaus inmitten der Kitzbüheler Alpen zu kaufen!
Diese Liegenschaft besteht aus einem 1045 qm großen Grundstück mit lukrativem Schnitt und einem "Altbestand" in Form eines Apartmenthauses mit ca. 487 qm Nutzfläche. Insgesamt hat das Haus ca. 33 Betten, 8 Balkone, sowie einen üppigen Gastbereich mit Cafe/Bar im Erdgeschoss, sowie Küche.
Durch die Widmung (Wohngebiet gemischt) sind diverse Nachnutzungsmöglichkeiten geboten. Ein Umbau zu Wohnungen, Betrieb eines Mitarbeiterhauses, Abriss- und Neuerrichtung oder Erweiterung zu einer Wohnanlage usw. sind vorstellbare Möglichkeiten.
Selbstverständlich ist auch der Erwerb und der Bau einer exklusiveren Privatnutzung vorstellbar.
Grundsätzlich ist die tiroler Bauordnung einzuhalten, wobei je nach Nachnutzungsvariante die Gemeinde einen Bebauungsplan auferlegen kann.
Energieausweis liegt noch nicht vor und wird bei Kauf erstellt.
Die Mikrolage ist fantastisch. Direkt in der Nähe hält der Skibus, in Richtung Süden blickt man auf die Berge und Skiwelt des Brixentals. Grundsätzlich ist es eine sehr ruhige und idyllische Lage, von der aus trotzdem alles infrastrukturell Wichtige zügig erreichbar ist.
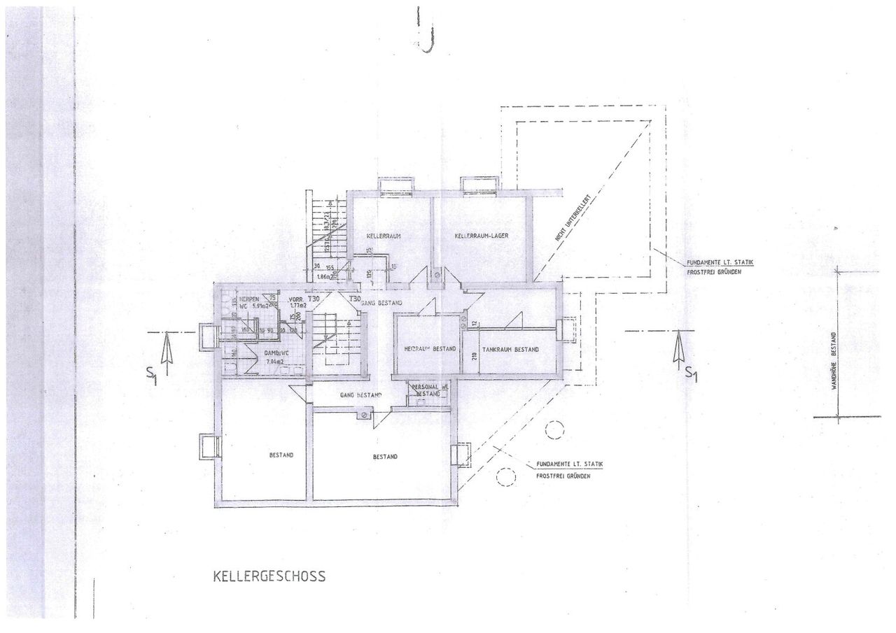
Flächenaufteilung:
| Flächen | |
| Dachgeschoss | qm |
| Apartment | 42,02 |
| 2-Bett-Z | 18,58 |
| 2-Bett-Z | 17,27 |
| 2-Bett-Z | 13,06 |
| 2-Bett-Z | 12 |
| Gang | 11,94 |
| Summe | 114,87 |
| Obergeschoss | qm |
| 2-Bett-Z | 19,02 |
| 2-Bett-Z | 16,03 |
| 2-Bett-Z | 12,84 |
| 2-Bett-Z | 15,2 |
| 2-Bett-Z | 12,84 |
| 2-Bett-Z | 15,2 |
| 2-Bett-Z | 15,2 |
| 2-Bett-Z | 15 |
| 2-Bett-Z | 15 |
| 2-Bett-Z | 15 |
| 1-Bett-Z | 8,21 |
| Gang | 20 |
| Summe | 179,54 |
| Erdgeschoss | qm |
| Fernsehraum | 32,44 |
| Küche | 22,5 |
| Lager | 9,6 |
| Halle | 29,8 |
| Büro | 4,6 |
| Schar | 6,8 |
| WF | 4,96 |
| BAR | 10,7 |
| Frühstücksraum | 51,1 |
| Stüberl | 20,4 |
| 192,9 | |
| Summe Fläche | 487,31 |
Zögern Sie nicht uns telefonisch zu kontaktieren oder das Exposé anzufordern. Sehr gerne stehen wir Ihnen für Details zur Verfügung.
Noch nichts gefunden? Wir informieren Sie über geeignete Immobilienangebote noch vor allen anderen.
Legen Sie jetzt Ihren individuellen Suchagenten unter folgendem Link an. Wir schicken Ihnen passende Immobilien exklusiv vorab zu.
Suchagent anlegen - https://zefi-immobilien.service.immo/registrieren/de
Wir weisen darauf hin, dass zwischen dem Vermittler und dem zu vermittelnden Dritten ein familiäres oder wirtschaftliches Naheverhältnis besteht.
Infrastruktur / Entfernungen
Gesundheit
Arzt <1.250m
Apotheke <1.500m
Klinik <9.250m
Kinder & Schulen
Schule <1.500m
Kindergarten <1.500m
Höhere Schule <8.750m
Nahversorgung
Supermarkt <1.250m
Bäckerei <1.000m
Sonstige
Bank <1.500m
Geldautomat <1.500m
Post <1.250m
Polizei <3.750m
Verkehr
Bus <250m
Bahnhof <1.000m
Angaben Entfernung Luftlinie / Quelle: OpenStreetMap
Objektdaten
Ausstattung
- Räume veränderbar
- Gartennutzung
- Kabel/SAT-TV
- Wasch-/Trockenraum
- Gastterrasse
- Kantine/Cafeteria
- UMTS Empfang
- Fahrradraum
- Gäste-WC
- Bad mit Dusche
- Bad mit Pissoir
- Einbauküche
- Fliesenboden
- Teppichboden
- Zentralheizung
- Personen Fahrstuhl
- Hotelrestaurant
- Bar
- Satteldach
- Massiv Bauweise
- Schlüsselfertig mit Keller
Zustand
- Zustand
- GEPFLEGT
- Alter
- NEUBAU
Flächen
- Anzahl der Zimmer
- 25.5
- Anzahl der Badezimmer
- 16
- Anzahl der sep. WCs
- 18
- Anzahl der Balkone
- 8
- Stellplätze
- 8
- Wohnfläche
- 487m²
- Nutzfläche
- 1.045m²
- Grundstücksfläche
- 1.045m²
- Gartenfläche
- 300m²
- Kellerfläche
- 120m²
Kosten
- Kaufpreis Brutto
- € 2.490.000,00
Verwaltung
- Verfügbar ab
- sofort
- Ferienimmobilie
- Ja
Andere Besucher suchen nach...
- Grundstücke kaufen in 3400 Weidlingbach
- Wohnungen kaufen in 4663 Laakirchen
- Häuser in 7471 Rechnitz
- Wohnungen in 2410 Hainburg an der Donau
- Häuser kaufen in 2432 Schwadorf
- Wohnungen kaufen in 3002 Purkersdorf
- Häuser in 3150 Wilhelmsburg
- Wohnungen kaufen in 3470 Engelmannsbrunn
- Grundstücke kaufen im Bezirk Mattersburg
- Grundstücke kaufen im Bezirk Gmunden