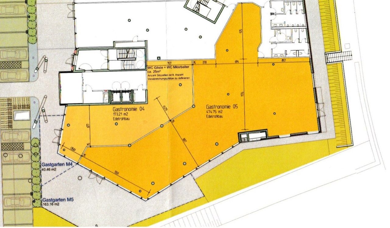
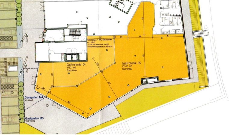
GROSSGASTRONOMIE/BETRIEBSFLÄCHE - erstes Objekt an der Zufahrt zum Industriezentrum NÖ Süd - 472 m²
-
Erstbezug
-
ehest
Beschreibung
Der angegebene Preis von € 8.260.- versteht sich für die 472 m² Innenfläche mitsamt Gartenanteil (163 m²).
ACHTUNG WICHTIGE INFORMATION: GEMÄSS DEN VORGABEN UNSERER ANBIETER – ABGEBER WERDEN DETAILLIERTE ANGABEN ÜBER DIE INTERESSENTEN BENÖTIGT. IM FALLE IHRER ANFRAGE BITTEN WIR UM ANGABE VON: FIRMENNAME / NAME, ADRESSE, TELEFON, E-MAIL.
Auf ein wirtschaftliches Naheverhältnis zum Abgeber wird hingewiesen. Alle Informationen basieren auf Angaben des Abgebers und sind somit ohne Gewähr. Der Auftraggeber wurde von der Firma Gastrotel über die gesetzliche Verpflichtung zur Vorlage eines Energiesauweises aufgeklärt, ist dieser Aufforderung bis dato jedoch...
Der angegebene Preis von € 8.260.- versteht sich für die 472 m² Innenfläche mitsamt Gartenanteil (163 m²).
ACHTUNG WICHTIGE INFORMATION: GEMÄSS DEN VORGABEN UNSERER ANBIETER – ABGEBER WERDEN DETAILLIERTE ANGABEN ÜBER DIE INTERESSENTEN BENÖTIGT. IM FALLE IHRER ANFRAGE BITTEN WIR UM ANGABE VON: FIRMENNAME / NAME, ADRESSE, TELEFON, E-MAIL.
Auf ein wirtschaftliches Naheverhältnis zum Abgeber wird hingewiesen. Alle Informationen basieren auf Angaben des Abgebers und sind somit ohne Gewähr. Der Auftraggeber wurde von der Firma Gastrotel über die gesetzliche Verpflichtung zur Vorlage eines Energiesauweises aufgeklärt, ist dieser Aufforderung bis dato jedoch noch nicht nachgekommen.
Für Fragen bzw. zur Vereinbarung einer Besichtigung erreichen Sie
Frau Jutta SCHRÖDER: 0664 307 68 59 oder Herrn Christian HILSCHER: 0664 240 71 79 bzw. per Mail: office@gastrotel.at
Wir weisen darauf hin, dass zwischen dem Vermittler und dem zu vermittelnden Dritten ein familiäres oder wirtschaftliches Naheverhältnis besteht.
Der Vermittler ist als Doppelmakler tätig.
Infrastruktur / Entfernungen
Gesundheit
Arzt <1.000m
Apotheke <1.000m
Klinik <3.500m
Krankenhaus <3.000m
Kinder & Schulen
Kindergarten <1.500m
Schule <1.500m
Höhere Schule <3.000m
Universität <10.000m
Nahversorgung
Supermarkt <500m
Bäckerei <1.500m
Einkaufszentrum <500m
Sonstige
Bank <500m
Geldautomat <500m
Post <500m
Polizei <1.000m
Verkehr
Bus <500m
U-Bahn <6.500m
Bahnhof <1.500m
Autobahnanschluss <1.000m
Straßenbahn <4.000m
Angaben Entfernung Luftlinie / Quelle: OpenStreetMap
Objektdaten
Zustand
- Zustand
- ERSTBEZUG
- Alter
- NEUBAU
Flächen
- Nutzfläche
- 472m²
- Gartenfläche
- 163m²
Kosten
- Miete
- € 8.260,00
- Betriebskosten
- € 1.935,20
Verwaltung
- Verfügbar ab
- ehest
Andere Besucher suchen nach...
- Grundstücke kaufen in 3400 Weidlingbach
- Wohnungen kaufen in 4663 Laakirchen
- Häuser in 7471 Rechnitz
- Wohnungen in 2410 Hainburg an der Donau
- Häuser kaufen in 2432 Schwadorf
- Wohnungen kaufen in 3002 Purkersdorf
- Häuser in 3150 Wilhelmsburg
- Wohnungen kaufen in 3470 Engelmannsbrunn
- Grundstücke kaufen im Bezirk Mattersburg
- Grundstücke kaufen im Bezirk Gmunden