Gut eingeführte Gastro im Burgstall in Vöcklabruck wegen Pensionierung zu vermieten.
-
April 2026
Beschreibung
Galerie zum Burgstall! Eine der ersten Adressen für Geschäfte, Gastronomie, Büro/Ordinationen und Wohnen in Vöcklabruck.
Der "Burgstall" wurde in den letzten Jahren umfassend renoviert und modernisiert und strahlt in frischem Glanz.
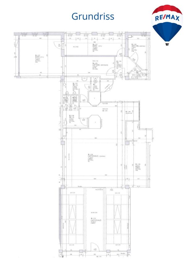
Zur Weitervermietung stehen gut sichtbare und entweder über eine Treppe oder über den Lift erreichbare Räumlichkeiten in der Galerie im 1. OG.
Seit vielen Jahren wird an diesem Standort Gastronomie betrieben. Seit 6 Jahren wird hier hervorragend asiatisch gekocht (Mai Thai). Aufgrund der bevorstehenden Pensionierung freut sich dieses Restaurant entweder auf eine Weiterführung des bisherigen Konzeptes oder über eine komplette Neuausrichtung.
Gerne stehen Ihnen die bisherigen Betreiber...
Galerie zum Burgstall! Eine der ersten Adressen für Geschäfte, Gastronomie, Büro/Ordinationen und Wohnen in Vöcklabruck.
Der "Burgstall" wurde in den letzten Jahren umfassend renoviert und modernisiert und strahlt in frischem Glanz.
Zur Weitervermietung stehen gut sichtbare und entweder über eine Treppe oder über den Lift erreichbare Räumlichkeiten in der Galerie im 1. OG.
Seit vielen Jahren wird an diesem Standort Gastronomie betrieben. Seit 6 Jahren wird hier hervorragend asiatisch gekocht (Mai Thai). Aufgrund der bevorstehenden Pensionierung freut sich dieses Restaurant entweder auf eine Weiterführung des bisherigen Konzeptes oder über eine komplette Neuausrichtung.
Gerne stehen Ihnen die bisherigen Betreiber mit Rat und Tat zur Seite. Auch könnte die komplette Geschäftsausstattung, von den Sitzgelegenheiten bis hin zu Tellern und Besteck, übernommen werden.
Ca. 146 m² stehen derzeit als Gastro zur Verfügung. Die restlichen Flächen (ca. 63 m²) beinhalten Büro- und Lagerflächen.
2 seltene, und daher wertvolle Abstellplätze in der Tiefgarage sind in der Miete ebenfalls beinhaltet.
Geschäfte haben im Burgstall seit mittlerweile 33 Jahren Tradition. Sicher auch in der Zukunft. Als ebenfalls langjähriger Mieter im Burgstall wissen wir worüber wir reden.
Der Vermittler ist als Doppelmakler tätig.
Infrastruktur / Entfernungen
Gesundheit
Arzt <250m
Apotheke <250m
Krankenhaus <1.250m
Kinder & Schulen
Schule <250m
Kindergarten <250m
Höhere Schule <750m
Nahversorgung
Supermarkt <250m
Bäckerei <1.000m
Einkaufszentrum <1.500m
Sonstige
Bank <250m
Geldautomat <250m
Polizei <250m
Post <1.500m
Verkehr
Bus <250m
Bahnhof <1.000m
Autobahnanschluss <5.750m
Angaben Entfernung Luftlinie / Quelle: OpenStreetMap
Objektdaten
Ausstattung
- Klimatisiert
- Barrierefrei
- Gastterrasse
- Gäste-WC
- Bad mit Pissoir
- Personen Fahrstuhl
Dokumente / Links
Zustand
- Zustand
- GEPFLEGT
- Baujahr
- 1989
- Alter
- NEUBAU
- HWB
- 107 kWh/m² pro Jahr
- Klasse HWB
- C
Flächen
- Nutzfläche
- 212m²
Kosten
- Gesamtmiete Brutto
- € 2.882,24
- Kaution
- € 10.000,00
- Miete
- € 1.500,00
- Betriebskosten
- € 901,87
- Umsatzsteuer
- € 480,37
Verwaltung
- Verfügbar ab
- April 2026
Andere Besucher suchen nach...
- Grundstücke kaufen in 3400 Weidlingbach
- Wohnungen kaufen in 4663 Laakirchen
- Häuser in 7471 Rechnitz
- Wohnungen in 2410 Hainburg an der Donau
- Häuser kaufen in 2432 Schwadorf
- Wohnungen kaufen in 3002 Purkersdorf
- Häuser in 3150 Wilhelmsburg
- Wohnungen kaufen in 3470 Engelmannsbrunn
- Grundstücke kaufen im Bezirk Mattersburg
- Grundstücke kaufen im Bezirk Gmunden