Top frequentierte Gastrofläche in bester Lage in 1100 Wien – neuwertig & barrierefrei!
Beschreibung
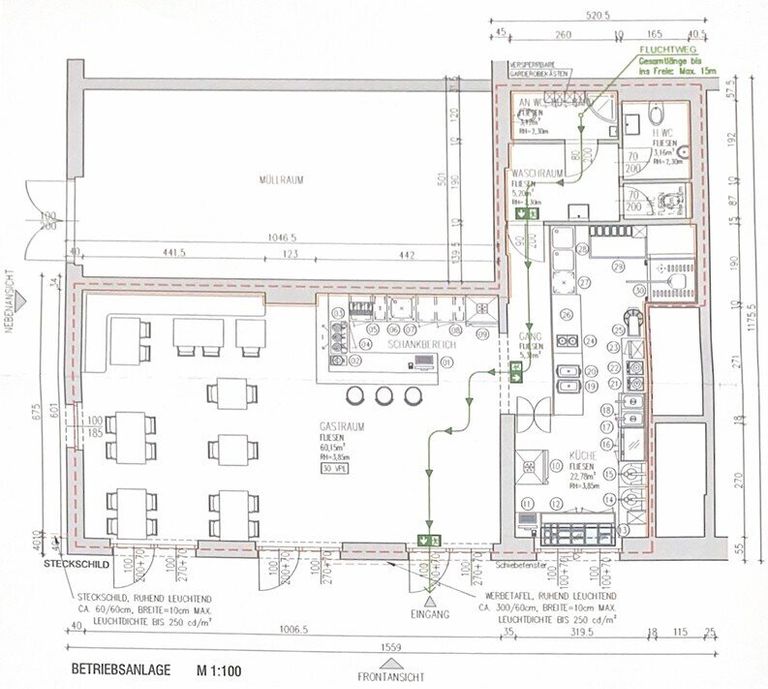
Sichern Sie sich Ihre Chance auf eine attraktive Gastronomiefläche beim Naherholungsgebiet Wienerberg! Dieses neuwertige Lokal im Erdgeschoss bietet auf großzügigen 101,35 m² ideale Voraussetzungen für Ihr Gastronomie- oder Gastgewerbe-Projekt.
Die helle und moderne Fläche überzeugt mit hochwertigem Fliesenboden und einer bestens durchdachten Raumaufteilung. Ein zusätzlicher Abstellraum mit ca. 30m² und Kühlgeräten sorgt für praktischen Stauraum. Besonders hervorzuheben ist die barrierefreie Gestaltung – das Lokal ist rollstuhlgerecht zugänglich und bestens ausgestattet.
Für angenehme Atmosphäre und Frischluft sorgt die mechanische Be- und Entlüftung, die auch an heißen Tagen für ein angenehmes Raumklima sorgt. Die Lüftung muss noch etwas modifiziert werden um das...
Sichern Sie sich Ihre Chance auf eine attraktive Gastronomiefläche beim Naherholungsgebiet Wienerberg! Dieses neuwertige Lokal im Erdgeschoss bietet auf großzügigen 101,35 m² ideale Voraussetzungen für Ihr Gastronomie- oder Gastgewerbe-Projekt.
Die helle und moderne Fläche überzeugt mit hochwertigem Fliesenboden und einer bestens durchdachten Raumaufteilung. Ein zusätzlicher Abstellraum mit ca. 30m² und Kühlgeräten sorgt für praktischen Stauraum. Besonders hervorzuheben ist die barrierefreie Gestaltung – das Lokal ist rollstuhlgerecht zugänglich und bestens ausgestattet.
Für angenehme Atmosphäre und Frischluft sorgt die mechanische Be- und Entlüftung, die auch an heißen Tagen für ein angenehmes Raumklima sorgt. Die Lüftung muss noch etwas modifiziert werden um das Lokal als Restaurant in Betrieb nehmen zu dürfen, bei anderweitiger Verwendung des Geschäftslokals entfällt dies.
Die Fläche vor dem Lokal darf als Schanigarten benutzt werden und lädt Ihre Gäste dazu ein, die Sonne zu genießen und macht Ihren Betrieb zusätzlich attraktiv.
Die Lage ist ein weiterer Pluspunkt: Die hervorragende Verkehrsanbindung durch Bus und Straßenbahn ermöglicht eine bequeme Erreichbarkeit für Ihre Kundschaft. In unmittelbarer Nähe gibt es kaum Konkurrenz für das Lokal!
Mit einer monatlichen und unbefristeten Miete von nur 1.400,00 € bietet Ihnen diese Immobilie ein hervorragendes Preis-Leistungs-Verhältnis für einen Standort mit großem Potenzial. Starten Sie jetzt Ihr Gastronomievorhaben in einem aufstrebenden Wiener Bezirk und profitieren Sie von der idealen Kombination aus Lage, Ausstattung und Komfort.
Ablöse für hochwertiges Inventar (Echtholz-Tische, bequeme Design-Sessel, hochwertige Küchengeräte, stilvolle Lampen uvm.), maßgefertigte Einbauten und umfassende Investitionen: VB € 75.000,-
Vereinbaren Sie noch heute einen Besichtigungstermin und lassen Sie sich von dieser einmaligen Gelegenheit überzeugen! Ihr neues Gastronomielokal in 1100 Wien wartet auf Sie.
Für genauere Informationen und Besichtigungstermine steht Ihnen Herr Mag. Ahmet Turan DAMAR unter der Telefonnummer +43 670 7759477 bzw. atd@damar.at zur Verfügung.
Weitere Objekte finden Sie auf www.damar.at oder auf Instagram und Facebook
DAMAR REAL ESTATE e.U. verarbeitet personenbezogene Daten nach den datenschutzrechtlichen Bestimmungen. Weitergehende Informationen sind unter www.damar.at/datenschutzinformation zu finden.
Obige Angaben basieren auf Informationen und Unterlagen des Eigentümers. Der guten Ordnung halber möchten wir festhalten, dass im Falle eines Abschlusses mit Ihnen oder einem von Ihnen namhaft gemachten Dritten unser Honorar (lt. Honorarverordnung für Immobilienmakler, BGBl. 262 und 297/1996) 3% des Verkaufspreises zzgl. der gesetzlichen MwSt. beträgt. Wir weisen auf ein wirtschaftliches Naheverhältnis zum Eigentümer hin. Es gelten unsere allgemeinen Geschäftsbedingungen. Irrtum vorbehalten.
Wir weisen darauf hin, dass zwischen dem Vermittler und dem zu vermittelnden Dritten ein familiäres oder wirtschaftliches Naheverhältnis besteht.
Infrastruktur / Entfernungen
Gesundheit
Arzt <500m
Apotheke <500m
Klinik <500m
Krankenhaus <500m
Kinder & Schulen
Schule <500m
Kindergarten <500m
Universität <2.000m
Höhere Schule <2.000m
Nahversorgung
Supermarkt <500m
Bäckerei <500m
Einkaufszentrum <2.000m
Sonstige
Geldautomat <500m
Bank <500m
Post <500m
Polizei <1.500m
Verkehr
Bus <500m
U-Bahn <1.500m
Straßenbahn <500m
Bahnhof <1.500m
Autobahnanschluss <2.000m
Angaben Entfernung Luftlinie / Quelle: OpenStreetMap
Objektdaten
Ausstattung
- Vollmöbliert
- Rollstuhlgerecht
- Barrierefrei
- Gastterrasse
- Fliesenboden
- Fern Befeuerung
Zustand
- Zustand
- NEUWERTIG
- Alter
- NEUBAU
- HWB
- 24.85 kWh/m² pro Jahr
- Klasse HWB
- A
- fGEE
- 0.84
- Klasse fGEE
- A
Flächen
- Anzahl der Badezimmer
- 1
- Anzahl der sep. WCs
- 3
- Nutzfläche
- 101m²
- Lagerfläche
- 30m²
Kosten
- Miete
- € 1.400,00
Andere Besucher suchen nach...
- Grundstücke kaufen in 3400 Weidlingbach
- Wohnungen kaufen in 4663 Laakirchen
- Häuser in 7471 Rechnitz
- Wohnungen in 2410 Hainburg an der Donau
- Häuser kaufen in 2432 Schwadorf
- Wohnungen kaufen in 3002 Purkersdorf
- Häuser in 3150 Wilhelmsburg
- Wohnungen kaufen in 3470 Engelmannsbrunn
- Grundstücke kaufen im Bezirk Mattersburg
- Grundstücke kaufen im Bezirk Gmunden