Attraktive Gastronomiefläche für Café - Konditorei im 19 Bezirk
-
Q1/2027
Beschreibung
Gastronomie & Nahversorgung im neuen Lebensraum Muthgasse – über 300 Wohnungen, Kindergarten & Studentenwohnheim mit 300 Plätzen
Die Gastronomie- und Nahversorgungsflächen befinden sich im Erdgeschoss eines modernen, architektonisch hochwertigen Wohn- und Geschäftsensembles. Mit über 300 neu entstehenden Wohnungen, einem Kindergarten mit 6 Gruppen sowie einem Wohnheim entsteht ein vielfältiges, urbanes Quartier, das eine starke, verlässliche Grundfrequenz garantiert.
👥 Starke, ganztägige Frequenz durch vielfältige Nutzergruppen
Die Kombination aus Wohnen, Bildung, Arbeiten und Nahversorgung schafft ein durchgehend belebtes Umfeld. Die Gastronomie profitiert von einer außergewöhnlich breiten Zielgruppe:
-
über 300 Wohnungen* direkt im Quartier
-
Kindergarten mit 6 Gruppen –...
Gastronomie & Nahversorgung im neuen Lebensraum Muthgasse – über 300 Wohnungen, Kindergarten & Studentenwohnheim mit 300 Plätzen
Die Gastronomie- und Nahversorgungsflächen befinden sich im Erdgeschoss eines modernen, architektonisch hochwertigen Wohn- und Geschäftsensembles. Mit über 300 neu entstehenden Wohnungen, einem Kindergarten mit 6 Gruppen sowie einem Wohnheim entsteht ein vielfältiges, urbanes Quartier, das eine starke, verlässliche Grundfrequenz garantiert.
👥 Starke, ganztägige Frequenz durch vielfältige Nutzergruppen
Die Kombination aus Wohnen, Bildung, Arbeiten und Nahversorgung schafft ein durchgehend belebtes Umfeld. Die Gastronomie profitiert von einer außergewöhnlich breiten Zielgruppe:
über 300 Wohnungen* direkt im Quartier
Kindergarten mit 6 Gruppen – Eltern, Kinder, Pädagog*innen, tägliche Bring- und Abholfrequenz
Wohnheim – zusätzliche Grundauslastung und Abendfrequenz
Mitarbeiter*innen der umliegenden Büro- und Forschungsstandorte
Studierende der nahegelegenen Universitätsbereiche
Laufkundschaft durch die Nähe zur U4 Heiligenstadt
Besucher*innen des öffentlichen Platzes mit Wasserspielen und Aufenthaltszonen
Diese Mischung sorgt für kontinuierliche Frequenz vom frühen Morgen bis in den Abend – ideal für Frühstück, Mittagsgeschäft, Nachmittagsbetrieb und Abendgastronomie.
Flexible Gastronomieflächen mit Außenbereich
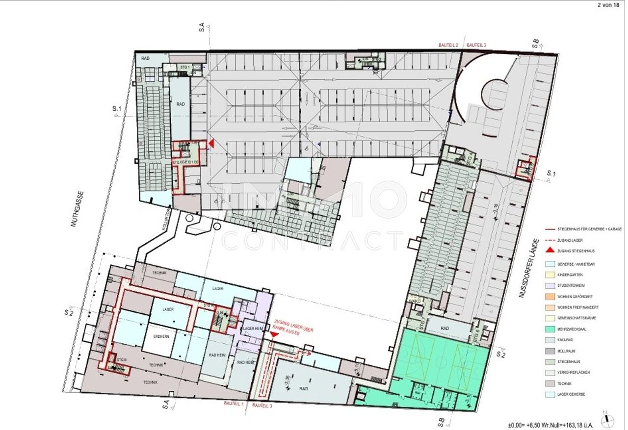
Die drei Einheiten im Erdgeschoss bieten ideale Voraussetzungen für unterschiedliche Betreiberkonzepte:
Gewerbe A – 200 m²
Gewerbe B – 200 m²
Gastgartenpotenzial
Großzügige Glasfronten, klare Grundrisse und moderne technische Vorbereitungen ermöglichen eine individuelle Gestaltung und hohe Sichtbarkeit. Lager- und Müllräume befinden sich in unmittelbarer Nähe, was den Betrieb effizient unterstützt.
Urbanes, hochwertiges Umfeld
Der vorgelagerte Platz mit Wasserspielen, Sitzbereichen und Grünflächen schafft eine einladende Atmosphäre und erhöht die Aufenthaltsqualität. Die Gastronomie profitiert von:
attraktiven Außenbereichen
hoher Sichtbarkeit im Quartier
moderner Architektur
einem wachsenden, zukunftsorientierten Stadtteil
22,- Miete inkl. BK und inkl. ( Ust.)
Wir weisen darauf hin, dass zwischen dem Vermittler und dem zu vermittelnden Dritten ein familiäres oder wirtschaftliches Naheverhältnis besteht.
Der Vermittler ist als Doppelmakler tätig.
Infrastruktur / Entfernungen
Gesundheit
Arzt <500m
Apotheke <500m
Klinik <1.500m
Krankenhaus <2.000m
Kinder & Schulen
Schule <500m
Kindergarten <500m
Universität <500m
Höhere Schule <1.000m
Nahversorgung
Supermarkt <500m
Bäckerei <500m
Einkaufszentrum <500m
Sonstige
Geldautomat <500m
Bank <500m
Post <500m
Polizei <1.500m
Verkehr
Bus <500m
U-Bahn <500m
Straßenbahn <500m
Bahnhof <500m
Autobahnanschluss <500m
Angaben Entfernung Luftlinie / Quelle: OpenStreetMap
Objektdaten
Flächen
- Verkaufsfläche
- 185m²
Kosten
Verwaltung
- Verfügbar ab
- Q1/2027
Andere Besucher suchen nach...
- Grundstücke kaufen in 3400 Weidlingbach
- Wohnungen kaufen in 4663 Laakirchen
- Häuser in 7471 Rechnitz
- Wohnungen in 2410 Hainburg an der Donau
- Häuser kaufen in 2432 Schwadorf
- Wohnungen kaufen in 3002 Purkersdorf
- Häuser in 3150 Wilhelmsburg
- Wohnungen kaufen in 3470 Engelmannsbrunn
- Grundstücke kaufen im Bezirk Mattersburg
- Grundstücke kaufen im Bezirk Gmunden