1A-FREQUENZ-LAGE in KAISERMÜHLEN - erfolgreich geführtes Lokal sucht NACHFOLGER! Übergabe samt Marketing-Konzept!
€ 1.407 / Monat
€ 17 / m²
1220 Wien
Beschreibung
NEUER BETREIBER GESUCHT!!! Top-gepflegtes, voll ausgestattetes LOKAL in guter FREQUENZLAGE!!! Uneingeschränkte Betriebsanlagengenehmigung 35 Sitzplätze im Gastraum Genehmigung für Schanigarten ist zeitnah zu erwarten. (Antrag bereits gestellt) Die Übergabe an den neuen Betreiber erfolgt geordnet: • inklusive Personalplan • inklusive Marketingkonzept • Top-Zustand Informationen zu Umsatzzahlen erhalten Sie auf Anfrage. Bitte beachten Sie, dass die Bilder digital bearbeitet wurden, um die Anonymität des Betreibers zu wahren. RAUMAUFTEILUNG IN STICHWORTEN • Verkaufsbereich (Take Away) • Küche • Gastraum • Lager • Büro • WC Damen • WC Herren • WC / Garderobe Mitarbeiter • Keller und Lager (mit Kühleinheit) ZUSÄTZLICHE KOSTEN •...
NEUER BETREIBER GESUCHT!!!
Top-gepflegtes, voll ausgestattetes LOKAL in guter FREQUENZLAGE!!!
Uneingeschränkte Betriebsanlagengenehmigung
35 Sitzplätze im Gastraum
Genehmigung für Schanigarten ist zeitnah zu erwarten. (Antrag bereits gestellt)
Die Übergabe an den neuen Betreiber erfolgt geordnet:
• inklusive Personalplan
• inklusive Marketingkonzept
• Top-Zustand
Informationen zu Umsatzzahlen erhalten Sie auf Anfrage.
Bitte beachten Sie, dass die Bilder digital bearbeitet wurden, um die Anonymität des Betreibers zu wahren.
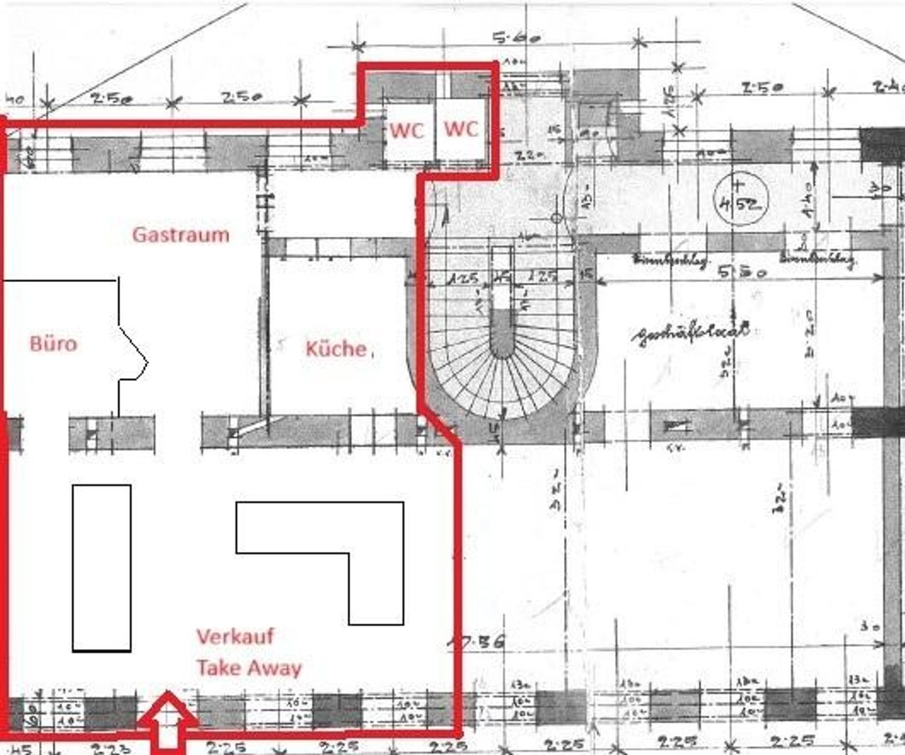
RAUMAUFTEILUNG IN STICHWORTEN
• Verkaufsbereich (Take Away)
• Küche
• Gastraum
• Lager
• Büro
• WC Damen
• WC Herren
• WC / Garderobe Mitarbeiter
• Keller und Lager (mit Kühleinheit)
ZUSÄTZLICHE KOSTEN
• Wasser - wird direkt mit dem Energiedienstleister abgerechnet - aktuell ca. EUR 500 pro Jahr
• Strom / Gas - wird direkt mit dem Energiedienstleister abgerechnet - aktuell ca. EUR 600 pro Monat
• ggf. Internet, Versicherungen, o.Ä.
ERSTZAHLUNG
• 3 BMM Kaution
• 3 BMM Provision
• erste Monatsmiete im Voraus
• ABLÖSE € 195.000 für Möbel + komplette Küchenausstattung (hochwertig und teilweise neu) + Kundenstamm
BESONDERE HIGHLIGHTS DES OBJEKTS
• 1A Frequenzlage
• unbefristeter Mietvertrag
• Top-Zustand
• uneingeschränkte Betriebsanlagengenehmigung
• 35 Sitzplätze im Gastraum
• Genehmigung für Schanigarten ist zeitnah zu erwarten. (Antrag bereits gestellt)
• geordnete Übergabe
• inklusive Personalplan
• inklusive Marketingkonzept
• Parkplätze an der Straße
OPTIMALE ÖFFENTLICHE VERKEHRSANBINDUNG
• Autobus 92A, 92B
• U1 VIC
Für weitere Informationen und um einen Besichtigungstermin zu vereinbaren, stehe ich Ihnen sehr gerne zur Verfügung.
KONTAKT:
Frau Kerstin Fried
Mobil: +43 664 88 730 881
Email: kerstin.fried@hubner-immobilien.com
Top-gepflegtes, voll ausgestattetes LOKAL in guter FREQUENZLAGE!!!
Uneingeschränkte Betriebsanlagengenehmigung
35 Sitzplätze im Gastraum
Genehmigung für Schanigarten ist zeitnah zu erwarten. (Antrag bereits gestellt)
Die Übergabe an den neuen Betreiber erfolgt geordnet:
• inklusive Personalplan
• inklusive Marketingkonzept
• Top-Zustand
Informationen zu Umsatzzahlen erhalten Sie auf Anfrage.
Bitte beachten Sie, dass die Bilder digital bearbeitet wurden, um die Anonymität des Betreibers zu wahren.
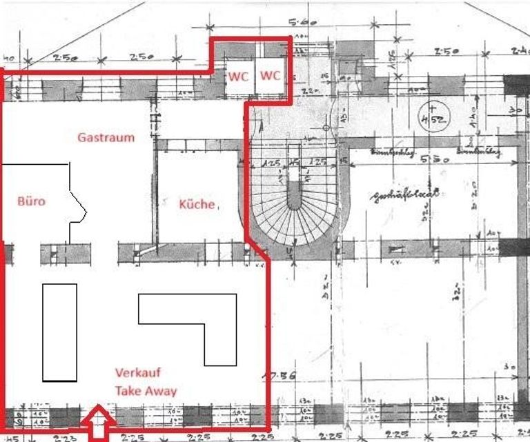
RAUMAUFTEILUNG IN STICHWORTEN
• Verkaufsbereich (Take Away)
• Küche
• Gastraum
• Lager
• Büro
• WC Damen
• WC Herren
• WC / Garderobe Mitarbeiter
• Keller und Lager (mit Kühleinheit)
ZUSÄTZLICHE KOSTEN
• Wasser - wird direkt mit dem Energiedienstleister abgerechnet - aktuell ca. EUR 500 pro Jahr
• Strom / Gas - wird direkt mit dem Energiedienstleister abgerechnet - aktuell ca. EUR 600 pro Monat
• ggf. Internet, Versicherungen, o.Ä.
ERSTZAHLUNG
• 3 BMM Kaution
• 3 BMM Provision
• erste Monatsmiete im Voraus
• ABLÖSE € 195.000 für Möbel + komplette Küchenausstattung (hochwertig und teilweise neu) + Kundenstamm
BESONDERE HIGHLIGHTS DES OBJEKTS
• 1A Frequenzlage
• unbefristeter Mietvertrag
• Top-Zustand
• uneingeschränkte Betriebsanlagengenehmigung
• 35 Sitzplätze im Gastraum
• Genehmigung für Schanigarten ist zeitnah zu erwarten. (Antrag bereits gestellt)
• geordnete Übergabe
• inklusive Personalplan
• inklusive Marketingkonzept
• Parkplätze an der Straße
OPTIMALE ÖFFENTLICHE VERKEHRSANBINDUNG
• Autobus 92A, 92B
• U1 VIC
Für weitere Informationen und um einen Besichtigungstermin zu vereinbaren, stehe ich Ihnen sehr gerne zur Verfügung.
KONTAKT:
Frau Kerstin Fried
Mobil: +43 664 88 730 881
Email: kerstin.fried@hubner-immobilien.com
| Angaben gemäß gesetzlichem Erfordernis: | |||
| Miete | € | 1172,5 | zzgl 20% USt. |
| Umsatzsteuer | € | 234,5 | |
| ------------------------------------------------------------------ | |||
| Gesamtbetrag | € | 1407 | |
Objektdaten
Ausstattung
- Gastterrasse
- Bus
- Stadtzentrum
- Straßenbahn
- U-Bahn
Zustand
- Alter
- ALTBAU
Flächen
- Plätze im Gastraum
- 35
- Nutzfläche
- 85m²
- Gastrofläche
- 85m²
Kosten
- Kaltmiete
- € 1.407,00
- Kaution
- € 8.400,00
Andere Besucher suchen nach...
- Grundstücke kaufen in 3400 Weidlingbach
- Wohnungen kaufen in 4663 Laakirchen
- Häuser in 7471 Rechnitz
- Wohnungen in 2410 Hainburg an der Donau
- Häuser kaufen in 2432 Schwadorf
- Wohnungen kaufen in 3002 Purkersdorf
- Häuser in 3150 Wilhelmsburg
- Wohnungen kaufen in 3470 Engelmannsbrunn
- Grundstücke kaufen im Bezirk Mattersburg
- Grundstücke kaufen im Bezirk Gmunden