Großzügige Fläche für ein Sportkonzept im Twenty One
-
2025
Beschreibung
Attraktive Gewerbefläche für Fitnesscenter im Central Hub
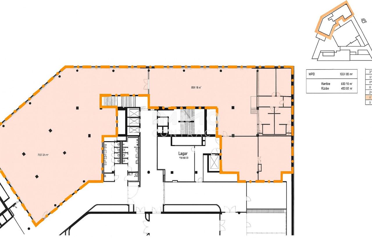
Im modernen Central Hub im 21. Bezirk steht eine großzügige und vielseitig nutzbare Gewerbefläche mit ca. 1.100 m² zur Vermietung. Die Fläche eignet sich ideal für ein Fitnesscenter, Gesundheits- oder Sportkonzept und befindet sich in einem dynamisch wachsenden Unternehmensumfeld.
🌆 Lage & Umfeld
Der Central Hub umfasst insgesamt 50.000 m² neu geschaffene Gewerbeflächen und liegt direkt gegenüber der Siemens City, einem der größten Unternehmensstandorte Wiens. Zusätzlich befinden sich zahlreiche weitere Betriebe, Büros und Dienstleister in unmittelbarer Umgebung – ein starkes Einzugsgebiet mit hoher Frequenz und großem Kundenpotenzial.
🏢 Objektbeschreibung
...
Attraktive Gewerbefläche für Fitnesscenter im Central Hub
Im modernen Central Hub im 21. Bezirk steht eine großzügige und vielseitig nutzbare Gewerbefläche mit ca. 1.100 m² zur Vermietung. Die Fläche eignet sich ideal für ein Fitnesscenter, Gesundheits- oder Sportkonzept und befindet sich in einem dynamisch wachsenden Unternehmensumfeld.
🌆 Lage & Umfeld
Der Central Hub umfasst insgesamt 50.000 m² neu geschaffene Gewerbeflächen und liegt direkt gegenüber der Siemens City, einem der größten Unternehmensstandorte Wiens. Zusätzlich befinden sich zahlreiche weitere Betriebe, Büros und Dienstleister in unmittelbarer Umgebung – ein starkes Einzugsgebiet mit hoher Frequenz und großem Kundenpotenzial.
🏢 Objektbeschreibung
Die Fläche ist ideal für ein modernes Fitnesscenter konzipiert und bietet großzügige, flexibel gestaltbare Bereiche. Die Raumhöhe, die Gebäudestruktur und die offene Grundrisslogik ermöglichen vielfältige Trainings- und Kursformate.
Hauptmerkmale:
Großzügige, offene Trainingsflächen
Hohe Raumhöhe – ideal für Cardio, Krafttraining und Functional Workouts
Abtrennbare Bereiche für Kurse, Yoga, Pilates, Gruppenfitness
Empfangs- und Loungezone möglich
Umkleiden und Sanitärbereiche vorhanden bzw. adaptierbar
Große Fensterflächen für natürliche Belichtung
Miete: 16,50/m2, BK: 4,60/m2 exkl. USt.
Wir weisen darauf hin, dass zwischen dem Vermittler und dem zu vermittelnden Dritten ein familiäres oder wirtschaftliches Naheverhältnis besteht.
Der Vermittler ist als Doppelmakler tätig.
Infrastruktur / Entfernungen
Gesundheit
Arzt <1.500m
Apotheke <1.000m
Klinik <1.500m
Krankenhaus <1.500m
Kinder & Schulen
Schule <1.000m
Kindergarten <500m
Universität <2.000m
Höhere Schule <3.000m
Nahversorgung
Supermarkt <500m
Bäckerei <500m
Einkaufszentrum <2.000m
Sonstige
Geldautomat <1.500m
Bank <1.500m
Post <1.500m
Polizei <1.500m
Verkehr
Bus <500m
U-Bahn <2.000m
Straßenbahn <1.500m
Bahnhof <500m
Autobahnanschluss <2.000m
Angaben Entfernung Luftlinie / Quelle: OpenStreetMap
Objektdaten
Zustand
- Baujahr
- 2025
- HWB
- 36 kWh/m² pro Jahr
- fGEE
- 0.61
Flächen
- Nutzfläche
- 1.100m²
Kosten
- Miete
- € 17.600,00
Andere Besucher suchen nach...
- Grundstücke kaufen in 3400 Weidlingbach
- Wohnungen kaufen in 4663 Laakirchen
- Häuser in 7471 Rechnitz
- Wohnungen in 2410 Hainburg an der Donau
- Häuser kaufen in 2432 Schwadorf
- Wohnungen kaufen in 3002 Purkersdorf
- Häuser in 3150 Wilhelmsburg
- Wohnungen kaufen in 3470 Engelmannsbrunn
- Grundstücke kaufen im Bezirk Mattersburg
- Grundstücke kaufen im Bezirk Gmunden