Grundstück mit Widmung Mischbaugebiet (M)
€ 0 / Monat
4600 Wels
Beschreibung
ca. 5.000 m² Grundstück mit Widmung Mischbaugebiet
Flächenwidmung: M
Verfügbarkeit: ab sofort!
Baurecht/Miete möglich: Kondition und Laufzeit Verhandlungssache (VB)
Kauf: Verhandlungssache, Baurecht bevorzugt!
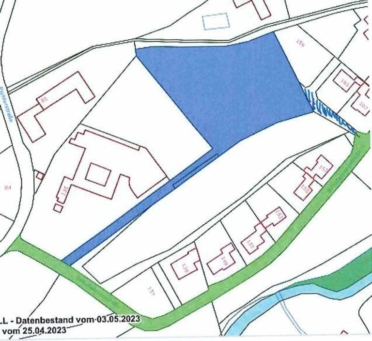
Zufahrt von 2 Seiten möglich.
Zufahrt wie im nachstehenden Lageplan eingezeichnet besteht zum Teil schon, wird von angrenzender Fa. Enslin derzeit mitgenutzt.
Direktbezug vom Eigentümer.
Für Rückfragen und Termine steht Ihnen der Wirtschaftsservice Wels unter Tel. 07242 577 22 40 bzw. heinz.jellmair@wels.at gerne umgehend zur Verfügung.
Flächenwidmung: M
Verfügbarkeit: ab sofort!
Baurecht/Miete möglich: Kondition und Laufzeit Verhandlungssache (VB)
Kauf: Verhandlungssache, Baurecht bevorzugt!
Zufahrt von 2 Seiten möglich.
Zufahrt wie im nachstehenden Lageplan eingezeichnet besteht zum Teil schon, wird von angrenzender Fa. Enslin derzeit mitgenutzt.
Direktbezug vom Eigentümer.
Für Rückfragen und Termine steht Ihnen der Wirtschaftsservice Wels unter Tel. 07242 577 22 40 bzw. heinz.jellmair@wels.at gerne umgehend zur Verfügung.
Objektdaten
Ausstattung
- Bus
- Eisenbahn
- Stadtrand
Dokumente / Links
Flächen
- Grundstücksfläche
- 5.000m²
Kosten
- Kaltmiete
- € 0,01
Grundstücke zum Mieten in Österreich
Grundstücke zum Mieten in Österreich
Andere Besucher suchen nach...
- Immobilien kaufen in 2601 Sollenau
- Immobilien in 4951 Polling im Innkreis, Oberösterreich
- Immobilien in 4742 Pram, Oberösterreich kaufen oder mieten
- Häuser kaufen in 2340 Mödling, Niederösterreich
- Häuser kaufen in 9421 Gemmersdorf, Kärnten
- Wohnungen / Eigentumswohnungen kaufen in 9431 St. Stefan, Kärnten
- Häuser kaufen in Bruck an der Leitha, Niederösterreich
- Immobilien mieten in Krems an der Donau, Niederösterreich
- Häuser zum Kaufen im Bezirk St. Pölten Land, Niederösterreich
- Büro / Praxen mieten in Rohrbach, Oberösterreich