GIGANTISCH gesucht? HIER RICHTIG
Beschreibung
Informationen:
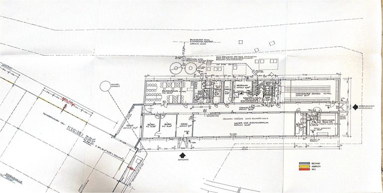
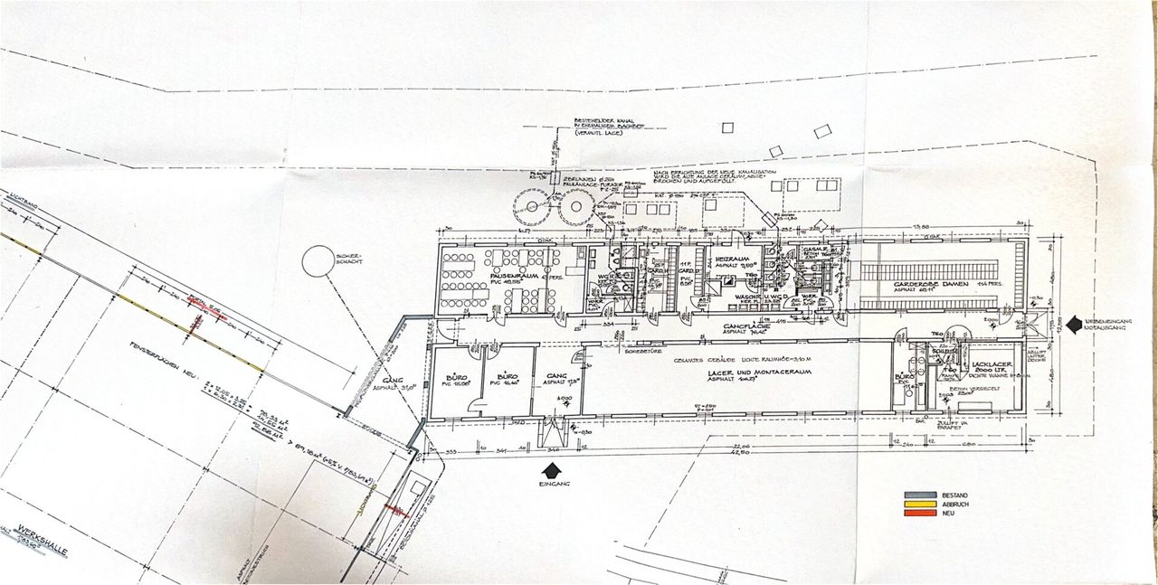
- Grundstücksfläche ca. 13.312 m² (lt. Grundbuch)
- Gesamtnutzfläche: 2858,13 m²
- Büros, Halle, Lager, Grundstück - verwirklichen Sie Ihren Betriebsstandort
- Riesen Potential!
- nicht das gesamte Grundstück ist verbaut, daher weiteres Potential für weitere Hallen!
Betriebskosten (geschätzt):
- Gemeindekosten (Grundsteuer, Wasser, Kanal, Bereitstellung): ca. €688,29 / Quartal
🏫 Bildungseinrichtungen
- Kindergärten: Der Kindergarten ist im Ort und fußläufig erreichbar.
- Volksschule und Mittelschule: Auch diese sind direkt in Neusiedl/Zaya und zu Fuß erreichbar.
🏥 Gesundheitsversorgung
- Arzt für Allgemeinmedizin: Bietet eine medizinische...
Informationen:
- Grundstücksfläche ca. 13.312 m² (lt. Grundbuch)
- Gesamtnutzfläche: 2858,13 m²
- Büros, Halle, Lager, Grundstück - verwirklichen Sie Ihren Betriebsstandort
- Riesen Potential!
- nicht das gesamte Grundstück ist verbaut, daher weiteres Potential für weitere Hallen!
Betriebskosten (geschätzt):
- Gemeindekosten (Grundsteuer, Wasser, Kanal, Bereitstellung): ca. €688,29 / Quartal
🏫 Bildungseinrichtungen
- Kindergärten: Der Kindergarten ist im Ort und fußläufig erreichbar.
- Volksschule und Mittelschule: Auch diese sind direkt in Neusiedl/Zaya und zu Fuß erreichbar.
🏥 Gesundheitsversorgung
- Arzt für Allgemeinmedizin: Bietet eine medizinische Versorgung direkt im Ort.
- Fachärzte: Sind in Neusiedl/Zaya und den umliegenden Gemeinden und bieten eine umfassende Grundversorgung.
- Landesklinikum Mistelbach-Gänserndorf: Ist in knapp 20 Minuten mit dem Auto erreichbar.
🛍️ Nahversorgung
In Neusiedl an der Zaya gibt es einen Nahversorger, weitere Einkaufsmöglichkeiten befinden sich in den umliegenden Ortschaften, die mit dem Fahrrad oder dem Auto gut erreichbar sind.
🚍 Öffentlicher Verkehr
Busverbindungen:
- Linie 562: Verbindet Neusiedl/Zaya mit dem Bahnhof Mistelbach und weiteren Haltestellen in der Umgebung.
- Linie 567: Bedient die Strecke zwischen Mistelbach über Neusiedl/Zaya und Zistersdorf.
Aktuelle Fahrpläne und Verbindungen sind über den Verkehrsverbund Ost-Region (VOR) abrufbar: www.vor.at
Bahnverbindungen:
Der Bahnhof Mistelbach wie auch der Bahnhof Hohenau/March sind mit dem Regionalbus erreichbar und bieten regelmäßige Zugverbindungen nach Wien und in andere Regionen.
🚗 Auto-Anbindung:
- Die Wiener Stadtgrenze ist in ca. 45 Minuten erreichbar.
- Anschluss an die B40 und A5 sorgt für gute regionale und überregionale Anbindung.
🌳 Besonderheiten & Freizeit
Gänserndorf Süd bietet eine hohe Lebensqualität mit zahlreichen Freizeitmöglichkeiten. Die Umgebung lädt zu Spaziergängen und Radtouren ein. Zudem gibt es ein Regionalbad, das überregionale Bedeutung hat.
Wichtig
Unter bestimmten Voraussetzungen (Anmeldung als Hauptwohnsitz, dringendes Wohnbedürfnis), kommen Sie jetzt in den Genuss der Gebührenbefreiung von der Grundbucheintragungsgebühr (1,1%) und der Eintragungsgebühr des Pfandrechts (1,2%)!
SIE SIND NOCH UNSCHLÜSSIG, OB IHRE FINANZIERUNG GESICHERT IST?
Ihre Hausbank benötigt im Normalfall 4-6 Wochen, um Ihnen mitzuteilen, ob Ihr Kredit bewilligt wird, oder nicht. Unser Finanzierungspartner sagt Ihnen nicht nur anhand Ihrer Unterlagen in kürzester Zeit, ob die Finanzierung klappen wird, er sorgt auch für den besten und günstigsten Kredit, da er Zugang zu den besten Angeboten aller relevanten Banken hat.
Hinweis gemäß Energieausweisvorlagegesetz: Ein Energieausweis wurde vom Eigentümer bzw. Verkäufer, nach unserer Aufklärung über die generell geltende Vorlagepflicht, sowie Aufforderung zu seiner Erstellung noch nicht vorgelegt. Daher gilt zumindest eine dem Alter und der Art des Gebäudes entsprechende Gesamtenergieeffizienz als vereinbart. Wir übernehmen keinerlei Gewähr oder Haftung für die tatsächliche Energieeffizienz der angebotenen Immobilie.
Wir weisen darauf hin, dass zwischen dem Vermittler und dem zu vermittelnden Dritten ein familiäres oder wirtschaftliches Naheverhältnis besteht.
Der Vermittler ist als Doppelmakler tätig.
Infrastruktur / Entfernungen
Gesundheit
Arzt <1.000m
Apotheke <7.000m
Kinder & Schulen
Schule <1.000m
Kindergarten <1.000m
Nahversorgung
Supermarkt <2.000m
Bäckerei <1.000m
Sonstige
Bank <1.000m
Geldautomat <1.000m
Polizei <7.000m
Post <3.500m
Verkehr
Bus <1.000m
Autobahnanschluss <8.500m
Bahnhof <9.000m
Angaben Entfernung Luftlinie / Quelle: OpenStreetMap
Objektdaten
Dokumente / Links
Flächen
- Nutzfläche
- 2.858m²
- Grundstücksfläche
- 13.312m²
Kosten
- Kaufpreis Brutto
- € 890.000,00
Hallen und Lager zum Kaufen im Umkreis von Neusiedl an der Zaya
Hallen und Lager zum Kaufen im Umkreis von Neusiedl an der Zaya
Hallen und Lager zum Kaufen in Österreich
Andere Besucher suchen nach...
- Grundstücke kaufen in 3400 Weidlingbach
- Wohnungen kaufen in 4663 Laakirchen
- Häuser in 7471 Rechnitz
- Wohnungen in 2410 Hainburg an der Donau
- Häuser kaufen in 2432 Schwadorf
- Wohnungen kaufen in 3002 Purkersdorf
- Häuser in 3150 Wilhelmsburg
- Wohnungen kaufen in 3470 Engelmannsbrunn
- Grundstücke kaufen im Bezirk Mattersburg
- Grundstücke kaufen im Bezirk Gmunden