Universelle Liegenschaft mit der Möglichkeit der Bebauung, Baugenehmigung vorhanden, hervorragende Infrastruktur / Lend Graz
-
01.01.2025
Beschreibung
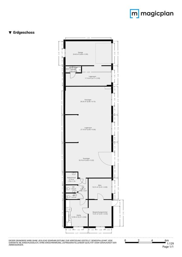
Zu verkaufen ist ein multifunktionales Gebäude in sehr guter Lage in Lend / Graz. Sehr gute Erreichbarkeit, Zufahrt und Lagerflächen, Büros. Die Liegenschaft befindet sich auf einem eingezäunten Grundstück mit eigenem Zufahrt und ausreichend Parkplätzen. Die Gebäude befinden sich in einer ruhigen Seitengasse und eine Ausfahrt zur Hauptstraße ist in der näheren Umgebung.
Die multifunktionales Objekt sind in mehrere Bereiche aufgeteilt:
- Vorraum
- Büro
- 7 extra Räume
- Teeküche
- 2 WC
Darüber hinaus ist es möglich, 10-12 Stellplätze im Hof. Das Gebäude wird durch eine Klimaanlage beheizt und die durchschnittlichen monatlichen Kosten betragen ca. € 100,--. Die Immobilie...
Zu verkaufen ist ein multifunktionales Gebäude in sehr guter Lage in Lend / Graz. Sehr gute Erreichbarkeit, Zufahrt und Lagerflächen, Büros. Die Liegenschaft befindet sich auf einem eingezäunten Grundstück mit eigenem Zufahrt und ausreichend Parkplätzen. Die Gebäude befinden sich in einer ruhigen Seitengasse und eine Ausfahrt zur Hauptstraße ist in der näheren Umgebung.
Die multifunktionales Objekt sind in mehrere Bereiche aufgeteilt:
- Vorraum
- Büro
- 7 extra Räume
- Teeküche
- 2 WC
Darüber hinaus ist es möglich, 10-12 Stellplätze im Hof. Das Gebäude wird durch eine Klimaanlage beheizt und die durchschnittlichen monatlichen Kosten betragen ca. € 100,--. Die Immobilie ist derzeit vermietet.
Das Grundstück hat eine Fläche von 680m² und die zulässige Baudichte WA 06-1,4. Es ist eine Zubau und Aufstockung des Gebäudes geplant und es liegt bereits eine gültige Baugenehmigung vor.
Der Preis für das Gebäude umfasst das Grundstück mit dem Gebäude, das geplante Projekt (Projekt mit drei Wohnungen mit Terrasse, separat nutzbarem Erdgeschoss und genügend Parkplätzen) und alle Genehmigungen.
Für weitere Informationen bzw. für die Vereinbarung eines Besichtigungstermins stehe ich Ihnen gerne zur Verfügung.
Bitte beachten Sie, dass wir aufgrund unserer Nachweispflicht dem Abgeber gegenüber nur Anfragen beantworten können die Ihren Namen, die vollständige Anschrift und eine Telefonnummer enthalten.
Der Vermittler ist als Doppelmakler tätig.
Infrastruktur / Entfernungen
Gesundheit
Arzt <250m
Apotheke <750m
Klinik <500m
Krankenhaus <1.500m
Kinder & Schulen
Schule <500m
Kindergarten <500m
Universität <1.500m
Höhere Schule <1.500m
Nahversorgung
Supermarkt <250m
Bäckerei <500m
Einkaufszentrum <1.000m
Sonstige
Geldautomat <500m
Bank <500m
Post <250m
Polizei <1.000m
Verkehr
Bus <250m
Straßenbahn <500m
Autobahnanschluss <5.000m
Bahnhof <1.000m
Angaben Entfernung Luftlinie / Quelle: OpenStreetMap
Objektdaten
Dokumente / Links
Zustand
- Baujahr
- 1956
- HWB
- 436.6 kWh/m² pro Jahr
- Klasse HWB
- G
- fGEE
- 2.85
- Klasse fGEE
- E
Flächen
- Anzahl der Zimmer
- 8
- Anzahl der sep. WCs
- 2
- Stellplätze
- 10
- Nutzfläche
- 220m²
- Grundstücksfläche
- 680m²
Kosten
- Kaufpreis Brutto
- € 500.000,00
- Betriebskosten
- € 280,00
Verwaltung
- Verfügbar ab
- 01.01.2025
Hallen und Lager zum Kaufen in Österreich
Hallen und Lager zum Kaufen in Österreich
Hallen und Lager zum Kaufen in Österreich
Andere Besucher suchen nach...
- Grundstücke kaufen in 3400 Weidlingbach
- Wohnungen kaufen in 4663 Laakirchen
- Häuser in 7471 Rechnitz
- Wohnungen in 2410 Hainburg an der Donau
- Häuser kaufen in 2432 Schwadorf
- Wohnungen kaufen in 3002 Purkersdorf
- Häuser in 3150 Wilhelmsburg
- Wohnungen kaufen in 3470 Engelmannsbrunn
- Grundstücke kaufen im Bezirk Mattersburg
- Grundstücke kaufen im Bezirk Gmunden