Gelegenheit für Unternehmer: Tischlerei Produktionsbetrieb mit zwei Wohnungen in Waidring zu kaufen
Beschreibung
Gelegenheit für Unternehmer: Tischlerei Produktionsbetrieb mit zwei Wohnungen in Waidring
Diese außergewöhnliche Liegenschaft in Waidring, Tirol, bietet auf einem großzügigen Grundstück von 3.142 qm eine seltene Gelegenheit, wie sie in dieser Größenordnung in Tirol kaum verfügbar ist. Mit einer beeindruckenden Gesamtnutzfläche von 1.388 qm vereint sie eine vielseitige Betriebsfläche mit attraktiven Wohnmöglichkeiten und eignet sich ideal für Unternehmen, die eine zentrale Lage in den Alpen suchen, um Kunden in den Regionen Salzburg, Tirol und sogar Deutschland schnell und effizient beliefern zu können.
Nutzungsmöglichkeiten und Flexibilität
Die Liegenschaft ist als „Allgemeines Mischgebiet“ (§ 40 Abs. 2 Tiroler Raumordnungsgesetz)...
Gelegenheit für Unternehmer: Tischlerei Produktionsbetrieb mit zwei Wohnungen in Waidring
Diese außergewöhnliche Liegenschaft in Waidring, Tirol, bietet auf einem großzügigen Grundstück von 3.142 qm eine seltene Gelegenheit, wie sie in dieser Größenordnung in Tirol kaum verfügbar ist. Mit einer beeindruckenden Gesamtnutzfläche von 1.388 qm vereint sie eine vielseitige Betriebsfläche mit attraktiven Wohnmöglichkeiten und eignet sich ideal für Unternehmen, die eine zentrale Lage in den Alpen suchen, um Kunden in den Regionen Salzburg, Tirol und sogar Deutschland schnell und effizient beliefern zu können.
Nutzungsmöglichkeiten und Flexibilität
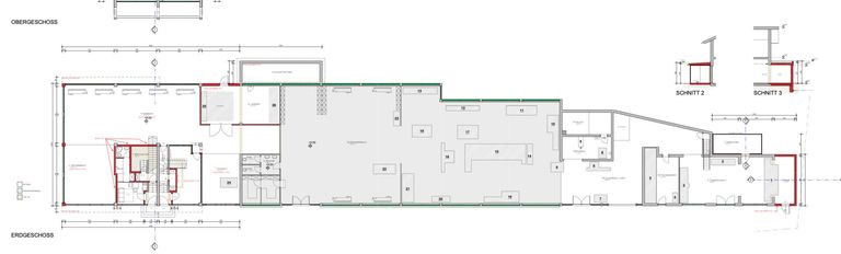
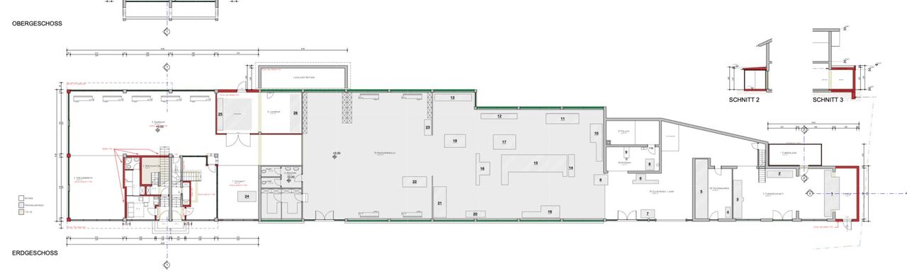
Die Liegenschaft ist als „Allgemeines Mischgebiet“ (§ 40 Abs. 2 Tiroler Raumordnungsgesetz) gewidmet, was zahlreiche Nutzungsvarianten ermöglicht und Unternehmen die Flexibilität bietet, unterschiedliche Geschäftstätigkeiten unter einem Dach zu vereinen. Die Betriebsfläche von 1.079 qm diente ehemals als Tischlerei und ist nun leer, bereit für eine neue Nutzung. Zudem steht eine funktionstüchtige Heizungsanlage zur Verfügung, die bisher mit Holzverschnitt aus der Tischlerei betrieben wurde und eine kostengünstige sowie nachhaltige Heizlösung darstellt. Ausreichende Parkmöglichkeiten auf dem Grundstück runden das Angebot ab und bieten Platz für Mitarbeiter und Kunden.
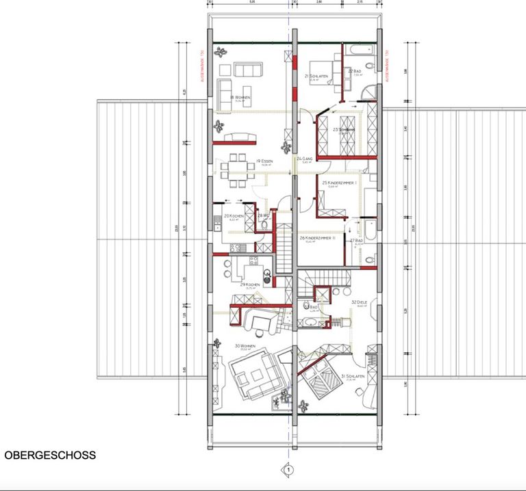
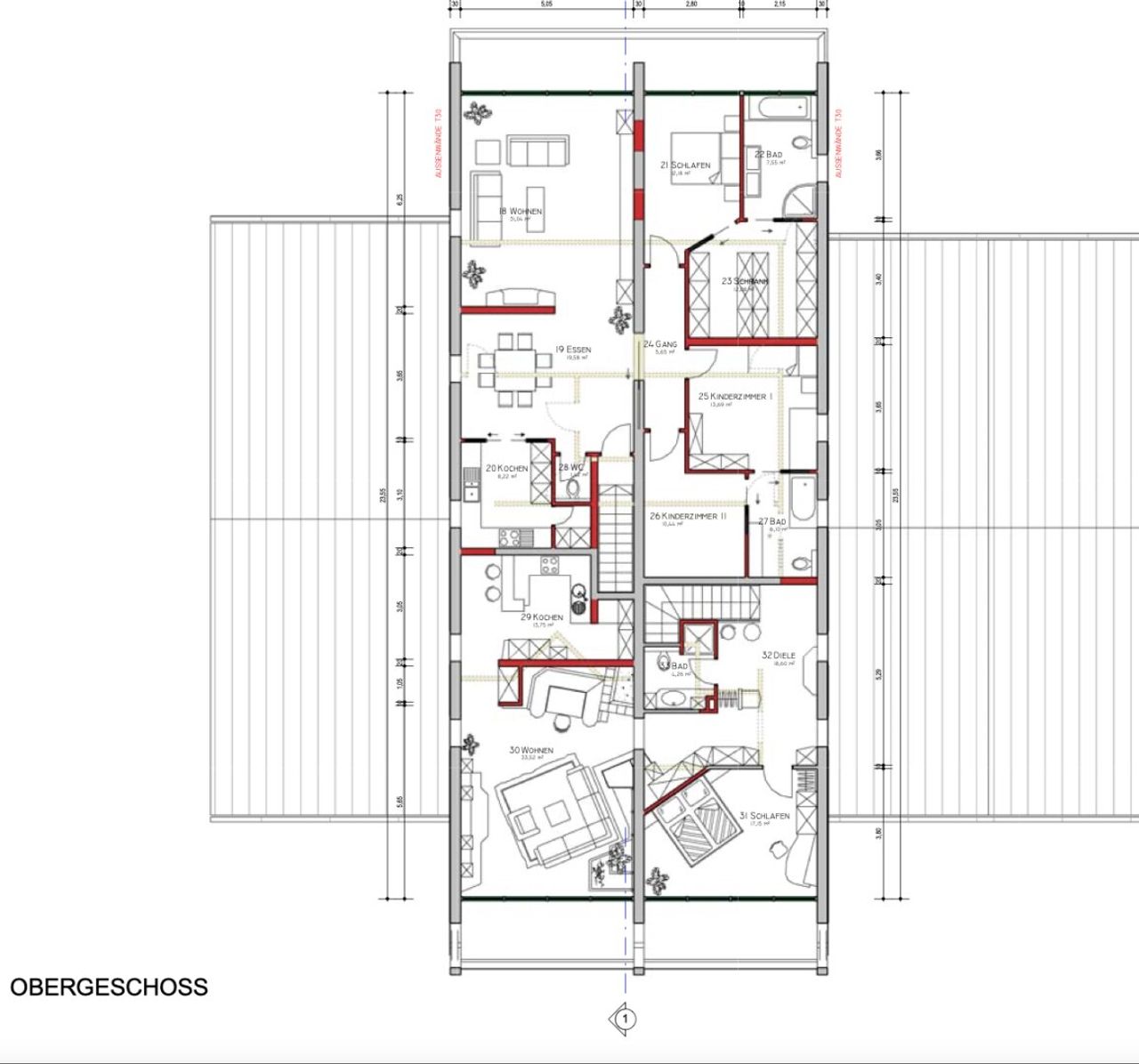
Wohnungen mit Komfort und Tiroler Charme
Das Obergeschoss der Immobilie beherbergt zwei großzügige Wohnungen, die sich ideal für Eigennutzung oder als Unterbringung für Mitarbeiter oder Gäste eignen. Eine der Wohnungen bietet mit knapp 130 qm luxuriösen Wohnraum, der geschmackvoll und zeitlos gestaltet ist – perfekt für jene, die Wert auf gehobenen Komfort legen. Die zweite Wohnung punktet auf etwa 89 qm mit typischem Tiroler Charme und einem sensationellen Blick in die umliegende Alpenlandschaft, der einen einzigartigen Erholungswert bietet.
Verkauf im Rahmen einer Insolvenz
Diese Liegenschaft wird aus einer Insolvenz heraus verkauft, und wir wurden vom Insolvenzverwalter beauftragt, einen geeigneten Käufer zu finden. Sollten Sie Interesse an dieser einzigartigen Immobilie haben, stehen wir Ihnen gerne für weitere Informationen und zur Vereinbarung eines Besichtigungstermins zur Verfügung.
Noch nichts gefunden? Wir informieren Sie über geeignete Immobilienangebote noch vor allen anderen.
Legen Sie jetzt Ihren individuellen Suchagenten unter folgendem Link an. Wir schicken Ihnen passende Immobilien exklusiv vorab zu.
Suchagent anlegen - https://zefi-immobilien.service.immo/registrieren/de
Wir weisen darauf hin, dass zwischen dem Vermittler und dem zu vermittelnden Dritten ein familiäres oder wirtschaftliches Naheverhältnis besteht.
Der Vermittler ist als Doppelmakler tätig.
Infrastruktur / Entfernungen
Gesundheit
Arzt <1.000m
Apotheke <9.000m
Kinder & Schulen
Schule <1.000m
Kindergarten <1.000m
Nahversorgung
Supermarkt <500m
Bäckerei <500m
Sonstige
Bank <1.000m
Post <1.000m
Geldautomat <1.000m
Polizei <7.500m
Verkehr
Bus <500m
Angaben Entfernung Luftlinie / Quelle: OpenStreetMap
Objektdaten
Ausstattung
- Räume veränderbar
- Teilmöbliert
- Kabel/SAT-TV
- Wasch-/Trockenraum
- DV Verkabelung
- Gäste-WC
- Bad mit Dusche
- Bad mit Fenster
- Einbauküche
- Fliesenboden
- Laminatboden
- Zentralheizung
- Befeuerung mit Holz
- Satteldach
- Flachdach
- Holz Bauweise
Zustand
- Zustand
- GEPFLEGT
- Alter
- NEUBAU
Flächen
- Wohnfläche
- 219m²
- Nutzfläche
- 1.388m²
- Lagerfläche
- 1.080m²
- Grundstücksfläche
- 3.142m²
Kosten
- Kaufpreis Brutto
- € 2.200.000,00
Hallen und Lager zum Kaufen im Umkreis von Waidring
Hallen und Lager zum Kaufen im Umkreis von Waidring
Hallen und Lager zum Kaufen in Österreich
Andere Besucher suchen nach...
- Grundstücke kaufen in 3400 Weidlingbach
- Wohnungen kaufen in 4663 Laakirchen
- Häuser in 7471 Rechnitz
- Wohnungen in 2410 Hainburg an der Donau
- Häuser kaufen in 2432 Schwadorf
- Wohnungen kaufen in 3002 Purkersdorf
- Häuser in 3150 Wilhelmsburg
- Wohnungen kaufen in 3470 Engelmannsbrunn
- Grundstücke kaufen im Bezirk Mattersburg
- Grundstücke kaufen im Bezirk Gmunden