Gewerbeliegenschaft mit Bungalow in Puchkichen zu kaufen
-
2024
-
sofort
Beschreibung
Gewerbeliegenschaft mit Bungalow in Puchkichen zu kaufen
Moderner Bungalow mit Doppelgarage, Lagerhalle und zweiter Wohnung.
Das Grundstück liegt im Mischbaugebiet, das heißt, es ist auch eine gewerbliche Nutzung möglich.
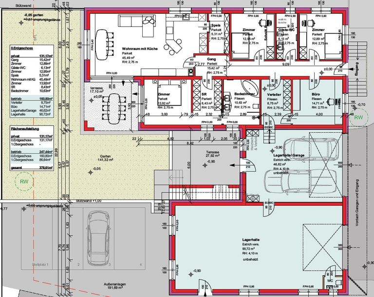
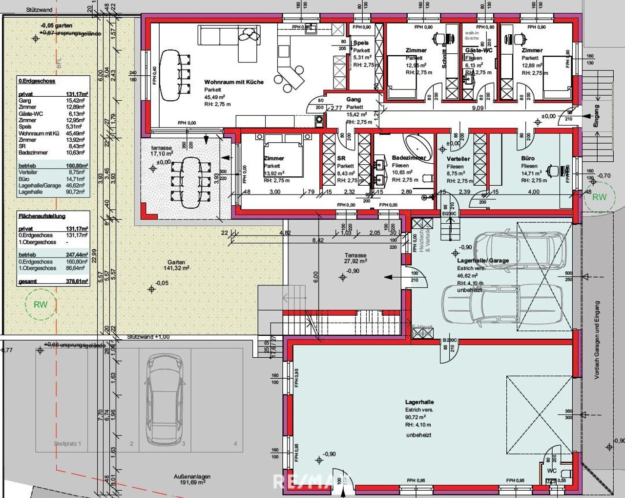
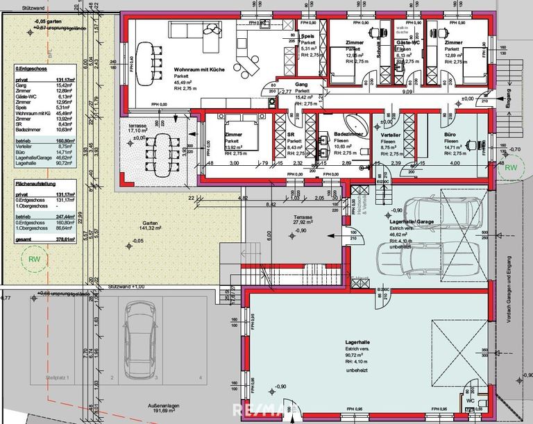
Die Nutzflächen teilen sich in zwei Wohnbereiche, eine im Bungalow mit ca.131 m².
Der Wohnraum teilt sich in Vorhaus mit Garderobe, Küche mit einer Kochinsel, einer Speisekammer, sowie Essplatz und das offene Wohnzimmer mit Kamin und mit dem Ausgang auf die überdachte Terrasse.
Ein Elternschlafzimmer mit Schrankraum und eigenem Badezimmer mit WC. Zwei weitere Schlafzimmer und eine extra Dusche mit WC stehen für die Familie und die Gäste zur Verfügung. Ein...
Gewerbeliegenschaft mit Bungalow in Puchkichen zu kaufen
Moderner Bungalow mit Doppelgarage, Lagerhalle und zweiter Wohnung.
Das Grundstück liegt im Mischbaugebiet, das heißt, es ist auch eine gewerbliche Nutzung möglich.
Die Nutzflächen teilen sich in zwei Wohnbereiche, eine im Bungalow mit ca.131 m².
Der Wohnraum teilt sich in Vorhaus mit Garderobe, Küche mit einer Kochinsel, einer Speisekammer, sowie Essplatz und das offene Wohnzimmer mit Kamin und mit dem Ausgang auf die überdachte Terrasse.
Ein Elternschlafzimmer mit Schrankraum und eigenem Badezimmer mit WC. Zwei weitere Schlafzimmer und eine extra Dusche mit WC stehen für die Familie und die Gäste zur Verfügung. Ein weiteres Zimmer ist als Büro benutzbar.
Auffällig hohe Räume und der helle Marmorboden bieten ein angenehmes Wohngefühl.
Die zweite Wohnfläche liegt im Obergeschoß der Lagerhalle mit ca. 90 m², und einer nicht einsehbaren Dachterrasse mit ca. 47 m². Diese ist als Mitarbeiterwohnung gewidmet.
Auch diese bietet eine Küche, Bad und WC, sowie zwei Schlafzimmer.
Beide Wohnungen sind voll eingerichtet mit Küchen und Wohnmöbeln.
Beheizt werden die Flächen mit zwei sparsamen Luftwärmepumpen und Fußbodenheizung.
Die Doppelgarage mit 46 m² und die Lagehalle mit 90 m² könnten auch gewerblich genutzt werden.
Die gesamte Nutzfläche von 378 m² teilt sich in den Wohnbereich mit 131 m², die Garagen.
Das Lager und die Mitarbeiterwohnung mit zusammen 247 m² werden betrieblich genutzt.
Die Gebäude wurden in der Zwischenzeit fertig isoliert, genetzt und gespachtelt, die Farbe für den Putz können Sie noch selbst bestimmen.
Garten, Stützmauer und Eingangsbereich wird noch fertiggestellt.
Puchkirchen am Trattberg liegt ca. 15 Minuten von der Bezirkshauptstadt Vöcklabruck und der Westautobahn entfernt.
Der Vermittler ist als Doppelmakler tätig
Der Vermittler ist als Doppelmakler tätig.
Infrastruktur / Entfernungen
Gesundheit
Arzt <3.000m
Apotheke <5.000m
Krankenhaus <6.500m
Klinik <8.500m
Kinder & Schulen
Schule <1.000m
Kindergarten <1.000m
Höhere Schule <7.000m
Nahversorgung
Supermarkt <1.500m
Bäckerei <3.000m
Einkaufszentrum <8.000m
Sonstige
Bank <1.000m
Geldautomat <1.000m
Post <5.500m
Polizei <5.500m
Verkehr
Bus <1.000m
Bahnhof <3.500m
Autobahnanschluss <10.000m
Angaben Entfernung Luftlinie / Quelle: OpenStreetMap
Objektdaten
Ausstattung
- Vollmöbliert
- Zentralheizung
- Fußbodenheizung
- Luftwärmepumpe
- Massiv Bauweise
Dokumente / Links
Zustand
- Baujahr
- 2024
- Alter
- NEUBAU
- HWB
- 68.9 kWh/m² pro Jahr
- Klasse HWB
- C
- fGEE
- 0.74
- Klasse fGEE
- A
Flächen
- Anzahl der Zimmer
- 7
- Anzahl der Badezimmer
- 2
- Anzahl der sep. WCs
- 3
- Anzahl der Terrassen
- 1
- Wohnfläche
- 131m²
- Nutzfläche
- 378m²
- Grundstücksfläche
- 1.023m²
- Terrassenfläche
- 1m²
Kosten
- Kaufpreis Brutto
- € 749.000,00
Verwaltung
- Verfügbar ab
- sofort
Hallen und Lager zum Kaufen im Umkreis von Puchkirchen am Trattberg
Hallen und Lager zum Kaufen im Umkreis von Puchkirchen am Trattberg
Hallen und Lager zum Kaufen in Österreich
Andere Besucher suchen nach...
- Grundstücke kaufen in 3400 Weidlingbach
- Wohnungen kaufen in 4663 Laakirchen
- Häuser in 7471 Rechnitz
- Wohnungen in 2410 Hainburg an der Donau
- Häuser kaufen in 2432 Schwadorf
- Wohnungen kaufen in 3002 Purkersdorf
- Häuser in 3150 Wilhelmsburg
- Wohnungen kaufen in 3470 Engelmannsbrunn
- Grundstücke kaufen im Bezirk Mattersburg
- Grundstücke kaufen im Bezirk Gmunden