Multifunktionales Gewerbeobjekt in Gratkorn
-
01.08.2025
Beschreibung
Die Liegenschaft befindet sich in erstklassiger Lage direkt an der Hauptstraße in Gratkorn und erfüllt alle Anforderungen für Ihr Unternehmen – unabhängig von der Branche. In dieser frequentierten Lage steht ein modernes, multifunktionales Gebäude mit großzügiger Schauraumfläche zur Vermietung.
Das Objekt eignet sich ideal für vielfältige Nutzungen, wie etwa Büro, Einzelhandel, Supermarkt, Fitnessstudio, Ordination, Verein oder Praxis.
Besonders hervorzuheben ist die ausgezeichnete Verkehrsanbindung – sowohl in Richtung Graz als auch zur nahegelegenen Autobahn. Die vollständig verglaste Straßenfront bietet optimale Präsentationsmöglichkeiten und eignet sich hervorragend als Schaufensterfläche.
Die Räumlichkeiten liegen im Erdgeschoss und verfügen über einen direkten Zugang vom Gehsteig. Direkt...
Die Liegenschaft befindet sich in erstklassiger Lage direkt an der Hauptstraße in Gratkorn und erfüllt alle Anforderungen für Ihr Unternehmen – unabhängig von der Branche. In dieser frequentierten Lage steht ein modernes, multifunktionales Gebäude mit großzügiger Schauraumfläche zur Vermietung.
Das Objekt eignet sich ideal für vielfältige Nutzungen, wie etwa Büro, Einzelhandel, Supermarkt, Fitnessstudio, Ordination, Verein oder Praxis.
Besonders hervorzuheben ist die ausgezeichnete Verkehrsanbindung – sowohl in Richtung Graz als auch zur nahegelegenen Autobahn. Die vollständig verglaste Straßenfront bietet optimale Präsentationsmöglichkeiten und eignet sich hervorragend als Schaufensterfläche.
Die Räumlichkeiten liegen im Erdgeschoss und verfügen über einen direkten Zugang vom Gehsteig. Direkt davor befinden sich Kundenparkplätze, die eine komfortable Erreichbarkeit gewährleisten.
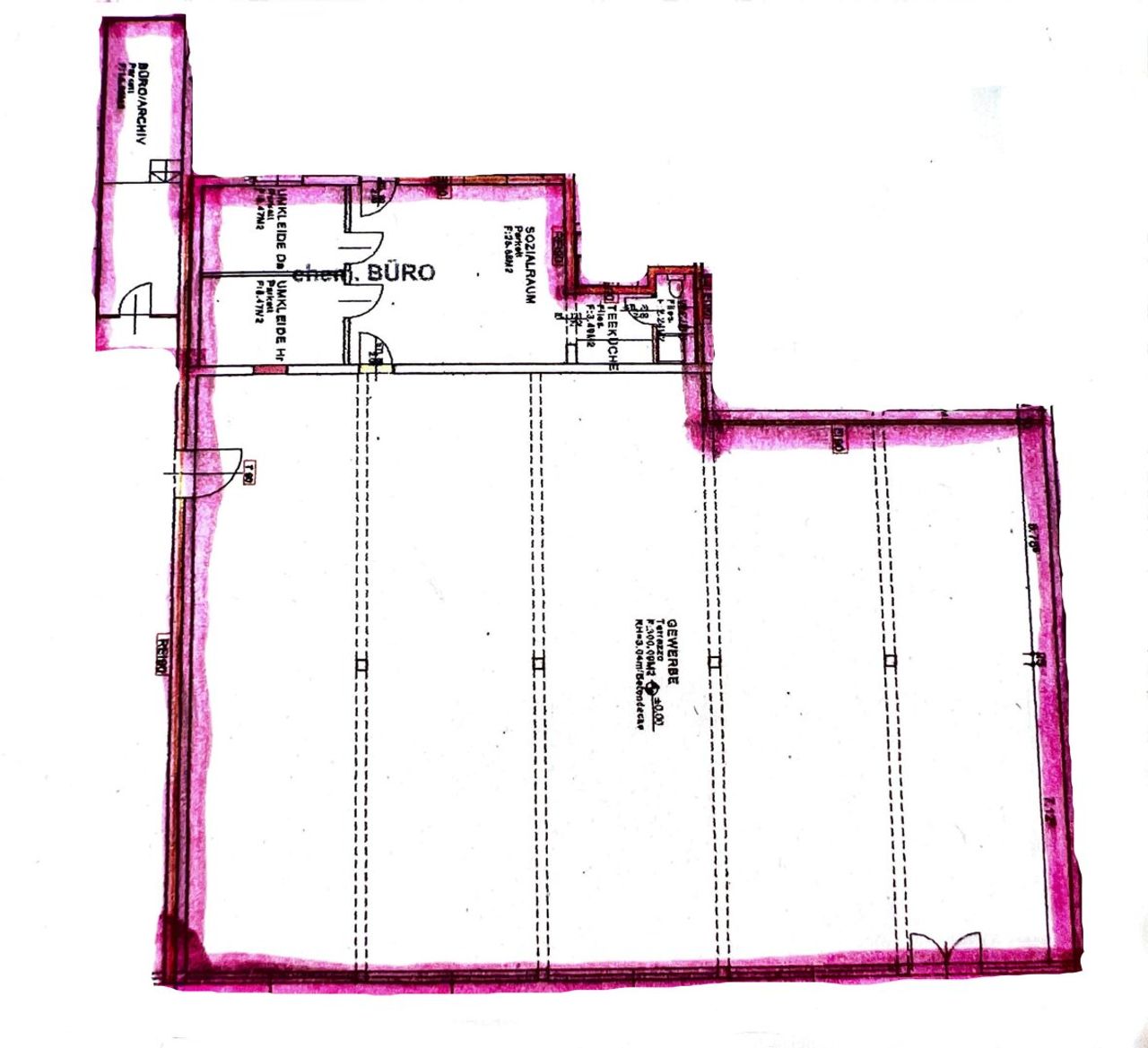
Die Gesamtfläche von ca. 388 m² ist in mehrere separat nutzbare Räume unterteilt, die selbstverständlich flexibel an die individuellen Anforderungen Ihres Unternehmens angepasst werden können.
Die Räumlichkeiten sind aufgeteilt:
- Gewerbefläche ca. 320m²
- Lagerfläche 36m²
- Garconniere 32m²
- 4 zugeordnete Parkplätze
Preisinformationen:
- Miete: 3171,- + 20%Ust. = € 3.805,20 / monatlich
- Betriebskosten: 278,- + 20% Ust. = 333,60 / monatlich
- Die Kosten der direkten Verbrauchsabgaben wie Strom, etc. sind vom Mieter direkt zu bezahlen
Für weitere Informationen bzw. für die Vereinbarung eines Besichtigungstermins stehe ich Ihnen gerne zur Verfügung.
Bitte beachten Sie, dass wir aufgrund unserer Nachweispflicht dem Abgeber gegenüber nur Anfragen beantworten können die Ihren Namen, die vollständige Anschrift und eine Telefonnummer enthalten.
Der Vermittler ist als Doppelmakler tätig.
Infrastruktur / Entfernungen
Gesundheit
Arzt <250m
Apotheke <1.000m
Klinik <1.500m
Krankenhaus <3.750m
Kinder & Schulen
Schule <750m
Kindergarten <1.000m
Universität <8.250m
Höhere Schule <8.250m
Nahversorgung
Supermarkt <250m
Bäckerei <750m
Einkaufszentrum <4.750m
Sonstige
Bank <750m
Geldautomat <750m
Post <1.750m
Polizei <1.750m
Verkehr
Bus <250m
Straßenbahn <6.500m
Bahnhof <1.250m
Autobahnanschluss <2.000m
Angaben Entfernung Luftlinie / Quelle: OpenStreetMap
Objektdaten
Flächen
- Stellplätze
- 4
- Nutzfläche
- 388m²
Kosten
- Gesamtmiete Brutto
- € 4.138,80
- Kaution
- € 15.000,00
- Miete
- € 3.171,00
- Betriebskosten
- € 278,00
- Umsatzsteuer
- € 689,80
Verwaltung
- Verfügbar ab
- 01.08.2025
Hallen und Lager zum Mieten im Umkreis von Gratkorn
Hallen und Lager zum Mieten im Umkreis von Gratkorn
Hallen und Lager zum Mieten in Österreich
Andere Besucher suchen nach...
- Grundstücke kaufen in 3400 Weidlingbach
- Wohnungen kaufen in 4663 Laakirchen
- Häuser in 7471 Rechnitz
- Wohnungen in 2410 Hainburg an der Donau
- Häuser kaufen in 2432 Schwadorf
- Wohnungen kaufen in 3002 Purkersdorf
- Häuser in 3150 Wilhelmsburg
- Wohnungen kaufen in 3470 Engelmannsbrunn
- Grundstücke kaufen im Bezirk Mattersburg
- Grundstücke kaufen im Bezirk Gmunden