Gewerbehalle mit Büros und Lagerfläche in Top-Lage – Ideal für Produktion, Logistik und Handel mit großzügigen Parkmöglichkeiten!
Beschreibung
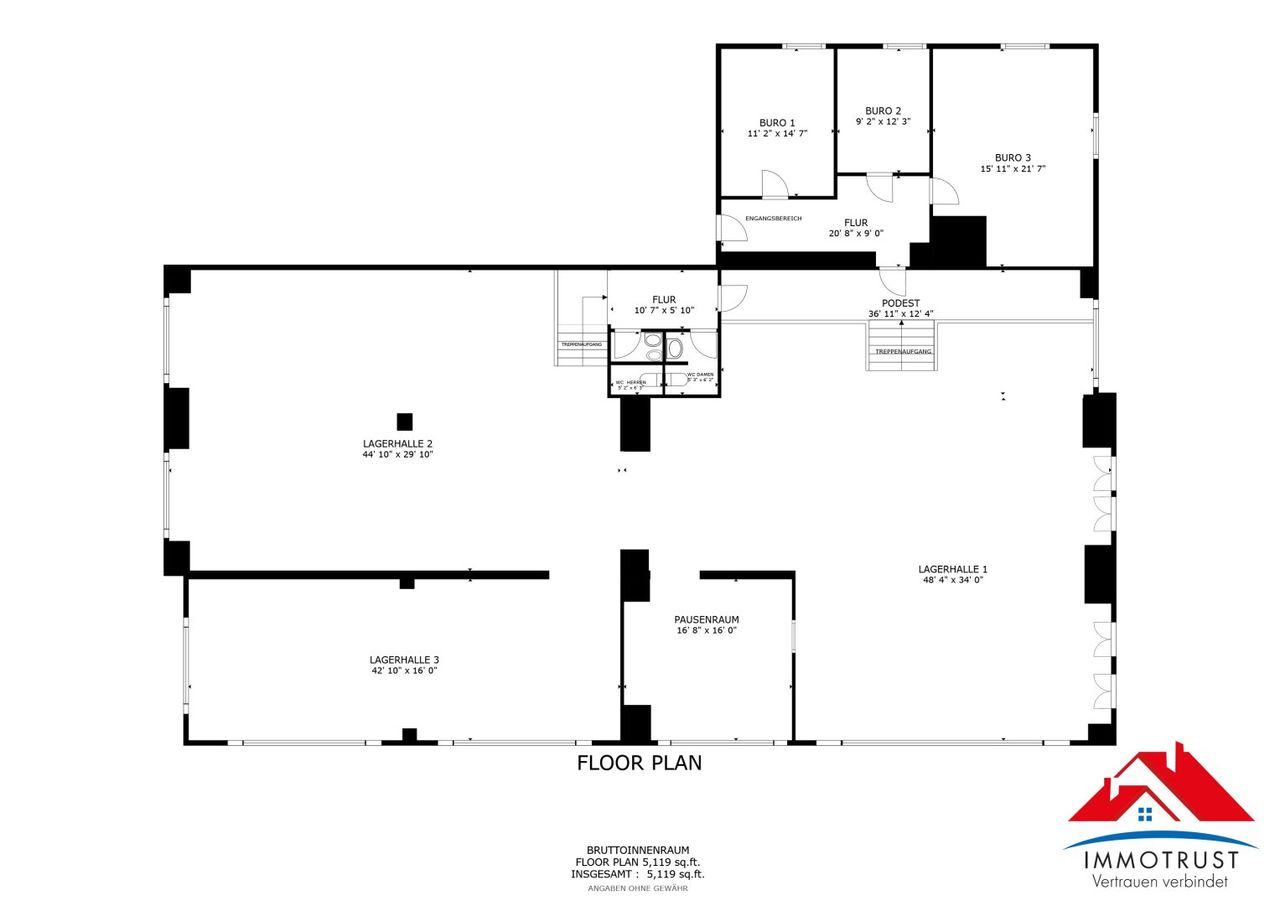
Diese vielseitig nutzbare Gewerbeimmobilie in Klagenfurt überzeugt mit einer durchdachten Raumaufteilung, einer hervorragenden Verkehrsanbindung und einer flexiblen Nutzungsmöglichkeit für Produktion, Lagerung, Handel oder Verwaltung. Die Immobilie bietet eine Gesamtfläche von ca. 475 m², bestehend aus Büros, Lager- und Produktionsflächen, und ist ideal für Unternehmen aus den Bereichen Logistik, Handwerk, Vertrieb oder Gewerbe.
Aufteilung und Ausstattung
Büroflächen
Der Bürotrakt umfasst drei Büroräume – zwei kleinere sowie ein größeres Büro. Diese sind über einen repräsentativen Eingangsbereich zugänglich und bieten eine funktionale und angenehme Arbeitsumgebung für Verwaltung, Vertrieb, Kundenempfang oder Planungsbüros.
Lager- und Produktionshalle
Die Halle ist in zwei große Bereiche unterteilt:
- ...
Diese vielseitig nutzbare Gewerbeimmobilie in Klagenfurt überzeugt mit einer durchdachten Raumaufteilung, einer hervorragenden Verkehrsanbindung und einer flexiblen Nutzungsmöglichkeit für Produktion, Lagerung, Handel oder Verwaltung. Die Immobilie bietet eine Gesamtfläche von ca. 475 m², bestehend aus Büros, Lager- und Produktionsflächen, und ist ideal für Unternehmen aus den Bereichen Logistik, Handwerk, Vertrieb oder Gewerbe.
Aufteilung und Ausstattung
Büroflächen
Der Bürotrakt umfasst drei Büroräume – zwei kleinere sowie ein größeres Büro. Diese sind über einen repräsentativen Eingangsbereich zugänglich und bieten eine funktionale und angenehme Arbeitsumgebung für Verwaltung, Vertrieb, Kundenempfang oder Planungsbüros.
Lager- und Produktionshalle
Die Halle ist in zwei große Bereiche unterteilt:
Vordere Halle: Verfügt über ein separates Büro, das zuletzt als Pausenraum genutzt wurde.
Hintere Halle: Teilweise durch Trockenbauwände und Regale unterteilt, die nach Bedarf entfernt oder angepasst werden können.
Dank der flexiblen Gestaltung eignet sich die Halle für Lagerhaltung, Produktionsbetriebe, Werkstätten, Speditionen oder Großhandel.
Zugänglichkeit und Verkehrsanbindung
Die Gewerbehalle verfügt über zwei große Tore, die einen bequemen Zugang für Anlieferung und Warentransportermöglichen. Weitere Vorteile:
Gute Zufahrtsmöglichkeiten für LKW, Transporter und Sattelzüge
Ausreichend Parkplätze für PKW, Lieferfahrzeuge und Mitarbeiter
Die Immobilie liegt an der Rosenbergstraße, nur wenige Meter von der stark frequentierten Völkermarkter Straßeentfernt. Die Autobahn A2 ist in ca. 8 Minuten erreichbar, mit optimaler Verbindung nach Wien, Graz, Villach sowie nach Slowenien und Italien.
Sicherheit und Infrastruktur
Die Gewerbehalle ist mit einer Alarmanlage und Videoüberwachung ausgestattet. Die gegenüberliegende Goëss-Kaserne sorgt für zusätzliche Sicherheit, was die Immobilie besonders attraktiv für die Lagerung von wertvollen Waren oder technischen Geräten macht.
Der Standort liegt in einer etablierten Gewerbezone, umgeben von Einzelhandel, Industrie und Dienstleistungsunternehmen. In unmittelbarer Nähe befinden sich das Möbelhaus XXLutz und das Elisabethinen-Krankenhaus, was die Attraktivität der Lage für Kunden, Geschäftspartner und Mitarbeiter weiter steigert.
Diese moderne Gewerbehalle mit Büros bietet optimale Voraussetzungen für Unternehmen aus den Bereichen Logistik, Produktion, Handwerk, Handel oder Verwaltung. Die zentral gelegene Gewerbeimmobilie in Klagenfurt überzeugt mit flexibler Nutzung, idealer Erreichbarkeit und hoher Sicherheitsausstattung.
Nutzen Sie diese einmalige Gelegenheit, um Ihr Unternehmen an einem verkehrsgünstigen und strategisch vorteilhaften Standort zu positionieren.
Infrastruktur / Entfernungen
Gesundheit
Arzt <1.000m
Apotheke <1.000m
Krankenhaus <1.000m
Klinik <2.000m
Kinder & Schulen
Schule <500m
Kindergarten <500m
Universität <1.500m
Höhere Schule <2.000m
Nahversorgung
Supermarkt <500m
Bäckerei <1.000m
Einkaufszentrum <1.500m
Sonstige
Bank <1.000m
Geldautomat <1.000m
Post <1.000m
Polizei <500m
Verkehr
Bus <500m
Autobahnanschluss <2.500m
Bahnhof <1.000m
Flughafen <2.500m
Angaben Entfernung Luftlinie / Quelle: OpenStreetMap
Objektdaten
Ausstattung
- Laminatboden
- Estrichboden
- Zentralheizung
- Fern Befeuerung
- Alarmanlage
- Kamera
- Flachdach
Dokumente / Links
Flächen
- Anzahl der sep. WCs
- 2
- Wohnfläche
- 476m²
- Nutzfläche
- 476m²
Kosten
- Gesamtmiete Brutto
- € 3.204,00
- Miete
- € 2.065,00
- Betriebskosten
- € 605,00
- Heizkosten
- € 460,00
- Umsatzsteuer
- € 626,00
Verwaltung
- Verfügbar ab
- nach Vereinbarung
Hallen und Lager zum Mieten in Österreich
Hallen und Lager zum Mieten in Österreich
Hallen und Lager zum Mieten in Österreich
Andere Besucher suchen nach...
- Grundstücke kaufen in 3400 Weidlingbach
- Wohnungen kaufen in 4663 Laakirchen
- Häuser in 7471 Rechnitz
- Wohnungen in 2410 Hainburg an der Donau
- Häuser kaufen in 2432 Schwadorf
- Wohnungen kaufen in 3002 Purkersdorf
- Häuser in 3150 Wilhelmsburg
- Wohnungen kaufen in 3470 Engelmannsbrunn
- Grundstücke kaufen im Bezirk Mattersburg
- Grundstücke kaufen im Bezirk Gmunden