Mehrzweckfläche / Lagerräume in guter Lage in Linz
-
Kurzfristig
Beschreibung
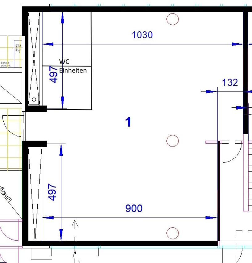
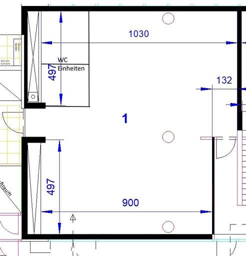
Entdecken Sie Ihre neue Mehrzweckfläche bzw. Lagerfläche im Herzen von Linz, Oberösterreich! Diese Fläche von 121,28 m² im Erdgeschoss bietet Ihnen nicht nur eine hervorragende Lage, sondern auch zahlreiche Annehmlichkeiten, die Ihren Arbeitsalltag erleichtern werden.
Diese Einheit ist mit einem Doppelboden ausgestattet, der nicht nur für eine angenehme Raumakustik sorgt, sondern auch eine flexible und vielseitige Nutzung ermöglicht. Der Boden ist pflegeleicht und bietet eine ansprechende Optik.
Ein weiteres Highlight sind die zwei WCs, die Ihnen und Ihren Mitarbeitern zusätzlichen Komfort bieten. Zudem sorgt die Fernwärme und Zentralheizung für ein angenehmes Raumklima.
Die Verkehrsanbindung könnte besser nicht sein: Die Haltestelle...
Entdecken Sie Ihre neue Mehrzweckfläche bzw. Lagerfläche im Herzen von Linz, Oberösterreich! Diese Fläche von 121,28 m² im Erdgeschoss bietet Ihnen nicht nur eine hervorragende Lage, sondern auch zahlreiche Annehmlichkeiten, die Ihren Arbeitsalltag erleichtern werden.
Diese Einheit ist mit einem Doppelboden ausgestattet, der nicht nur für eine angenehme Raumakustik sorgt, sondern auch eine flexible und vielseitige Nutzung ermöglicht. Der Boden ist pflegeleicht und bietet eine ansprechende Optik.
Ein weiteres Highlight sind die zwei WCs, die Ihnen und Ihren Mitarbeitern zusätzlichen Komfort bieten. Zudem sorgt die Fernwärme und Zentralheizung für ein angenehmes Raumklima.
Die Verkehrsanbindung könnte besser nicht sein: Die Haltestelle für öffentliche Verkehrsmittel ist gleich um die Ecke, der Bahnhof ist schnell erreichbar und der Autobahnanschluss ermöglicht Ihnen eine unkomplizierte Anreise, egal von wo Sie kommen. Vier Parkplätze sind in diesem Angebot inkludiert!
Die im Erdgeschoß gelegene Einheit überzeugt durch ihre hohe Funktionalität, insbesondere für Teams mit regelmäßigem Waren- und Materialumschlag.
Infrastruktur / Entfernungen
Gesundheit
Arzt <1.000m
Apotheke <500m
Klinik <1.500m
Krankenhaus <1.500m
Kinder & Schulen
Kindergarten <500m
Schule <500m
Universität <1.000m
Höhere Schule <1.500m
Nahversorgung
Supermarkt <500m
Bäckerei <500m
Einkaufszentrum <2.000m
Sonstige
Bank <500m
Geldautomat <500m
Post <2.000m
Polizei <1.000m
Verkehr
Bus <500m
Straßenbahn <1.500m
Bahnhof <500m
Autobahnanschluss <500m
Flughafen <3.000m
Angaben Entfernung Luftlinie / Quelle: OpenStreetMap
Objektdaten
Ausstattung
- Räume veränderbar
- Rollstuhlgerecht
- Barrierefrei
- DV Verkabelung
- Kabelkanäle
- Kunststoffboden
- Doppelboden
- Zentralheizung
- Fernwärme Heizung
- Personen Fahrstuhl
- Flachdach
- Massiv Bauweise
Zustand
- Zustand
- NEUWERTIG
- Alter
- NEUBAU
- HWB
- 80 kWh/m² pro Jahr
- Klasse HWB
- C
- fGEE
- 1.29
- Klasse fGEE
- C
Flächen
- Anzahl der sep. WCs
- 2
- Nutzfläche
- 121m²
Kosten
- Gesamtmiete Brutto
- € 1.823,59
- Kaution
- € 6.060,21
- Miete
- € 1.169,60
- Betriebskosten
- € 350,06
- Heizkosten
- € 163,73
- Umsatzsteuer
- € 336,68
Verwaltung
- Verfügbar ab
- Kurzfristig
Hallen und Lager zum Mieten in Österreich
Hallen und Lager zum Mieten in Österreich
Hallen und Lager zum Mieten in Österreich
Andere Besucher suchen nach...
- Grundstücke kaufen in 3400 Weidlingbach
- Wohnungen kaufen in 4663 Laakirchen
- Häuser in 7471 Rechnitz
- Wohnungen in 2410 Hainburg an der Donau
- Häuser kaufen in 2432 Schwadorf
- Wohnungen kaufen in 3002 Purkersdorf
- Häuser in 3150 Wilhelmsburg
- Wohnungen kaufen in 3470 Engelmannsbrunn
- Grundstücke kaufen im Bezirk Mattersburg
- Grundstücke kaufen im Bezirk Gmunden