WIESING - Attraktive Gewerbefläche in verkehrsgünstiger Lage – sofort verfügbar !
-
Erstbezug
-
2025
-
sofort
Beschreibung
Sehr geehrte Damen und Herren,
vielen Dank für Ihr Interesse an dieser Gewerbefläche in Wiesing!
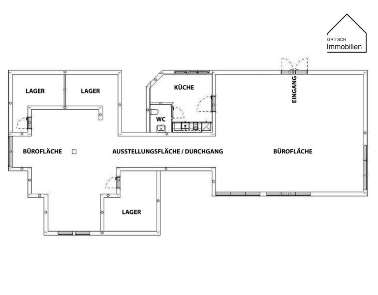
Zur Vermietung gelangen repräsentative, frisch renovierte Gewerberäumlichkeiten mit ca. 170 m² Nutzfläche im 1. Obergeschoss eines gut frequentierten Gewerbeobjekts in hochwertiger Lage direkt neben der Autobahnauffahrt Wiesing. Die ausgezeichnete Verkehrsanbindung gewährleistet eine optimale Erreichbarkeit sowohl für Kunden als auch für Mitarbeiter.
Die Immobilie verfügt über einen separaten, unabhängigen Eingang und bietet vielseitige Nutzungsmöglichkeiten – ideal als Büro, Planungsstudio, Kanzlei, Ausstellungs- oder Beratungsfläche.
Im Erdgeschoss befindet sich ein etabliertes Küchenstudio mit regem Kundenverkehr, was insbesondere für Planer, Architekten, Innenarchitekten, Raumausstatter, Unternehmen aus der Baubranche oder verwandte...
Sehr geehrte Damen und Herren,
vielen Dank für Ihr Interesse an dieser Gewerbefläche in Wiesing!
Zur Vermietung gelangen repräsentative, frisch renovierte Gewerberäumlichkeiten mit ca. 170 m² Nutzfläche im 1. Obergeschoss eines gut frequentierten Gewerbeobjekts in hochwertiger Lage direkt neben der Autobahnauffahrt Wiesing. Die ausgezeichnete Verkehrsanbindung gewährleistet eine optimale Erreichbarkeit sowohl für Kunden als auch für Mitarbeiter.
Die Immobilie verfügt über einen separaten, unabhängigen Eingang und bietet vielseitige Nutzungsmöglichkeiten – ideal als Büro, Planungsstudio, Kanzlei, Ausstellungs- oder Beratungsfläche.
Im Erdgeschoss befindet sich ein etabliertes Küchenstudio mit regem Kundenverkehr, was insbesondere für Planer, Architekten, Innenarchitekten, Raumausstatter, Unternehmen aus der Baubranche oder verwandte Dienstleister einen deutlichen Standortvorteil darstellt. Attraktive Synergieeffekte und zusätzliche Kundenfrequenz sind gegeben.
Die Räumlichkeiten wurden umfassend renoviert, präsentieren sich in hellem, modernem Zustand und sind sofort bezugsfertig. Neben den großzügigen Nutzflächen stehen Teeküche, WC sowie Lagerräume zur Verfügung.
Zahlreiche Kundenparkplätze direkt vor dem Gebäude sorgen für hohen Komfort und unterstreichen die Funktionalität dieses Standorts.
Eckdaten & Highlights:
Nutzfläche: ca. 170 m²
Lage: direkt an der Autobahn / sehr gute Verkehrsanbindung
Geschoss: 1. Obergeschoss
Zugang: separater Eingang
Zustand: frisch renoviert
Verfügbarkeit: sofort
Nutzung: Büro, Kanzlei, Ausstellung, Planung, Beratung, etc.
Kundenfrequenz durch Küchenstudio im EG
viele Kundenparkplätze vorhanden
Miete:
Nettomiete: € 2.550,– pro Monat
Bruttomiete: € 3.060,– pro Monat (inkl. USt)
Betriebskosten: verbrauchsabhängig
Kaution: nach Vereinbarung
Gerne präsentieren wir Ihnen diese attraktive Gewerbefläche im Rahmen einer persönlichen Besichtigung.
Die Vermittlung der Immobilie erfolgt kostenlos.
Vielen Dank und noch einen schönen Tag,
Mit freundlichen Grüßen
Bmstr. Ing. Matthias Gritsch, BSc. Arch. EUR-Ing
Staatl. Gepr. Immobilientreuhänder, Geschäftsführung,
GRITSCH Immobilien | Gewerbepark Süd 6 | 6068 Mils | www.gritsch.immo
Courtagepassus
Ich übernehme keine Gewähr für die Vollständigkeit, Richtigkeit und Aktualität dieser Angaben.
Kaufnebenkosten Lt. Beiblatt und insbesondere:
3,5 % Grunderwerbssteuer, 1,1 % Grundbuchseintragungsgebühr, 3,0 % zzgl. 20 % USt Erfolgshonorar,
1,5% zzgl. 20 % USt Kosten für die Errichtung des Kaufvertrages und Treuhandschaft lt. Anwaltstarif zzgl. Barauslagen
Wir weisen darauf hin, dass zwischen dem Vermittler und dem zu vermittelnden Dritten ein familiäres oder wirtschaftliches Naheverhältnis besteht.
Infrastruktur / Entfernungen
Gesundheit
Arzt <500m
Apotheke <500m
Klinik <500m
Krankenhaus <1.000m
Kinder & Schulen
Schule <500m
Kindergarten <500m
Nahversorgung
Supermarkt <500m
Bäckerei <500m
Einkaufszentrum <500m
Sonstige
Bank <500m
Geldautomat <500m
Post <500m
Polizei <500m
Verkehr
Bus <500m
Bahnhof <500m
Autobahnanschluss <1.500m
Angaben Entfernung Luftlinie / Quelle: OpenStreetMap
Objektdaten
Zustand
- Zustand
- ERSTBEZUG
- Baujahr
- 2025
- Alter
- NEUBAU
Kosten
- Gesamtmiete Brutto
- € 3.060,00
- Miete
- € 2.550,00
- Umsatzsteuer
- € 510,00
Verwaltung
- Verfügbar ab
- sofort
Hallen und Lager zum Mieten im Umkreis von Schwaz
Hallen und Lager zum Mieten im Umkreis von Schwaz
Hallen und Lager zum Mieten in Österreich
Andere Besucher suchen nach...
- Grundstücke kaufen in 3400 Weidlingbach
- Wohnungen kaufen in 4663 Laakirchen
- Häuser in 7471 Rechnitz
- Wohnungen in 2410 Hainburg an der Donau
- Häuser kaufen in 2432 Schwadorf
- Wohnungen kaufen in 3002 Purkersdorf
- Häuser in 3150 Wilhelmsburg
- Wohnungen kaufen in 3470 Engelmannsbrunn
- Grundstücke kaufen im Bezirk Mattersburg
- Grundstücke kaufen im Bezirk Gmunden