LogisticAREA Stadlhof - Flexible Neubau Gewerbeflächen in Wels
€ 21.439 / Monat
€ 10 / m²
4600 Wels
Beschreibung
NEUBAU GEWERBEFLÄCHEN IN WELS STADLHOF! In zentraler Lage in Wels entsteht auf einem Grundstück mit MB-Widmung mit der LogisticAREA Stadlhof ein neuer Gewerbepark, optimal für Logistiker! Direkt an der Welser Autobahn A25 gelegen profitieren Sie von kurzen Wegen und den Möglichkeiten, vor Baubeginn noch nach Ihren Vorstellungen mitzugestalten. Wichtigste Fakten der Lagerflächen: 3-fach stapelbar: 9,10 m Hallenhöhe bieten Raum für Ihre Waren und Güter! keine Vorschriften betreffend Mindestanzahl an Mitarbeitern: viel Lagerfläche kann von wenigen fleißigen Händen betrieben werden! Hallen sind beheizbar (Gasheizung mit Heißluftventilatoren) Sprinkleranlage Rampen und Rolltore zur Anlieferung ausreichend Park- und Rangierflächen Wichtigste Fakten der Büroflächen:...
NEUBAU GEWERBEFLÄCHEN IN WELS STADLHOF!
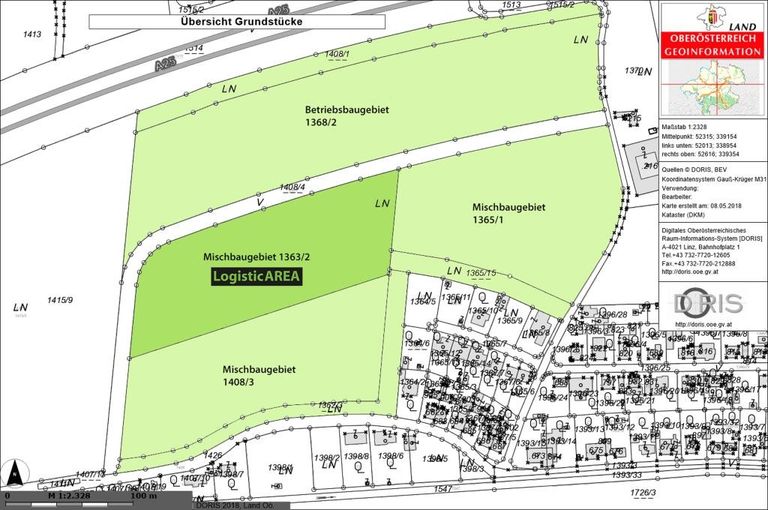
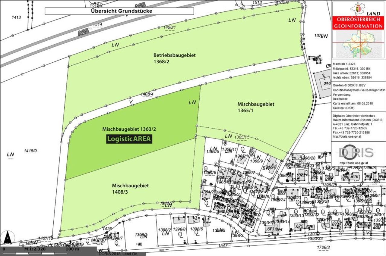
In zentraler Lage in Wels entsteht auf einem Grundstück mit MB-Widmung mit der LogisticAREA Stadlhof ein neuer Gewerbepark, optimal für Logistiker! Direkt an der Welser Autobahn A25 gelegen profitieren Sie von kurzen Wegen und den Möglichkeiten, vor Baubeginn noch nach Ihren Vorstellungen mitzugestalten.
Wichtigste Fakten der Lagerflächen:
3-fach stapelbar: 9,10 m Hallenhöhe bieten Raum für Ihre Waren und Güter!
keine Vorschriften betreffend Mindestanzahl an Mitarbeitern: viel Lagerfläche kann von wenigen fleißigen Händen betrieben werden!
Hallen sind beheizbar (Gasheizung mit Heißluftventilatoren)
Sprinkleranlage
Rampen und Rolltore zur Anlieferung
ausreichend Park- und Rangierflächen
Wichtigste Fakten der Büroflächen:
klimatisiert
CAT-6 Verkabelung
modernes Zutrittssystem
Gratisparkplätze
Gesamt stehen dem Nutzer bis zu 7.100 m² Lagerhallenfläche und 1.500 m² Bürofläche zur Verfügung, welche nach Vereinbarung auch teilbar sind.
Konditionen:
Lagerhalle:
Mietzins monatlich netto € 7/m²
BK Akonto monatlich netto € 1/m²
Büroflächen:
Mietzins monatlich netto € 8/m²
BK Akonto monatlich netto € 2/m²
Interesse? Bitte zögern Sie nicht, uns bei etwaigen Rückfragen oder zur Vereinbarung eines unverbindlichen Besichtigungs- bzw. Beratungstermines zu kontaktieren. Unser Team steht Ihnen gerne zur Verfügung!
PS: Zahlreiche weitere Immobilien finden Sie auf unserer Homepage unter www.projektas.at
Hinweis: Wir verarbeiten personenbezogene Daten zu geschäftlichen Zwecken. Nähere Informationen finden Sie unter www.projektas.at
In zentraler Lage in Wels entsteht auf einem Grundstück mit MB-Widmung mit der LogisticAREA Stadlhof ein neuer Gewerbepark, optimal für Logistiker! Direkt an der Welser Autobahn A25 gelegen profitieren Sie von kurzen Wegen und den Möglichkeiten, vor Baubeginn noch nach Ihren Vorstellungen mitzugestalten.
Wichtigste Fakten der Lagerflächen:
3-fach stapelbar: 9,10 m Hallenhöhe bieten Raum für Ihre Waren und Güter!
keine Vorschriften betreffend Mindestanzahl an Mitarbeitern: viel Lagerfläche kann von wenigen fleißigen Händen betrieben werden!
Hallen sind beheizbar (Gasheizung mit Heißluftventilatoren)
Sprinkleranlage
Rampen und Rolltore zur Anlieferung
ausreichend Park- und Rangierflächen
Wichtigste Fakten der Büroflächen:
klimatisiert
CAT-6 Verkabelung
modernes Zutrittssystem
Gratisparkplätze
Gesamt stehen dem Nutzer bis zu 7.100 m² Lagerhallenfläche und 1.500 m² Bürofläche zur Verfügung, welche nach Vereinbarung auch teilbar sind.
Konditionen:
Lagerhalle:
Mietzins monatlich netto € 7/m²
BK Akonto monatlich netto € 1/m²
Büroflächen:
Mietzins monatlich netto € 8/m²
BK Akonto monatlich netto € 2/m²
Interesse? Bitte zögern Sie nicht, uns bei etwaigen Rückfragen oder zur Vereinbarung eines unverbindlichen Besichtigungs- bzw. Beratungstermines zu kontaktieren. Unser Team steht Ihnen gerne zur Verfügung!
PS: Zahlreiche weitere Immobilien finden Sie auf unserer Homepage unter www.projektas.at
Hinweis: Wir verarbeiten personenbezogene Daten zu geschäftlichen Zwecken. Nähere Informationen finden Sie unter www.projektas.at
| Angaben gemäß gesetzlichem Erfordernis: | |||
| Miete | € | 15357,14 | zzgl 20% USt. |
| Betriebskosten | € | 2508,62 | zzgl 20% USt. |
| Umsatzsteuer | € | 3573,15 | |
| ------------------------------------------------------------------ | |||
| Gesamtbetrag | € | 21438,91 | |
| ------------------------------------------------------------------ | |||
| Heizwärmebedarf: | 51.0 kWh/(m²a) | ||
| Klasse Heizwärmebedarf: | C | ||
Objektdaten
Ausstattung
- Räume veränderbar
- Klimatisiert
- DV Verkabelung
- Rampe
- Hebebühne
- Teeküche
- Personen Fahrstuhl
- Sonstiges
- Rampe
- Räume veränderbar
- Stadtrand
- Ladezone
- Rampe
- Rolltor
- Räume veränderbar
- Rampe
- Räume veränderbar
Dokumente / Links
Zustand
- Alter
- NEUBAU
Flächen
- Lagerfläche
- 1.774m²
- Bürofläche
- 367m²
- Nutzfläche
- 2.141m²
Kosten
- Kaltmiete
- € 21.438,91
- Nebenkosten
- € 3.010,34
- Kaution
- € 65.000,00
- Betriebskosten Brutto
- € 3.010,34
Verwaltung
- Verfügbar ab
- nach Vereinbarung
Hallen und Lager zum Mieten in Österreich
Hallen und Lager zum Mieten in Österreich
Hallen und Lager zum Mieten in Österreich
Andere Besucher suchen nach...
- Grundstücke kaufen in 3400 Weidlingbach
- Wohnungen kaufen in 4663 Laakirchen
- Häuser in 7471 Rechnitz
- Wohnungen in 2410 Hainburg an der Donau
- Häuser kaufen in 2432 Schwadorf
- Wohnungen kaufen in 3002 Purkersdorf
- Häuser in 3150 Wilhelmsburg
- Wohnungen kaufen in 3470 Engelmannsbrunn
- Grundstücke kaufen im Bezirk Mattersburg
- Grundstücke kaufen im Bezirk Gmunden