300 m² - hier ist alles möglich, Büro, Ordination, Wohnraum, Showroom, Werkstatt, Outlet, Kreativstudio...
-
Vertrag
Beschreibung
VIEL PLATZ FÜR KREATIVES SCHAFFEN IM KALVARIENBERGVIERTEL
Willkommen im Herzen von Wien, wo sich diese vielseitige Gewerbefläche mit ca. 300 m² in der urbanen Gegend des 17. Bezirks befindet. Diese Flächen bieten Ihnen die perfekte Grundlage, um Ihr geschäftliches Vorhaben in die Realität umzusetzen. Mit einer monatlichen Nettomiete von 1.920,- eröffnet sich Ihnen die Möglichkeit, sich in eine gestaltbare Immobilie einzumieten.
Die großzügige Fläche ist ideal für kreative Geschäftsideen, sei es als Büro, Atelier oder Verkaufsraum. Lassen Sie sich von der Nähe zum Gürtel inspirieren arbeiten und gestalten. Die über eine belagsfertige Ausstattung hinausgehende Ausstattung, bietet ihnen eine solide...
VIEL PLATZ FÜR KREATIVES SCHAFFEN IM KALVARIENBERGVIERTEL
Willkommen im Herzen von Wien, wo sich diese vielseitige Gewerbefläche mit ca. 300 m² in der urbanen Gegend des 17. Bezirks befindet.
Diese Flächen bieten Ihnen die perfekte Grundlage, um Ihr geschäftliches Vorhaben in die Realität umzusetzen. Mit einer monatlichen Nettomiete von 1.920,- eröffnet sich Ihnen die Möglichkeit, sich in eine gestaltbare Immobilie einzumieten.
Die großzügige Fläche ist ideal für kreative Geschäftsideen, sei es als Büro, Atelier oder Verkaufsraum. Lassen Sie sich von der Nähe zum Gürtel inspirieren arbeiten und gestalten.
Die über eine belagsfertige Ausstattung hinausgehende Ausstattung, bietet ihnen eine solide Ausgangsbasis für Ihre Wünsche. Natürlich sind Sozialräume ausreichend vorhanden.
Die Lage dieser Immobilie ist ein weiteres Highlight. Die ausgezeichnete Verkehrsanbindung mit Bus, U-Bahn und Straßenbahn sowie der Bahnhof in unmittelbarer Nähe machen Ihre Gewerbefläche für Kunden und Mitarbeiter gleichermaßen gut erreichbar.
Zusätzlich kann im Innenhof ein Autoabstellplatz angemietet werden: €105.- plus 20% USt
Nutzen Sie die Chance, sich in einem dynamischen Viertel von Wien niederzulassen, das sowohl durch seine Infrastruktur als auch durch seine lebendige Atmosphäre überzeugt. Lassen Sie Ihrer Kreativität freien Lauf und gestalten Sie diese Fläche ganz nach Ihren Vorstellungen. Vereinbaren Sie noch heute einen Besichtigungstermin und entdecken Sie das Potenzial, das diese Immobilie für Ihr Unternehmen bereithält. Wir freuen uns darauf, Sie auf Ihrem Weg in Ihre neuen Räume zu begleiten!
Hinweis gemäß Energieausweisvorlagegesetz: Ein Energieausweis wurde vom Eigentümer bzw. Verkäufer, nach unserer Aufklärung über die generell geltende Vorlagepflicht, sowie Aufforderung zu seiner Erstellung noch nicht vorgelegt. Daher gilt zumindest eine dem Alter und der Art des Gebäudes entsprechende Gesamtenergieeffizienz als vereinbart. Wir übernehmen keinerlei Gewähr oder Haftung für die tatsächliche Energieeffizienz der angebotenen Immobilie.
Wir weisen darauf hin, dass zwischen dem Vermittler und dem zu vermittelnden Dritten ein familiäres oder wirtschaftliches Naheverhältnis besteht.
Der Vermittler ist als Doppelmakler tätig.
Infrastruktur / Entfernungen
Gesundheit
Arzt <250m
Apotheke <500m
Klinik <500m
Krankenhaus <1.000m
Kinder & Schulen
Schule <250m
Kindergarten <250m
Universität <1.500m
Höhere Schule <1.250m
Nahversorgung
Supermarkt <250m
Bäckerei <250m
Einkaufszentrum <500m
Sonstige
Geldautomat <250m
Bank <250m
Post <500m
Polizei <500m
Verkehr
Bus <250m
U-Bahn <750m
Straßenbahn <250m
Bahnhof <750m
Autobahnanschluss <3.500m
Angaben Entfernung Luftlinie / Quelle: OpenStreetMap
Objektdaten
Ausstattung
- Räume veränderbar
- Bad mit Dusche
- Bad mit Pissoir
- Fliesenboden
- Laminatboden
- Estrichboden
- Etage Heizung
- Befeuerung mit Gas
- Massiv Bauweise
Zustand
- Zustand
- TEIL_VOLLRENOVIERUNGSBED
- Baujahr
- 1880
- Alter
- ALTBAU
Flächen
- Anzahl der Badezimmer
- 1
- Anzahl der sep. WCs
- 3
- Nutzfläche
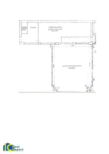
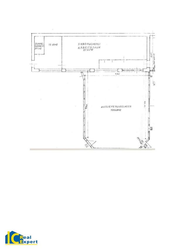
- 300m²
- Lagerfläche
- 86m²
- Bürofläche
- 100m²
- Kellerfläche
- 124m²
Kosten
- Gesamtmiete Brutto
- € 2.948,20
- Kaution
- € 12.000,00
- Miete
- € 1.900,00
- Betriebskosten
- € 556,83
- Umsatzsteuer
- € 491,37
Verwaltung
- Verfügbar ab
- Vertrag
Hallen und Lager zum Mieten in Österreich
- Bezirk Gemeindebezirk Favoriten
- Bezirk Gemeindebezirk Favoriten
- Bezirk Gemeindebezirk Favoriten
- Bezirk Gemeindebezirk Simmering
- Bezirk Gemeindebezirk Simmering
- Bezirk Gemeindebezirk Simmering
- Bezirk Gemeindebezirk Liesing
- Bezirk Gemeindebezirk Liesing
- Bezirk Gemeindebezirk Liesing
- Bezirk Gemeindebezirk Donaustadt
Hallen und Lager zum Mieten in Österreich
Hallen und Lager zum Mieten in Österreich
Andere Besucher suchen nach...
- Grundstücke kaufen in 3400 Weidlingbach
- Wohnungen kaufen in 4663 Laakirchen
- Häuser in 7471 Rechnitz
- Wohnungen in 2410 Hainburg an der Donau
- Häuser kaufen in 2432 Schwadorf
- Wohnungen kaufen in 3002 Purkersdorf
- Häuser in 3150 Wilhelmsburg
- Wohnungen kaufen in 3470 Engelmannsbrunn
- Grundstücke kaufen im Bezirk Mattersburg
- Grundstücke kaufen im Bezirk Gmunden