Produktion/Werkstatt/Lagerhalle beheizt
-
sofort
Beschreibung
Hallen
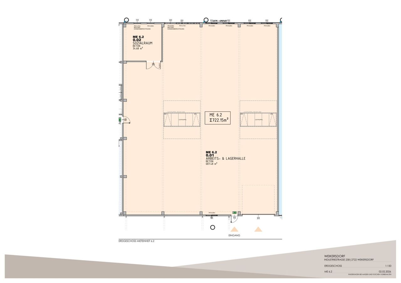
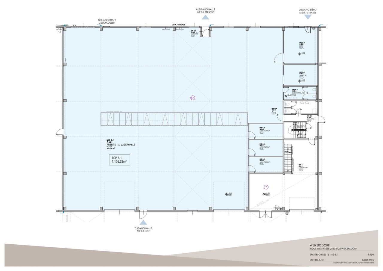
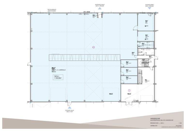
Beide Hallen sind beheizbar und befahrbar über Sektionaltore und als Produktion/Werkstätte nutzbar. WC, Personalraum, Küche Mitarbeiter und Kunden-Parkplätze Hochregallager Ausstattung auf Anfrage verfügbar Büros vor Ort anmietbar HWB 64 kWh/m² p.a. Bitte beachten Sie, dass die von uns angegebenen Preise exklusive USt sind. Nebenkosten bei Anmietung: Kaution 3 BMM Provision:3 BMM inkl. 20% USt 1% Vertragsvergebührung an das Finanzamt Kontakt: Für einen Besichtigungstermin oder nähere Informationen steht Ihnen Herr Augenhammer gerne jederzeit unter 0660 4678417 zur Verfügung. Bitte beachten Sie, dass wir aufgrund der Nachweispflicht gegenüber dem Eigentümer nur Anfragen mit vollständiger Bekanntgabe von Name, Adresse, Telefon und E-Mail...
Hallen
Beide Hallen sind beheizbar und befahrbar über Sektionaltore und als Produktion/Werkstätte nutzbar.
WC, Personalraum, Küche
Mitarbeiter und Kunden-Parkplätze
Hochregallager Ausstattung auf Anfrage verfügbar
Büros vor Ort anmietbar
HWB 64 kWh/m² p.a.
Bitte beachten Sie, dass die von uns angegebenen Preise exklusive USt sind.
Nebenkosten bei Anmietung:
Kaution 3 BMM
Provision:3 BMM inkl. 20% USt
1% Vertragsvergebührung an das Finanzamt
Kontakt:
Für einen Besichtigungstermin oder nähere Informationen steht Ihnen Herr Augenhammer gerne jederzeit unter 0660 4678417 zur Verfügung.
Bitte beachten Sie, dass wir aufgrund der Nachweispflicht gegenüber dem Eigentümer nur Anfragen mit vollständiger Bekanntgabe von Name, Adresse, Telefon und E-Mail bearbeiten können.
Es wird darauf hingewiesen, dass wir als Doppelmakler tätig sind, und dass zwischen dem Abgeber und uns ein wirtschaftliches Naheverhältnis besteht.Die Überwälzung der Vermieterprovision auf den Mieter nach §12 IMVO wird durch Abschluss des Mietvertrags vom Mieter akzeptiert.
Wir weisen darauf hin, dass zwischen dem Vermittler und dem zu vermittelnden Dritten ein familiäres oder wirtschaftliches Naheverhältnis besteht.
Der Vermittler ist als Doppelmakler tätig.
Infrastruktur / Entfernungen
Gesundheit
Arzt <3.100m
Apotheke <3.400m
Klinik <4.675m
Krankenhaus <5.500m
Kinder & Schulen
Schule <2.500m
Kindergarten <2.575m
Höhere Schule <5.175m
Universität <6.350m
Nahversorgung
Supermarkt <2.475m
Bäckerei <2.875m
Einkaufszentrum <3.350m
Sonstige
Bank <2.475m
Geldautomat <2.475m
Post <2.900m
Polizei <4.150m
Verkehr
Bus <850m
Autobahnanschluss <1.600m
Bahnhof <2.250m
Flughafen <4.825m
Angaben Entfernung Luftlinie / Quelle: OpenStreetMap
Objektdaten
Dokumente / Links
Zustand
- HWB
- 227.9 kWh/m² pro Jahr
- Klasse HWB
- F
- fGEE
- 1.41
- Klasse fGEE
- F
Flächen
- Nutzfläche
- 1.825m²
- Lagerfläche
- 1.825m²
Kosten
- Kaution
- € 33.600,00
- Miete
- € 9.200,00
- Betriebskosten
- € 2.000,00
Verwaltung
- Verfügbar ab
- sofort
- Mietdauer
- bis 5,0 Jahre
Hallen und Lager zum Mieten im Umkreis von Weikersdorf am Steinfelde
Hallen und Lager zum Mieten im Umkreis von Weikersdorf am Steinfelde
Hallen und Lager zum Mieten in Österreich
Andere Besucher suchen nach...
- Grundstücke kaufen in 3400 Weidlingbach
- Wohnungen kaufen in 4663 Laakirchen
- Häuser in 7471 Rechnitz
- Wohnungen in 2410 Hainburg an der Donau
- Häuser kaufen in 2432 Schwadorf
- Wohnungen kaufen in 3002 Purkersdorf
- Häuser in 3150 Wilhelmsburg
- Wohnungen kaufen in 3470 Engelmannsbrunn
- Grundstücke kaufen im Bezirk Mattersburg
- Grundstücke kaufen im Bezirk Gmunden