Einfamilienhaus in Mitterndorf: 4 Zimmer, Garage & mehr!
Beschreibung
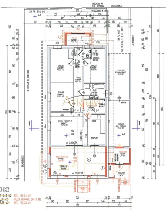
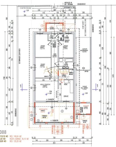
Auf einem 669 m² großen Grundstück in einer ruhigen Wohnsiedlung befindet sich ein Bungalow (BJ 2015) mit Pool, Garage und weiteren 3-4 Parkplätzen.
Das ca. 138 m² große Bungalow ist folgendermaßen aufgeteilt:
-Flur
-3 Zimmer
-Wohn-/Essküche Küche komplett ausgestattet
-Badezimmer
-Toilette
- Wintergarten
- Garage
Das Haus kann möbliert oder unmöbliert übergeben werden.
Ausstattung:
- Kunststofffenster
- Nassräume verfliest
- Beheizt bzw. gekühlt wird das Haus mit einer Luftwärmepumpe, ebenso wird das Warmwasser mit der Luftwärmepumpe produziert
- Photovoltaikanlage 20 kW - niedrige Energiekosten
Des Weiteren befindet sich im Wohnbereich ein Kamin, an dem Sie an...
Auf einem 669 m² großen Grundstück in einer ruhigen Wohnsiedlung befindet sich ein Bungalow (BJ 2015) mit Pool, Garage und weiteren 3-4 Parkplätzen.
Das ca. 138 m² große Bungalow ist folgendermaßen aufgeteilt:
-Flur
-3 Zimmer
-Wohn-/Essküche Küche komplett ausgestattet
-Badezimmer
-Toilette
- Wintergarten
- Garage
Das Haus kann möbliert oder unmöbliert übergeben werden.
Ausstattung:
- Kunststofffenster
- Nassräume verfliest
- Beheizt bzw. gekühlt wird das Haus mit einer Luftwärmepumpe, ebenso wird das Warmwasser mit der Luftwärmepumpe produziert
- Photovoltaikanlage 20 kW - niedrige Energiekosten
Des Weiteren befindet sich im Wohnbereich ein Kamin, an dem Sie an kalten Wintertagen die knisternde Wärme genießen können.
Das Haus ist am örtlichen Wasser- und Kanalnetz angeschlossen, ebenfalls befindet sich am Grundstück ein Brunnen mit dem der Garten gegossen werden kann.
Die Möglichkeit einer Aufstockung des Hauses ist ebenfalls gegeben.
Der Energieausweis wird momentan aktualisiert und nach Fertigstellung selbstverständlich zur Verfügung gestellt.
Für weitere Fragen und Details steht Ihnen Herr Djordjevic unter Tel. Nr.: +43660 5451310 gerne zur Verfügung, oder per Mail unter: bojan@atrium-real.at
BITTE BEACHTEN SIE, DASS WIR AUFGRUND DER NACHWEISPFLICHT GEGENÜBER DEM EIGENTÜMER NUR ANFRAGEN MIT VOLLSTÄNDIGER ANGABE DER KONTAKTDATEN BEARBEITEN KÖNNEN.
Noch nichts gefunden? Wir informieren Sie über geeignete Immobilienangebote noch vor allen anderen.
Legen Sie jetzt Ihren individuellen Suchagenten unter folgendem Link an. Wir schicken Ihnen passende Immobilien exklusiv vorab zu.
Suchagent anlegen - https://atrium-global-investment.service.immo/registrieren/de
Wir weisen darauf hin, dass zwischen dem Vermittler und dem zu vermittelnden Dritten ein familiäres oder wirtschaftliches Naheverhältnis besteht.
Der Vermittler ist als Doppelmakler tätig.
Infrastruktur / Entfernungen
Gesundheit
Arzt <1.000m
Apotheke <3.500m
Kinder & Schulen
Kindergarten <3.000m
Schule <3.000m
Nahversorgung
Supermarkt <1.000m
Bäckerei <3.000m
Einkaufszentrum <9.000m
Sonstige
Bank <3.500m
Geldautomat <4.000m
Post <1.000m
Polizei <3.500m
Verkehr
Bus <500m
Bahnhof <4.000m
Autobahnanschluss <7.500m
Angaben Entfernung Luftlinie / Quelle: OpenStreetMap
Objektdaten
Ausstattung
- Kamin
- Vollmöbliert
- Bad mit Dusche
- Bad mit Fenster
- Offene Küche
- Fliesenboden
- Laminatboden
- Zentralheizung
- Fußbodenheizung
- Solar
- Luftwärmepumpe
- Befeuerung mit Holz
Zustand
- Zustand
- GEPFLEGT
- Baujahr
- 2015
- Alter
- NEUBAU
- HWB
- 40.7 kWh/m² pro Jahr
- Klasse HWB
- B
- fGEE
- 0.72
- Klasse fGEE
- A
Flächen
- Anzahl der Zimmer
- 4
- Anzahl der Badezimmer
- 1
- Anzahl der sep. WCs
- 1
- Anzahl der Logia
- 1
- Stellplätze
- 4
- Wohnfläche
- 85m²
- Nutzfläche
- 138m²
- Grundstücksfläche
- 669m²
- Gartenfläche
- 500m²
Kosten
- Kaufpreis Brutto
- € 395.000,00
Häuser zum Kaufen im Umkreis von Mitterndorf an der Fischa
Häuser zum Kaufen im Umkreis von Mitterndorf an der Fischa
Häuser zum Kaufen in Österreich
Andere Besucher suchen nach...
- Grundstücke kaufen in 3400 Weidlingbach
- Wohnungen kaufen in 4663 Laakirchen
- Häuser in 7471 Rechnitz
- Wohnungen in 2410 Hainburg an der Donau
- Häuser kaufen in 2432 Schwadorf
- Wohnungen kaufen in 3002 Purkersdorf
- Häuser in 3150 Wilhelmsburg
- Wohnungen kaufen in 3470 Engelmannsbrunn
- Grundstücke kaufen im Bezirk Mattersburg
- Grundstücke kaufen im Bezirk Gmunden