Familienfreundliches Sanierungsobjekt in attraktiver und ruhiger Lage in Baden!
Beschreibung
Zum Verkauf gelangt ein gepflegtes Einfamilienhaus mit ca. 181 m2 Nutzfläche auf einem großzügigen 649 m² Grundstück.
Dieses Objekt bietet eine seltene Gelegenheit in hervorragender Lage von Baden (2500).
Es handelt sich um ein bestehendes Einfamilienhaus, bei dem bereits ein wesentlicher Teil der Vorarbeiten durchgeführt wurde:
✔ Kompletter Abbruch im Innenbereich erledigt ✔ Entrümpelung vollständig abgeschlossen ✔ Schutt entsorgt – sauber vorbereitet ✔ Startklar für Sanierung und Ausbau
👉 Sie übernehmen hier kein Problemobjekt – sondern eine bereits vorbereitete Basis.
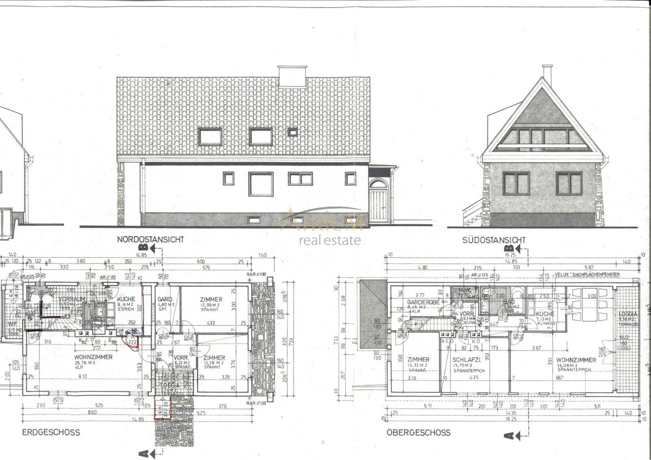
Raumaufteilung
Erdgeschoss:
-
Eingangsbereich mit Abstellraum
-
Offener Wohnbereich mit Küche uns Essbereich
-
Zwei Zimmer...
Zum Verkauf gelangt ein gepflegtes Einfamilienhaus mit ca. 181 m2 Nutzfläche auf einem großzügigen 649 m² Grundstück.
Dieses Objekt bietet eine seltene Gelegenheit in hervorragender Lage von Baden (2500).
Es handelt sich um ein bestehendes Einfamilienhaus, bei dem bereits ein wesentlicher Teil der Vorarbeiten durchgeführt wurde:
✔ Kompletter Abbruch im Innenbereich erledigt
✔ Entrümpelung vollständig abgeschlossen
✔ Schutt entsorgt – sauber vorbereitet
✔ Startklar für Sanierung und Ausbau
👉 Sie übernehmen hier kein Problemobjekt – sondern eine bereits vorbereitete Basis.
Raumaufteilung
Erdgeschoss:
Eingangsbereich mit Abstellraum
Offener Wohnbereich mit Küche uns Essbereich
Zwei Zimmer
Garderobe
Badezimmer mit Dusche
Wc
Obergeschoss:
Zentrales Vorzimmer mit Zugang zu allen Räumen
Offener Wohnbereich mit Küche uns Essbereich
Zwei Schlafzimmer
Garderobe
Badezimmer mit Badewanne
Wc
Keller:
Keller
Waschküche
Garage
Außenbereich
Zwei Loggia
Gartenhütte
Gepflegter Garten mit Altbaumbestand
Carport
Technik
Gas
Zentralheizung
Kontakt & Besichtigung:
Für weitere Informationen oder zur Vereinbarung eines Besichtigungstermins steht Ihnen Herr Stanisljevic gerne zur Verfügung. Tel. Nr.: +43 699 1165 0314
E-Mail: office@atriumglobal-investment.at
Noch nichts gefunden? Wir informieren Sie über geeignete Immobilienangebote noch vor allen anderen.
Legen Sie jetzt Ihren individuellen Suchagenten unter folgendem Link an. Wir schicken Ihnen passende Immobilien exklusiv vorab zu.
Suchagent anlegen - https://atrium-global-investment.service.immo/registrieren/de
Hinweis gemäß Energieausweisvorlagegesetz: Ein Energieausweis wurde vom Eigentümer bzw. Verkäufer, nach unserer Aufklärung über die generell geltende Vorlagepflicht, sowie Aufforderung zu seiner Erstellung noch nicht vorgelegt. Daher gilt zumindest eine dem Alter und der Art des Gebäudes entsprechende Gesamtenergieeffizienz als vereinbart. Wir übernehmen keinerlei Gewähr oder Haftung für die tatsächliche Energieeffizienz der angebotenen Immobilie.
Wir weisen darauf hin, dass zwischen dem Vermittler und dem zu vermittelnden Dritten ein familiäres oder wirtschaftliches Naheverhältnis besteht.
Der Vermittler ist als Doppelmakler tätig.
Infrastruktur / Entfernungen
Gesundheit
Arzt <1.000m
Apotheke <1.000m
Klinik <1.000m
Krankenhaus <2.500m
Kinder & Schulen
Schule <500m
Kindergarten <500m
Höhere Schule <9.500m
Universität <9.500m
Nahversorgung
Supermarkt <500m
Bäckerei <1.000m
Einkaufszentrum <6.500m
Sonstige
Bank <500m
Geldautomat <500m
Post <500m
Polizei <1.500m
Verkehr
Bus <500m
Bahnhof <1.500m
Autobahnanschluss <3.500m
Straßenbahn <1.500m
Flughafen <5.000m
Angaben Entfernung Luftlinie / Quelle: OpenStreetMap
Objektdaten
Ausstattung
- Wasch-/Trockenraum
- Zentralheizung
- Ausrichtung Balkon/Terrasse - Südost
- Mansarddach
- Massiv Bauweise
Flächen
- Anzahl der Zimmer
- 6
- Anzahl der Badezimmer
- 2
- Anzahl der sep. WCs
- 2
- Anzahl der Logia
- 2
- Stellplätze
- 2
- Wohnfläche
- 119m²
- Nutzfläche
- 181m²
- Grundstücksfläche
- 649m²
- Gartenfläche
- 435m²
- Kellerfläche
- 19m²
Kosten
- Kaufpreis Brutto
- € 699.000,00
- Betriebskosten
- € 135,00
Häuser zum Kaufen im Umkreis von Baden
Häuser zum Kaufen im Umkreis von Baden
Häuser zum Kaufen in Österreich
Andere Besucher suchen nach...
- Grundstücke kaufen in 3400 Weidlingbach
- Wohnungen kaufen in 4663 Laakirchen
- Häuser in 7471 Rechnitz
- Wohnungen in 2410 Hainburg an der Donau
- Häuser kaufen in 2432 Schwadorf
- Wohnungen kaufen in 3002 Purkersdorf
- Häuser in 3150 Wilhelmsburg
- Wohnungen kaufen in 3470 Engelmannsbrunn
- Grundstücke kaufen im Bezirk Mattersburg
- Grundstücke kaufen im Bezirk Gmunden