Schnäppchen! Sanierungsbedürftiges Haus mit ausbaufähigem Rohdachboden in Bad Vöslau!
-
sofort
Beschreibung
Charmantes Eckhaus mit großem Ausbaupotenzial – Rohdachboden & vielseitigem Untergeschoss
Dieses Haus aus dem Jahr 1920 befindet sich auf einem Eckgrundstück und bietet viel Raum für individuelle Gestaltungsideen. Mit Erdgeschoss, Untergeschoss sowie einem ca. 77 m² großen, ausbaufähigen Rohdachboden eröffnet die Liegenschaft zahlreiche Möglichkeiten für Eigennutzer oder Investoren.
Wohnnutzfläche: 153,73 m²
Der Garten (40m²) überzeugt durch seine praktische Gestaltung und verfügt über drei separate Zugänge: direkt vom Haus, von der Straße sowie von den Parkplätzen – ideal für flexible Nutzung.
Erdgeschoss (ca. 77 m²):
-
Vorraum
-
Wohnküche (ca. 20 m²)
-
Schlafzimmer (ca. 24 m²)
...
Charmantes Eckhaus mit großem Ausbaupotenzial – Rohdachboden & vielseitigem Untergeschoss
Dieses Haus aus dem Jahr 1920 befindet sich auf einem Eckgrundstück und bietet viel Raum für individuelle Gestaltungsideen. Mit Erdgeschoss, Untergeschoss sowie einem ca. 77 m² großen, ausbaufähigen Rohdachboden eröffnet die Liegenschaft zahlreiche Möglichkeiten für Eigennutzer oder Investoren.
Wohnnutzfläche: 153,73 m²
Der Garten (40m²) überzeugt durch seine praktische Gestaltung und verfügt über drei separate Zugänge: direkt vom Haus, von der Straße sowie von den Parkplätzen – ideal für flexible Nutzung.
Erdgeschoss (ca. 77 m²):
Vorraum
Wohnküche (ca. 20 m²)
Schlafzimmer (ca. 24 m²)
Weiteres Zimmer (ca. 9 m²)
Badezimmer mit Badewanne
Separates WC
Abstellraum mit Zugang zum Untergeschoss und Dachboden
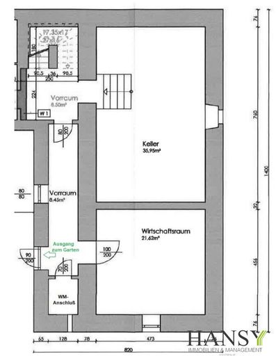
Untergeschoss (ca. 76 m²):
Der Gang sowie ein Raum mit ca. 21 m² sind beheizt und belichtet. Das Untergeschoss eignet sich besonders als Fitnessraum, Hobbyraum, Werkstatt oder Lagerfläche.
Dachboden:
Ca. 77 m² großer Rohdachboden mit attraktivem Ausbaupotenzial
Zustand:
Das Haus ist sanierungsbedürftig, bietet dafür jedoch eine solide Basis und viel Entwicklungsspielraum.
Heizung:
Gasetagenheizung
Diese Liegenschaft vereint Charakter, großzügige Flächen und Ausbaureserven in guter Lage – ideal für alle, die ein Haus nach eigenen Vorstellungen gestalten möchten.
Zögern Sie nicht länger und rufen Sie mich gleich an. Ich freue mich auf Ihren Anruf!
Infrastruktur / Entfernungen
Gesundheit
Arzt <500m
Apotheke <500m
Klinik <5.000m
Krankenhaus <5.500m
Kinder & Schulen
Kindergarten <1.000m
Schule <500m
Nahversorgung
Supermarkt <1.000m
Bäckerei <500m
Einkaufszentrum <4.000m
Sonstige
Bank <1.000m
Geldautomat <1.000m
Post <500m
Polizei <500m
Verkehr
Bus <500m
Bahnhof <2.000m
Autobahnanschluss <2.000m
Straßenbahn <5.500m
Flughafen <4.000m
Angaben Entfernung Luftlinie / Quelle: OpenStreetMap
Objektdaten
Ausstattung
- Kabel/SAT-TV
- Barrierefrei
- Bad mit Dusche
- Bad mit Badewanne
- Einbauküche
- Fliesenboden
- Fertigparkettboden
- Etage Heizung
- Befeuerung mit Gas
- Ausrichtung Balkon/Terrasse - Südost
- Satteldach
- Ausbauhaus
Zustand
- Zustand
- SANIERUNGSBEDUERFTIG
- Baujahr
- 1920
- Alter
- ALTBAU
- HWB
- 327 kWh/m² pro Jahr
- Klasse HWB
- G
- fGEE
- 3.32
- Klasse fGEE
- F
Flächen
- Anzahl der Zimmer
- 3
- Anzahl der Badezimmer
- 1
- Anzahl der sep. WCs
- 2
- Stellplätze
- 2
- Wohnfläche
- 88m²
- Nutzfläche
- 144m²
- Grundstücksfläche
- 270m²
- Gartenfläche
- 40m²
- Kellerfläche
- 58m²
Kosten
- Kaufpreis Brutto
- € 200.000,00
Verwaltung
- Verfügbar ab
- sofort
Häuser zum Kaufen im Umkreis von Bad Vöslau
Häuser zum Kaufen im Umkreis von Bad Vöslau
Häuser zum Kaufen in Österreich
Andere Besucher suchen nach...
- Grundstücke kaufen in 3400 Weidlingbach
- Wohnungen kaufen in 4663 Laakirchen
- Häuser in 7471 Rechnitz
- Wohnungen in 2410 Hainburg an der Donau
- Häuser kaufen in 2432 Schwadorf
- Wohnungen kaufen in 3002 Purkersdorf
- Häuser in 3150 Wilhelmsburg
- Wohnungen kaufen in 3470 Engelmannsbrunn
- Grundstücke kaufen im Bezirk Mattersburg
- Grundstücke kaufen im Bezirk Gmunden