Moderne Doppelhaushälfte in Kottingbrunn: Ihr Erstbezug mit Garten und Terrasse in ruhiger Lage - hochwertige Bauweise und nachhaltige Energieversorgung
-
Erstbezug
-
2026
-
Sommer 2026
Beschreibung
Willkommen in Ihrem neuen Zuhause in der idyllischen Doppelhaushälfte in 2542 Kottingbrunn, Niederösterreich! Diese moderne Immobilie bietet Ihnen nicht nur ein komfortables Wohnerlebnis, sondern auch die Möglichkeit, in einer der begehrtesten Lagen der Region zu leben.
Mit einem Kaufpreis von 498.000,00 € (belagsfertig) erwartet Sie ein großzügiger Wohnraum von 124,54 m², der frisch für Sie errichtet wurde. Diese Doppelhaushälfte im Erstbezug vereint zeitgemäße Architektur mit funktionalen Details und bietet Ihnen alles, was das Herz begehrt.
Schlüsselfertig Euro 559.000,00 €
-Massivbauweise mit Wienerbergerziegeln
-Kunststoff Alu Fenster von Internorm
-Elektrische Rolläden bzw. Raffstore Beschattung
-Hebeschiebetüre vom Wohnzimmer auf die Terrasse
...Willkommen in Ihrem neuen Zuhause in der idyllischen Doppelhaushälfte in 2542 Kottingbrunn, Niederösterreich! Diese moderne Immobilie bietet Ihnen nicht nur ein komfortables Wohnerlebnis, sondern auch die Möglichkeit, in einer der begehrtesten Lagen der Region zu leben.
Mit einem Kaufpreis von 498.000,00 € (belagsfertig) erwartet Sie ein großzügiger Wohnraum von 124,54 m², der frisch für Sie errichtet wurde. Diese Doppelhaushälfte im Erstbezug vereint zeitgemäße Architektur mit funktionalen Details und bietet Ihnen alles, was das Herz begehrt.
Schlüsselfertig Euro 559.000,00 €
-Massivbauweise mit Wienerbergerziegeln
-Kunststoff Alu Fenster von Internorm
-Elektrische Rolläden bzw. Raffstore Beschattung
-Hebeschiebetüre vom Wohnzimmer auf die Terrasse
-Luft-Wasser-Wärmepumpe
-Fußbodenheizung in allen Räumen, einzeln regelbar
-Hochwertigste Haustüre mit Sicherheitsverriegelung
-Vorbereitung für Photovoltaikanlage
-Doppelte Schallschutz-Ziegelwände
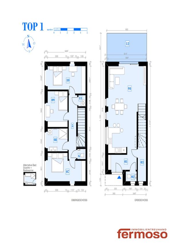
Die ansprechende Raumaufteilung umfasst vier lichtdurchflutete Zimmer, die Ihnen vielfältige Nutzungsmöglichkeiten bieten – ob als Schlafzimmer, Arbeitszimmer oder Hobbyraum. Der offene Wohnbereich lädt zum Verweilen ein und bietet einen direkten Zugang zur sonnigen Terrasse, wo Sie entspannte Stunden im Freien verbringen können. Der angrenzende Garten ist ideal für Familien, Gartenliebhaber oder einfach für entspannte Nachmittage im Grünen – hier genießen Sie den herrlichen Grünblick und die natürliche Umgebung, die die Ruhe und Gelassenheit des Landlebens widerspiegelt.
Die hochwertige Ausstattung lässt keine Wünsche offen: Fliesen und Parkett verleihen den Räumen einen eleganten Charme, während die Fußbodenheizung für eine angenehme Wärme sorgt. Das Bad mit Fenster ist nicht nur funktional, sondern auch ein Ort der Erholung.
Die Doppelhaushälfte punktet zudem mit zwei WCs, was den Alltag für Familien oder Gäste besonders komfortabel gestaltet. Mit zwei Stellplätzen direkt vor der Tür ist auch das Parken kein Problem – ein echter Pluspunkt in der heutigen Zeit!
Ein weiteres Highlight dieser Immobilie ist die umweltfreundliche Luftwärmepumpe, die für eine effiziente Energienutzung sorgt und Ihnen dabei hilft, die Betriebskosten niedrig zu halten. Sie profitieren somit nicht nur von einem modernen Wohnstandard, sondern leisten auch einen Beitrag zum Klimaschutz.
Die Lage spricht für sich: Kottingbrunn verbindet ländlichen Charme mit modernem Lebensstil. Dank der ausgezeichneten Verkehrsanbindung sind Sie schnell in der Stadt, während Sie gleichzeitig die Vorzüge eines ruhigen Wohngegenden genießen. Die Nähe zu einem Supermarkt sorgt dafür, dass Sie alle täglichen Besorgungen bequem und schnell erledigen können.
Zögern Sie nicht und lassen Sie sich diese einmalige Gelegenheit nicht entgehen! Diese Doppelhaushälfte in Kottingbrunn ist der perfekte Ort, um Ihre Wohnträume zu verwirklichen. Vereinbaren Sie noch heute einen Besichtigungstermin und erleben Sie selbst, wie Ihr neues Zuhause aussieht!
Noch nichts gefunden? Wir informieren Sie über geeignete Immobilienangebote noch vor allen anderen.
Legen Sie jetzt Ihren individuellen Suchagenten unter folgendem Link an. Wir schicken Ihnen passende Immobilien exklusiv vorab zu.
Suchagent anlegen - https://fermoso-immobilientreuhand.service.immo/registrieren/de
Wir weisen darauf hin, dass zwischen dem Vermittler und dem zu vermittelnden Dritten ein familiäres oder wirtschaftliches Naheverhältnis besteht.
Der Vermittler ist als Doppelmakler tätig.
Infrastruktur / Entfernungen
Gesundheit
Arzt <2.000m
Apotheke <2.000m
Klinik <4.000m
Krankenhaus <4.500m
Kinder & Schulen
Kindergarten <1.500m
Schule <2.000m
Nahversorgung
Supermarkt <500m
Bäckerei <2.000m
Einkaufszentrum <4.500m
Sonstige
Bank <2.000m
Geldautomat <2.000m
Post <2.000m
Polizei <2.500m
Verkehr
Bus <500m
Bahnhof <1.500m
Autobahnanschluss <1.000m
Straßenbahn <4.000m
Flughafen <1.500m
Angaben Entfernung Luftlinie / Quelle: OpenStreetMap
Objektdaten
Ausstattung
- Klimatisiert
- Gartennutzung
- Gäste-WC
- Bad mit Fenster
- Fliesenboden
- Parkettboden
- Fußbodenheizung
- Luftwärmepumpe
- Flachdach
- Schlüsselfertig mit Bodenplatte
- Neubaustandard
Dokumente / Links
Zustand
- Zustand
- ERSTBEZUG
- Baujahr
- 2026
- Alter
- NEUBAU
- HWB
- 28.3 kWh/m² pro Jahr
- Klasse HWB
- A++
- fGEE
- 45.8
- Klasse fGEE
- A++
Flächen
- Anzahl der Zimmer
- 4
- Anzahl der sep. WCs
- 2
- Anzahl der Terrassen
- 1
- Stellplätze
- 2
- Wohnfläche
- 125m²
- Grundstücksfläche
- 266m²
- Gartenfläche
- 106m²
- Terrassenfläche
- 1m²
Kosten
- Kaufpreis Brutto
- € 498.000,00
Verwaltung
- Verfügbar ab
- Sommer 2026
Häuser zum Kaufen im Umkreis von Kottingbrunn
Häuser zum Kaufen im Umkreis von Kottingbrunn
Häuser zum Kaufen in Österreich
Andere Besucher suchen nach...
- Grundstücke kaufen in 3400 Weidlingbach
- Wohnungen kaufen in 4663 Laakirchen
- Häuser in 7471 Rechnitz
- Wohnungen in 2410 Hainburg an der Donau
- Häuser kaufen in 2432 Schwadorf
- Wohnungen kaufen in 3002 Purkersdorf
- Häuser in 3150 Wilhelmsburg
- Wohnungen kaufen in 3470 Engelmannsbrunn
- Grundstücke kaufen im Bezirk Mattersburg
- Grundstücke kaufen im Bezirk Gmunden