Moderne und großzügige Doppelhaushälfte
-
Erstbezug
-
an sofort
Beschreibung
Zum Verkauf steht eine hochwertige, belagsfertige Doppelhaushälfte in ruhiger Lage in Zwölfaxing. Das Haus überzeugt durch moderne Ausstattung, großzügige Raumhöhe (2,75m) und einen durchdachten Grundriss auf nur zwei Ebenen – ohne Dachschrägen!
Highlights im Überblick:
- 152 m² Wohnfläche auf zwei Etagen
- 355 m² Grundstücksfläche, davon 124 m² Garten
- 2 Stellplätze
- Hervorragende Raumhöhe von 2,75 m
- Vorbereitung für:
- Klimaanlage
- Photovoltaikanlage
- E-Ladestation
- Elektrische Rollläden
- Kaminanschluss im Wohnzimmer
- Fußbodenheizung mit Luftwärmepumpe
- Zentral-Warmwasser mit 200 l Boiler
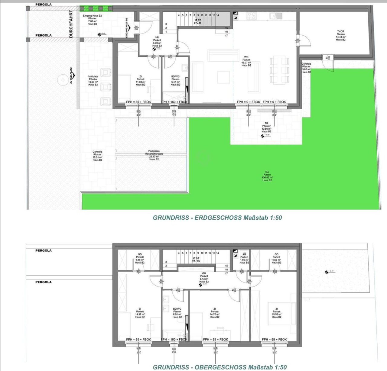
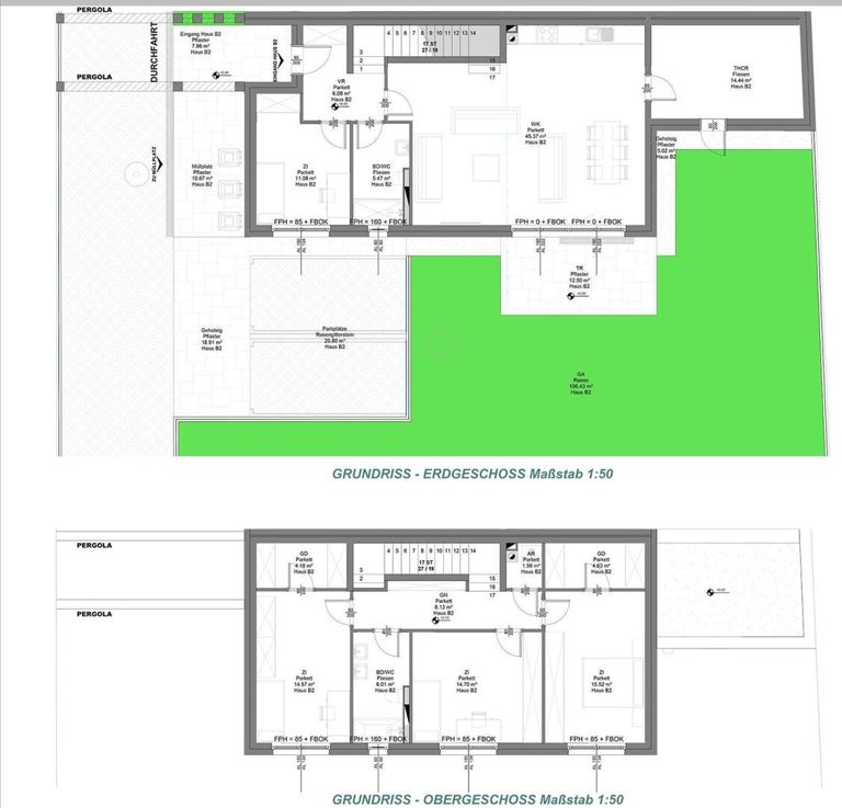
Raumaufteilung:
Erdgeschoss:
- Vorraum
- Badezimmer mit WC
- Großzügiger Wohn-/Ess-/Küchenbereich mit Zugang zur Terrasse und Garten
- Zimmer (ideal als Büro oder Gästezimmer)
- Abstellraum ...
Zum Verkauf steht eine hochwertige, belagsfertige Doppelhaushälfte in ruhiger Lage in Zwölfaxing. Das Haus überzeugt durch moderne Ausstattung, großzügige Raumhöhe (2,75m) und einen durchdachten Grundriss auf nur zwei Ebenen – ohne Dachschrägen!
Highlights im Überblick:
- 152 m² Wohnfläche auf zwei Etagen
- 355 m² Grundstücksfläche, davon 124 m² Garten
- 2 Stellplätze
- Hervorragende Raumhöhe von 2,75 m
- Vorbereitung für:
- Klimaanlage
- Photovoltaikanlage
- E-Ladestation
- Elektrische Rollläden
- Kaminanschluss im Wohnzimmer
- Fußbodenheizung mit Luftwärmepumpe
- Zentral-Warmwasser mit 200 l Boiler
Raumaufteilung:
Erdgeschoss:
- Vorraum
- Badezimmer mit WC
- Großzügiger Wohn-/Ess-/Küchenbereich mit Zugang zur Terrasse und Garten
- Zimmer (ideal als Büro oder Gästezimmer)
- Abstellraum
- Technikraum
Obergeschoss:
- 3 Schlafzimmer
- davon 2 mit begehbarem Schrank
- Großes Badezimmer mit WC
- Abstellraum
Abweichungen der angeführten Flächen möglich. Irrtum, Änderungen, Satz und Druckfehler vorbehalten.
Alle Wohneinheiten werden bezugsfertig übergeben, d.h. alle Sanitäranlagen, Fliesen und Parkettboden sind im Kaufpreis inkludiert. Eine detaillierte Bau- und Ausstattungsbeschreibung stellen wir Ihnen bei weiterem Interesse gerne zur Verfügung.
Kaufpreis: EUR 629.000, -- Belagsfertig
Schlüsselfertig ist das Haus innerhalb von 5 Wochen gegen einen Aufpreis von ÉUR 50.000,- verfügbar.
Nebenkosten:
- Grunderwerbssteuer: 3,50 % vom Kaufpreis
- Eintragungsgebühr: 1,10 % vom Kaufpreis
- Vertragserrichtungskosten und Treuhändlerhonorar: % des Kaufpreises zzgl. 20% USt. und Barauslagen
- Vermittlungsprovision: 3 % des Kaufpreises zzgl. 20% USt.
- Wir weisen ausdrücklich auf unser wirtschaftliches Naheverhältnis mit dem Verkäufer/in hin!
Obige Angaben basieren auf Informationen und Unterlagen des Eigentümers. Der guten Ordnung halber möchten wir festhalten, dass im Falle eines Abschlusses mit Ihnen oder einem von Ihnen namhaft gemachten Dritten unser Honorar (lt. Honorarverordnung für Immobilienmakler, BGBl. 262 und 297/1996) 3% des Verkaufspreises zzgl. der gesetzlichen Mwst. beträgt. Es gelten unsere allgemeinen Geschäftsbedingungen. Irrtum vorbehalten.
Wir weisen darauf hin, dass zwischen dem Vermittler und dem zu vermittelnden Dritten ein familiäres oder wirtschaftliches Naheverhältnis besteht.
Der Vermittler ist als Doppelmakler tätig.
Infrastruktur / Entfernungen
Gesundheit
Arzt <3.500m
Apotheke <2.500m
Klinik <4.000m
Krankenhaus <7.500m
Kinder & Schulen
Schule <500m
Kindergarten <2.000m
Universität <8.500m
Nahversorgung
Supermarkt <500m
Bäckerei <3.500m
Einkaufszentrum <4.000m
Sonstige
Bank <1.000m
Geldautomat <1.000m
Post <1.500m
Polizei <3.500m
Verkehr
Bus <500m
Straßenbahn <4.000m
U-Bahn <6.000m
Bahnhof <1.500m
Autobahnanschluss <2.500m
Flughafen <7.500m
Angaben Entfernung Luftlinie / Quelle: OpenStreetMap
Objektdaten
Ausstattung
- Offene Küche
- Fliesenboden
- Parkettboden
- Fußbodenheizung
- Luftwärmepumpe
- Ausrichtung Balkon/Terrasse - Südost
- Ausrichtung Balkon/Terrasse - Südwest
- Flachdach
- Massiv Bauweise
Zustand
- Zustand
- ERSTBEZUG
- Alter
- NEUBAU
- HWB
- 39.9 kWh/m² pro Jahr
- Klasse HWB
- B
- fGEE
- 0.75
- Klasse fGEE
- A
Flächen
- Anzahl der Zimmer
- 5
- Anzahl der Badezimmer
- 2
- Anzahl der sep. WCs
- 2
- Stellplätze
- 2
- Wohnfläche
- 159m²
- Gesamtfläche
- 262m²
- Grundstücksfläche
- 350m²
- Gartenfläche
- 63m²
Kosten
- Kaufpreis Brutto
- € 629.000,00
Verwaltung
- Verfügbar ab
- an sofort
Häuser zum Kaufen im Umkreis von Zwölfaxing
- Bezirk Gemeindebezirk Simmering
- Bezirk Gemeindebezirk Simmering
- Bezirk Gemeindebezirk Simmering
- Bezirk Gemeindebezirk Favoriten
- Bezirk Gemeindebezirk Favoriten
- Bezirk Gemeindebezirk Favoriten
- Bezirk Gemeindebezirk Meidling
- Bezirk Gemeindebezirk Meidling
- Bezirk Gemeindebezirk Meidling
- Bezirk Gemeindebezirk Liesing
Häuser zum Kaufen im Umkreis von Zwölfaxing
Häuser zum Kaufen in Österreich
Andere Besucher suchen nach...
- Grundstücke kaufen in 3400 Weidlingbach
- Wohnungen kaufen in 4663 Laakirchen
- Häuser in 7471 Rechnitz
- Wohnungen in 2410 Hainburg an der Donau
- Häuser kaufen in 2432 Schwadorf
- Wohnungen kaufen in 3002 Purkersdorf
- Häuser in 3150 Wilhelmsburg
- Wohnungen kaufen in 3470 Engelmannsbrunn
- Grundstücke kaufen im Bezirk Mattersburg
- Grundstücke kaufen im Bezirk Gmunden