*** Charmantes Einfamilienhaus in St. Marein mit sonnigem Garten und vielseitigem Gestaltungspotenzial ***
Beschreibung
Einfamilienhaus mit Potenzial in ruhiger Lage von St. Marein im Mürztal – Raum für Ihre Wohnideen
In einer besonders ruhigen und beliebten Wohnlage von St. Marein im Mürztal präsentiert sich dieses charmante Einfamilienhaus als seltene Gelegenheit für all jene, die Wohnen mit Gestaltungsspielraum und Zukunftsperspektive verbinden möchten. Auf einem großzügigen Grundstück von ca. 1.022 m² eröffnet sich Ihnen ein Zuhause, das sowohl durch seine Lage als auch durch sein Entwicklungspotenzial überzeugt.
Die Wohnfläche von ca. 153,26 m² bietet eine durchdachte Grundstruktur und gleichzeitig zahlreiche Möglichkeiten zur individuellen Anpassung und Modernisierung.
Raumaufteilung – viel Platz für Ihre Ideen
Im Erdgeschoss erwartet...
Einfamilienhaus mit Potenzial in ruhiger Lage von St. Marein im Mürztal – Raum für Ihre Wohnideen
In einer besonders ruhigen und beliebten Wohnlage von St. Marein im Mürztal präsentiert sich dieses charmante Einfamilienhaus als seltene Gelegenheit für all jene, die Wohnen mit Gestaltungsspielraum und Zukunftsperspektive verbinden möchten. Auf einem großzügigen Grundstück von ca. 1.022 m² eröffnet sich Ihnen ein Zuhause, das sowohl durch seine Lage als auch durch sein Entwicklungspotenzial überzeugt.
Die Wohnfläche von ca. 153,26 m² bietet eine durchdachte Grundstruktur und gleichzeitig zahlreiche Möglichkeiten zur individuellen Anpassung und Modernisierung.
Raumaufteilung – viel Platz für Ihre Ideen
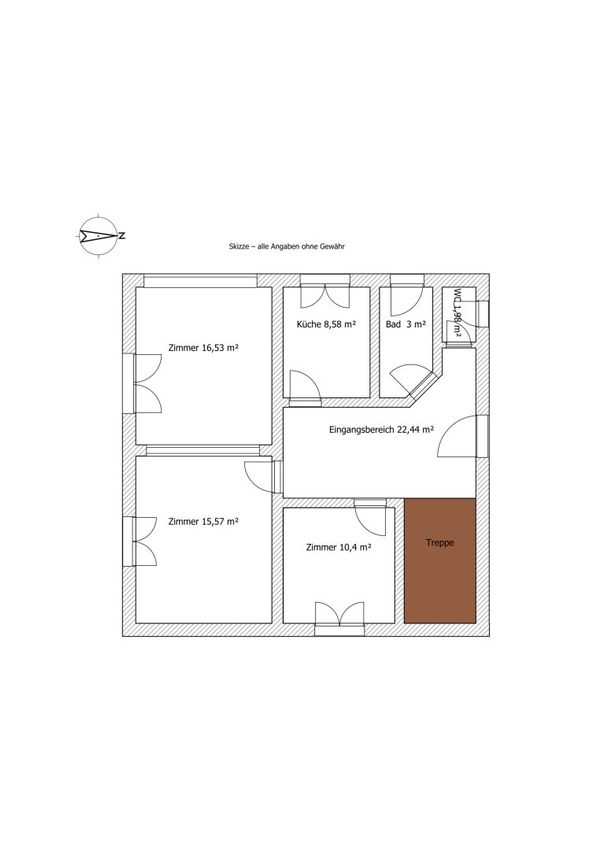
Im Erdgeschoss erwartet Sie ein klassischer, gut nutzbarer Grundriss mit:
- hellem Wohnzimmer
- Küche
- Schlafzimmer und zusätzlichem Zimmer
- Badezimmer mit Badewanne und Dusche
- separatem WC
- direktem Zugang zum Keller
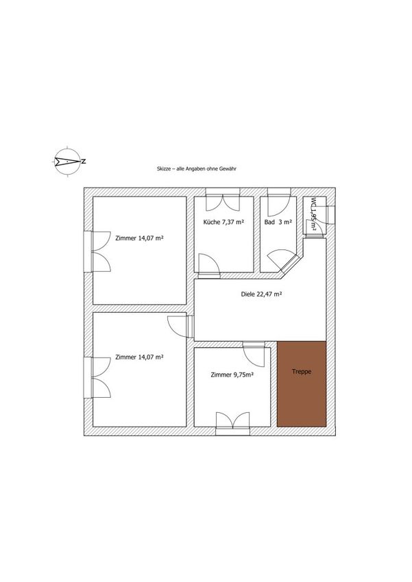
Das Obergeschoss bietet besonders viel Potenzial: Drei Zimmer sind bereits ausgebaut, weitere Räume können noch individuell fertiggestellt und nach Ihren Vorstellungen gestaltet werden – ideal für zusätzliche Schlafzimmer, Homeoffice, Bad oder eine separate Wohneinheit. Der große, helle Vorraum schafft dabei ein angenehmes Raumgefühl.
Der Keller ergänzt das Haus funktional mit Werkstatt, Waschküche, Heizraum, Erdkeller sowie direktem Zugang zur Garage. Hier zeigt sich zusätzliche Nutzfläche für Hobby, Lager oder handwerkliche Tätigkeiten. Es ist eine Feuchtigkeitsbildung im Keller vorhanden.
Außenbereich & Lagequalität
Der sonnige Garten bietet viel Platz für Erholung, Familie und Freizeitgestaltung. Die Terrasse erweitert den Wohnraum ins Freie und schafft einen idealen Ort für entspannte Stunden im Grünen.
Die Lage überzeugt durch ihre ruhige, grüne und gleichzeitig gut angebundene Umgebung. In wenigen Fahrminuten erreichen Sie Einkaufsmöglichkeiten, Schulen, Kinderbetreuung sowie medizinische Versorgung in der Region rund um Kapfenberg und Bruck an der Mur. Auch die Anbindung Richtung Graz ist durch das regionale Straßennetz sehr gut gewährleistet.
Besonderheiten
Dieses Haus richtet sich an Menschen mit Visionen: Ob Familien, handwerklich Begabte oder Käufer mit dem Wunsch nach individuellem Wohnraum – hier entsteht durch Modernisierung ein Zuhause mit Charakter und Wertentwicklungspotenzial.
Energie & Hinweise
Der Energieausweis befindet sich derzeit in Erstellung.
Die angegebene Wohnfläche basiert auf den vorliegenden Unterlagen. Alle Angaben ohne Gewähr.
Fazit
Ein Haus mit Substanz, viel Platz und außergewöhnlichem Entwicklungsspielraum in einer ruhigen, sehr gefragten Wohngegend. Hier haben Sie die seltene Möglichkeit, ein Bestandsobjekt nach Ihren eigenen Vorstellungen zu gestalten und langfristig Wert zu schaffen.
Der Vermittler ist als Doppelmakler tätig.
Infrastruktur / Entfernungen
Gesundheit
Arzt <500m
Apotheke <1.000m
Krankenhaus <2.000m
Kinder & Schulen
Schule <3.000m
Kindergarten <3.000m
Universität <3.500m
Nahversorgung
Supermarkt <500m
Bäckerei <2.000m
Einkaufszentrum <6.500m
Sonstige
Bank <1.000m
Geldautomat <1.000m
Post <1.500m
Polizei <5.500m
Verkehr
Bus <500m
Autobahnanschluss <1.500m
Bahnhof <1.000m
Flughafen <3.500m
Angaben Entfernung Luftlinie / Quelle: OpenStreetMap
Objektdaten
Ausstattung
- Räume veränderbar
- Kamin
- Bad mit Dusche
- Bad mit Badewanne
- Bad mit Fenster
- Fliesenboden
- Parkettboden
- Laminatboden
- Zentralheizung
- Massiv Bauweise
Zustand
- Baujahr
- 1961
Flächen
- Anzahl der Zimmer
- 6
- Anzahl der Badezimmer
- 1
- Anzahl der sep. WCs
- 1
- Anzahl der Terrassen
- 1
- Wohnfläche
- 153m²
- Nutzfläche
- 236m²
- Grundstücksfläche
- 1.022m²
- Terrassenfläche
- 1m²
Kosten
- Kaufpreis Brutto
- € 198.000,00
- Betriebskosten
- € 50,00
- Heizkosten
- € 100,00
Häuser zum Kaufen im Umkreis von Sankt Marein im Mürztal
Häuser zum Kaufen im Umkreis von Sankt Marein im Mürztal
Häuser zum Kaufen in Österreich
Andere Besucher suchen nach...
- Grundstücke kaufen in 3400 Weidlingbach
- Wohnungen kaufen in 4663 Laakirchen
- Häuser in 7471 Rechnitz
- Wohnungen in 2410 Hainburg an der Donau
- Häuser kaufen in 2432 Schwadorf
- Wohnungen kaufen in 3002 Purkersdorf
- Häuser in 3150 Wilhelmsburg
- Wohnungen kaufen in 3470 Engelmannsbrunn
- Grundstücke kaufen im Bezirk Mattersburg
- Grundstücke kaufen im Bezirk Gmunden