Architektenhaus BJ 2023 in nachhaltiger Premiumbauweise – Ruhe & Weitblick nahe Graz
-
2023
Beschreibung
Besichtigungen sind nach Vereinbarung kurzfristig möglich – wir freuen uns auf Ihre Anfrage.
Ein Architektenhaus, das nicht gebaut wurde, um zu beeindrucken – sondern um anzukommen.
Dieses außergewöhnliche Zuhause aus dem Jahr 2023 verbindet nachhaltige Bauweise, hochwertige Materialien und eine Architektur, die Ruhe, Licht und Raum spürbar macht.
Auf einem großzügigen Grundstück in ruhiger Lage von St. Josef / Blumegg entstand ein Haus für Menschen, die bewusst wohnen möchten – naturnah, hochwertig und dennoch hervorragend angebunden.
Hier lebt man nicht „irgendwo“, sondern angekommen – mit Blick ins Grüne, in einem Umfeld, das entschleunigt und gleichzeitig Nähe zur Stadt...
Besichtigungen sind nach Vereinbarung kurzfristig möglich – wir freuen uns auf Ihre Anfrage.
Ein Architektenhaus, das nicht gebaut wurde, um zu beeindrucken – sondern um anzukommen.
Dieses außergewöhnliche Zuhause aus dem Jahr 2023 verbindet nachhaltige Bauweise, hochwertige Materialien und eine Architektur, die Ruhe, Licht und Raum spürbar macht.
Auf einem großzügigen Grundstück in ruhiger Lage von St. Josef / Blumegg entstand ein Haus für Menschen, die bewusst wohnen möchten – naturnah, hochwertig und dennoch hervorragend angebunden.
Hier lebt man nicht „irgendwo“, sondern angekommen – mit Blick ins Grüne, in einem Umfeld, das entschleunigt und gleichzeitig Nähe zur Stadt bietet.
Architektur, die man fühlt – Bauweise mit Haltung
Die Kombination aus Ziegelmassivbau im Erdgeschoss und sichtbaren CLT-Massivholzwänden im Obergeschoss schafft ein außergewöhnlich angenehmes Raumklima.
Warm, ruhig, natürlich – spürbar vom ersten Moment an.
Großzügige Fensterflächen, klare Linien und hochwertige Materialien sorgen für eine zeitlose, moderne Architektur, die nicht laut sein muss, um Eindruck zu hinterlassen.
Die Architektur des Hauses wurde bewusst so entwickelt, dass sich die Wohnräume und Terrassenbereiche zur offenen Landschaft orientieren, wodurch schöne Blickachsen ins Grüne sowie ein geschützter privater Außenbereich entstehen.
Nachhaltige Technik – durchdacht bis ins Detail
Dieses Haus wurde konsequent zukunftsorientiert geplant:
Photovoltaikanlage mit ca. 10 kWp Leistung inkl. Wallbox
Luftwärmepumpe mit kontrollierter Wohnraumlüftung
Fußbodenheizung mit Kühlfunktion
Kaminofen als stilvoller Raumteiler
extensiv begrüntes Flachdach
10.000-Liter-Zisterne für ressourcenschonende Gartenbewässerung
sehr niedrige laufende Betriebskosten
(Hinweis: Der Energieausweis wurde im Zuge der Einreichplanung erstellt.)
Nachhaltigkeit bedeutet hier nicht Verzicht – sondern Komfort mit Verantwortung.
Laufende Kosten (ca. monatlich)
Müll / Abfall / Kanal: ~60 €
Grundsteuer: ~19 €
Wasser: ~18 €
Strom (Warmwasser + Heizung + Kühlung + Wohnraumlüftung): ~75 €
Gebäude- und Haushaltsversicherung: ~56 €
Gesamt: rund € 230 monatlich
Diese außergewöhnlich niedrigen laufenden Kosten sind ein weiterer Vorteil der modernen, energieeffizienten Bauweise und ermöglichen dauerhaft wirtschaftliches Wohnen.
Hochwertige Ausstattung – kompromisslos ausgewählt
Holz-Alu-Fenster & Schiebetüren von Josko
Weitzer Massivholzparkett
maßgefertigte Tischler-Einbauten (u. a. im Schlafzimmer und Schrankraum)
hochwertige DAN-Designküche mit Bosch-, Bora- und Liebherr-Geräten
elegante Keramik-Arbeitsplatte
Travertin-Terrasse
zwei stilvolle Bäder mit hochwertigen Armaturen
Alles wirkt ruhig, hochwertig und stimmig – nichts zufällig, nichts austauschbar.
Raumaufteilung – offen, funktional, familienfreundlich
ca. 160 m² Wohnfläche
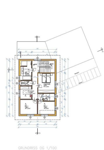
3 Schlafzimmer
1 Büro / Gästezimmer
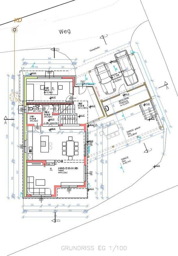
offener Wohn-Ess-Kochbereich mit Speis
2 Badezimmer & 2 WCs
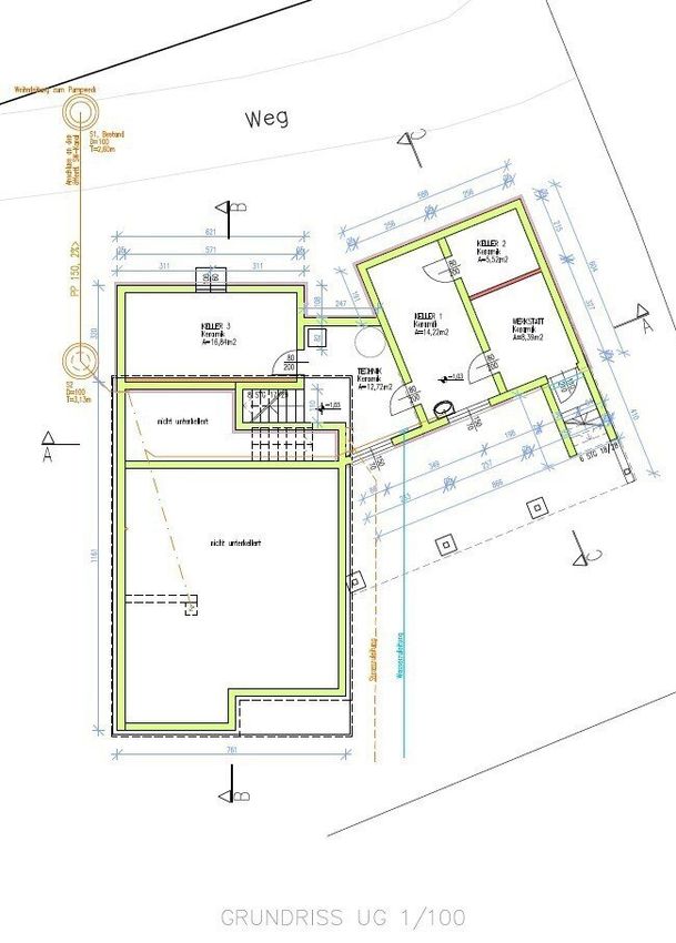
ca. 60 m² Keller, gefliest und in mehrere Räume gegliedert, bequem vom Vorraum neben der Küche aus erreichbar sowie zusätzlich mit direktem Ausgang in den Garten
Carport für 2 PKW inkl. Abstellraum
großzügige Terrasse & Garten
Ein Haus, das sowohl Rückzug als auch gemeinsames Leben ermöglicht.
Häuser dieser Bauqualität (Baujahr 2023) sind in dieser ruhigen Lage südlich von Graz nur selten verfügbar.
Während bei vielen Bestandsimmobilien nach dem Kauf häufig umfangreiche Modernisierungen oder zusätzliche Investitionen erforderlich sind, präsentiert sich dieses Haus als nahezu neuwertiges Architektenhaus, das sofort bezogen werden kann.
Wichtig zu wissen
Dieses Objekt entfaltet seine volle Qualität vor Ort.
Der Sonnenverlauf, das Raumgefühl, die Materialien und die Atmosphäre lassen sich über Fotos nur bedingt transportieren.
Eine Besichtigung ist hier kein letzter Schritt – sondern der entscheidende.
Der Übergabetermin kann in Abstimmung mit den Eigentümern flexibel vereinbart werden, da diese ihren zukünftigen Wohnsitz derzeit planen.
Fazit
Ein außergewöhnliches Architektenhaus für Menschen,
die nicht suchen – sondern wissen, was sie wollen.
Wenn Sie Wert auf nachhaltige Bauweise, hochwertige Materialien, Ruhe und echte Wohnqualität legen,
dann wird Sie dieses Haus nicht überzeugen müssen – es wird sich richtig anfühlen.
Gerne zeigen wir Ihnen dieses besondere Haus persönlich vor Ort. Besichtigungen sind flexibel möglich – senden Sie uns einfach eine kurze Anfrage.
Der Vermittler ist als Doppelmakler tätig.
Infrastruktur / Entfernungen
Gesundheit
Arzt <2.000m
Apotheke <2.500m
Kinder & Schulen
Schule <2.000m
Kindergarten <5.500m
Nahversorgung
Supermarkt <2.000m
Bäckerei <2.000m
Sonstige
Geldautomat <2.000m
Bank <2.000m
Polizei <2.500m
Post <2.500m
Verkehr
Bus <2.000m
Autobahnanschluss <4.000m
Bahnhof <2.000m
Angaben Entfernung Luftlinie / Quelle: OpenStreetMap
Objektdaten
Ausstattung
- Kamin
- Klimatisiert
- Wasch-/Trockenraum
- Einbauküche
- Parkettboden
- Fußbodenheizung
- Luftwärmepumpe
- Ausrichtung Balkon/Terrasse - Süd
- Satteldach
- Flachdach
- Holz Bauweise
- Schlüsselfertig mit Keller
Zustand
- Zustand
- NEUWERTIG
- Baujahr
- 2023
- Alter
- NEUBAU
- HWB
- 43.4 kWh/m² pro Jahr
- Klasse HWB
- C
- fGEE
- 0.67
- Klasse fGEE
- A+
Flächen
- Anzahl der Zimmer
- 5.5
- Anzahl der Terrassen
- 1
- Wohnfläche
- 160m²
- Nutzfläche
- 218m²
- Grundstücksfläche
- 1.150m²
- Kellerfläche
- 58m²
- Terrassenfläche
- 1m²
Kosten
- Kaufpreis Brutto
- € 899.000,00
Verwaltung
- Verfügbar ab
- nach Vereinbarung
Häuser zum Kaufen in Österreich
Häuser zum Kaufen in Österreich
Häuser zum Kaufen in Österreich
Andere Besucher suchen nach...
- Grundstücke kaufen in 3400 Weidlingbach
- Wohnungen kaufen in 4663 Laakirchen
- Häuser in 7471 Rechnitz
- Wohnungen in 2410 Hainburg an der Donau
- Häuser kaufen in 2432 Schwadorf
- Wohnungen kaufen in 3002 Purkersdorf
- Häuser in 3150 Wilhelmsburg
- Wohnungen kaufen in 3470 Engelmannsbrunn
- Grundstücke kaufen im Bezirk Mattersburg
- Grundstücke kaufen im Bezirk Gmunden