Sommerfrische in Steinbrunn: Gönnen Sie sich ein Stück Paradies. Nur wenige Meter zum Badeteich!
Beschreibung
Zum Verkauf gelangt hier ein Einfamilienhaus mit Sauna uvm. auf Pachtgrundstück (verlängerbar) mit Zugang zum Badeteich: Steinbrunner See!
Das Haus ist ein Superädifikat, was bedeutet, dass der Hauseigentümer nicht der Grundstückseigentümer ist, sondern lediglich ein Baurecht zur Nutzung hat.
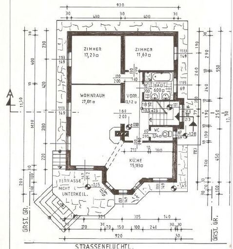
Das Haus ist auf drei Ebenen gegliedert: Kellergeschoss, Erdgeschoss, Oberes Geschoss (Dachgeschoss). Die Zimmer sind alle sehr gut geschnitten und zentral begehbar.
Die Restlaufzeit des Baurechts beträgt 15 Jahre. Nach Ablauf des Baurechts wird der Vertrag erneuert, sofern der Grundstückseigentümer das Baurecht weiterführt.
Die Verlängerung würde 2040 auf weitere 20 Jahre erfolgen. Die...
Zum Verkauf gelangt hier ein Einfamilienhaus mit Sauna uvm. auf Pachtgrundstück (verlängerbar) mit Zugang zum Badeteich: Steinbrunner See!
Das Haus ist ein Superädifikat, was bedeutet, dass der Hauseigentümer nicht der Grundstückseigentümer ist, sondern lediglich ein Baurecht zur Nutzung hat.
Das Haus ist auf drei Ebenen gegliedert: Kellergeschoss, Erdgeschoss, Oberes Geschoss (Dachgeschoss). Die Zimmer sind alle sehr gut geschnitten und zentral begehbar.
Die Restlaufzeit des Baurechts beträgt 15 Jahre. Nach Ablauf des Baurechts wird der Vertrag erneuert, sofern der Grundstückseigentümer das Baurecht weiterführt.
Die Verlängerung würde 2040 auf weitere 20 Jahre erfolgen. Die jährliche Pacht beträgt 3,40 € pro Quadratmeter.
Das Grundstück hat eine Größe von 440 m². Laut Kanalgebührenbescheid belaufen sich die Flächen auf dem Erdgeschoss auf 120m² und dem 1. Stock (Dachgeschoss) auf 116m². Zusätzlich stehen Ihnen im Keller sämtliche Räumlichkeiten zur Verfügung. Das Kellergeschoss ist vollständig ausgebaut und beinhaltet ein Stüberl, einen Fitnessraum, eine Sauna, ein Gästezimmer, eine Werkstatt, ein Büro und eine Waschküche. Die Terrasse ist südöstlich orientiert.
Die Einfahrt zum Grundstück ist sehr komfortabel. Mittels Fernbedienung lässt sich die Garteneinfahrt öffnen. Der Eingang zum Haus liegt erhöht mit schönem Vorgarten und einer Terrasse. Es ließe sich sehr leicht auch ein zweiter Zugang zum Haus schaffen, oder eine Rampe adaptieren. Hinter dem Haus gibt es drei Schuppen. Einer geschlossen und beleuchtet für Gartenwerkzeuge, einer offen und beleuchtet für Holzlagerung und ein weiterer offen und unbeleuchtet für Fahrräder und dgl. Ein Starkstromanschluss ist beim Holzlager auch vorhanden für den Anschluss einer Säge o.ä.. Vor dem Haus befindet sich ein Kinderspielplatz und der Zugang rechts zum Haus (Windfang).
Die Raumheizung erfolgt durch eine elektrische Heizung (Stromdirektheizung) und die Warmwasserbereitung ist ebenfalls elektrisch. Ein Kamin (Kachelofen) mit automatisch und elektrisch regulierter Zuluft befindet sich in der Wohnküche und sorgt für Behaglichkeit und angenehme Wärme.
Die Fenster sind zweifach verglast. Auf der Terrasse gibt es eine Markise für angenehmen Schatten.
Die Wohn- und Schlafräume sind sauber mit Parkettböden / Dielen und die Sanitärräume sauber verfließt.
TV- Internet - und Kabel-Anschlüsse nebst Sat-Schüssel vorhanden.
Energieausweis: Der Heizwärmebedarf (HWB) am Standort beträgt 86,4 kWh/m²a
Der Gesamtenergieeffizienz-Faktor (fGEE) ist 2,36
Der Energieausweis wurde am 04.11.2020 erstellt und ist bis zum 04.11.2030 gültig.
Die anfallenden monatlichen Betriebskosten (Pacht, Kanalgebühr, Grundsteuer, Müll, Gebäudeversicherung, Gemeindeabgaben) belaufen sich auf ca. € 250,-- monatlich.
Für die Heizung und Warmwasser wurden bisher (für 6 Personen) ca. € 300,-- monatlich für Strom ausgegeben.
Lage und Infrastruktur:
Die Marktgemeinde Steinbrunn am See liegt malerisch im Nordburgenland und ist umgeben von einer naturbelassenen Landschaft aus Feldern, Weinbergen und dem namensgebenden See. Sie bietet die ideale Kombination aus ländlicher Ruhe und Nähe zu urbanen Zentren wie Eisenstadt und Wien. Die Einfamilienhäuser liegen meist in ruhigen, gut angebundenen Wohnsiedlungen.
Nahversorgung (im Ort, fußläufig erreichbar):
Supermarkt, Bäckerei, Fleischerei: ca. 500 - 800 Meter (entspricht 2-3 Autominuten oder 5-10 Gehminuten).
Post und Bank: ca. 700 Meter (2 Autominuten).
Gesundheit:
Allgemeinmediziner: ca. 750 Meter (3 Autominuten).
Apotheke: Die nächste Apotheke befindet sich ca. 4 km entfernt in der Nachbargemeinde Zillingtal (ca. 6 Autominuten).
Krankenhaus: Das Krankenhaus in der Landeshauptstadt Eisenstadt ist ca. 8,5 km entfernt und in etwa 10 Minuten mit dem Auto erreichbar.
Bildungseinrichtungen:
Kinderkrippe, Kindergarten und zweisprachige Volksschule: ca. 800 Meter bis 1 km (3-4 Autominuten oder ca. 10-15 Gehminuten).
Weiterführende Schulen (Gymnasium, Mittelschulen) befinden sich in Eisenstadt.
Kultur und Freizeittipps:
Im Ort: Der Steinbrunner See ist das Herzstück des Freizeitangebots. Mit einem Strandbad, Seerestaurant, Beachvolleyballplätzen und Spielplätzen bietet er ideale Bedingungen zur Erholung und ist zu Fuß in 3 Minuten erreichbar.
Sportlich aktiv: Zahlreiche Rad- und Wanderwege durch die Region Leithagebirge sind direkt vom Ort aus zugänglich. Die örtlichen Vereine (z.B. der Fußballverein) bieten ebenfalls Freizeitmöglichkeiten.
Nähere Umgebung:
Eisenstadt: Nur ca. 10 km entfernt, die kulturellen Höhepunkte wie das Schloss Esterházy und Konzerte im Haydnsaal sind schnell zu erreichen.
Neusiedler See: In kurzer Fahrdistanz gelegen, ideal für Wassersportler (Segeln, Windsurfen) und Naturliebhaber.
Wiener Neustadt: nur 15km entfernt, bietet kulturelle und sportliche Abwechslung sowie einen Sportflugplatz.
Verkehrsanbindung:
Auto:
Die Autobahn A3 (Anschlussstelle Hornstein/Steinbrunn) ist in wenigen Minuten (ca. 7 km) erreichbar.
Fahrtzeit nach Eisenstadt: ca. 10 Minuten (10 km).
Fahrtzeit zur Stadtgrenze Wien: ca. 30 Minuten.
Bahnhof: Der nächste Bahnhof befindet sich in Ebenfurth (10km), von wo man Wien Meidling stündlich in 26 Minuten erreicht. Ein Anrufsammeltaxi verkehrt zwischen Bahnhof und See.
Flughafen: Der internationale Flughafen Wien-Schwechat (VIE) ist ca. 48 km entfernt und mit dem Auto in etwa 40 Minuten erreichbar.
Die Siedlung ist sehr ruhig und ist sehr familiär. Rundherum genießen Sie viel grün.
Baden können Sie mittels begünstigter Anrainer-Saisonkarte in Steinbrunner See, 3 Minuten zu Fuß vom Haus. Am Areal des Sees befindet sich auch eine brandneue Minigolfanlage.
Die Infrastruktur ist auch gut gegeben: Busstation, Schulen, Kindergärten, Einkaufsmöglichkeiten, Apotheken, Banken, etc.
Kindergärten und Schulen befinden sich in der Nähe;
Vereinbaren Sie noch heute eine Besichtigung und lassen Sie sich begeistern!
Konditionen:
Kaufpreis: € 329.000,--
Provision: 3 % vom Kaufpreis + 20 % MwSt.
Grundbuchseintragungskosten: 1,1 % (Möglichkeit auf eine Befreiung nach Ansuchen bei dringendem Wohnbedarf und Haltedauer von mind. 5 Jahren;)
Grunderwerbssteuer: 3,5 %
Kaufvertragserrichtung inkl. Treuhand: i.d.R.: 1,2 % + 20 % MwSt. + Barauslagen + Beglaubigungen
ev. Pfandrechtseintragungsgebühr (Kredit) im Grundbuch: 1,2 % vom Kaufpreis (Möglichkeit auf eine Befreiung)
Finanzierung:
Sie suchen nach einer passenden Finanzierung für dieses Objekt?
Um Ihnen Ihre wertvolle Zeit und Ihr Geld zu sparen, stehen wir Ihnen auch hier tatkräftig zur Seite!
Gerne stehen wir Ihnen für ein unverbindliches und kostenloses Erstberatungsgespräch zur Verfügung.
Wir beraten Sie verlässlich und professionell! Sparen Sie Ihre kostbare Zeit mit unzähligen Bankterminen.
Kontakt:
Bitte beachten Sie, dass wir aufgrund der Nachweispflicht gegenüber dem Eigentümer nur Anfragen mit vollständiger Angabe der Anschrift bearbeiten können.
Wir senden Ihnen gerne weitere und detaillierte Beschreibungen sowie Besichtigungstermine zu, sobald wir Ihre Anfrage erhalten haben.
Wir bitten Sie daher um eine E-Mail-Anfrage an: office@pr-immobilien.at
Noch nichts gefunden? Wir informieren Sie über geeignete Immobilienangebote noch vor allen anderen.
Legen Sie jetzt Ihren individuellen Suchagenten unter folgendem Link an. Wir schicken Ihnen passende Immobilien exklusiv vorab zu.
Suchagent anlegen - https://pr-immobilien-real-estate.service.immo/registrieren/de
Der Vermittler ist als Doppelmakler tätig.
Infrastruktur / Entfernungen
Gesundheit
Arzt <2.500m
Apotheke <4.000m
Klinik <7.000m
Krankenhaus <10.000m
Kinder & Schulen
Schule <3.000m
Kindergarten <1.500m
Universität <10.000m
Nahversorgung
Supermarkt <3.000m
Bäckerei <1.500m
Einkaufszentrum <9.500m
Sonstige
Bank <2.500m
Geldautomat <2.500m
Post <2.500m
Polizei <4.000m
Verkehr
Bus <1.500m
Autobahnanschluss <4.500m
Bahnhof <4.000m
Flughafen <9.500m
Angaben Entfernung Luftlinie / Quelle: OpenStreetMap
Objektdaten
Ausstattung
- Räume veränderbar
- Kamin
- Klimatisiert
- Gartennutzung
- Kabel/SAT-TV
- DVBT
- Sauna
- Wasch-/Trockenraum
- Sporteinrichtungen
- Wellnessbereich
- UMTS Empfang
- Gäste-WC
- Seniorengerecht
- Bad mit Dusche
- Bad mit Badewanne
- Bad mit Fenster
- Offene Küche
- Fliesenboden
- Parkettboden
- Laminatboden
- Dielenboden
- Estrichboden
- Elektrische Befeuerung
- Befeuerung mit Holz
- Ausrichtung Balkon/Terrasse - Südwest
- Satteldach
- Massiv Bauweise
Zustand
- Zustand
- GEPFLEGT
- Baujahr
- 1990
- Alter
- NEUBAU
- HWB
- 86.4 kWh/m² pro Jahr
- Klasse HWB
- C
- fGEE
- 2.36
- Klasse fGEE
- D
Flächen
- Anzahl der Zimmer
- 7.5
- Anzahl der Badezimmer
- 3
- Anzahl der sep. WCs
- 3
- Anzahl der Terrassen
- 1
- Wohnfläche
- 163m²
- Nutzfläche
- 240m²
- Grundstücksfläche
- 440m²
- Kellerfläche
- 70m²
- Terrassenfläche
- 1m²
Kosten
- Kaufpreis Brutto
- € 329.000,00
- Betriebskosten
- € 227,27
Verwaltung
- Verfügbar ab
- nach Vereinbarung
Häuser zum Kaufen im Umkreis von Steinbrunn
Häuser zum Kaufen im Umkreis von Steinbrunn
Häuser zum Kaufen in Österreich
Andere Besucher suchen nach...
- Grundstücke kaufen in 3400 Weidlingbach
- Wohnungen kaufen in 4663 Laakirchen
- Häuser in 7471 Rechnitz
- Wohnungen in 2410 Hainburg an der Donau
- Häuser kaufen in 2432 Schwadorf
- Wohnungen kaufen in 3002 Purkersdorf
- Häuser in 3150 Wilhelmsburg
- Wohnungen kaufen in 3470 Engelmannsbrunn
- Grundstücke kaufen im Bezirk Mattersburg
- Grundstücke kaufen im Bezirk Gmunden