2 Häuser, 1 Wohntraum: Charme Potenzial!
€ 285.000
€ 1.900 / m²
2215 Raggendorf
Beschreibung
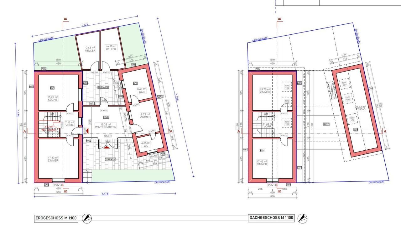
2 Häuser, 1 Wohntraum: Charme & Potenzial! Dieses besondere Objekt in ruhiger Lage von Raggendorf bietet viel mehr als ein klassisches Einfamilienhaus. Die Liegenschaft besteht aus zwei Baukörpern, die durch einen großzügigen, lichtdurchfluteten Wintergarten miteinander verbunden sind. Dieses architektonische Highlight schafft ein außergewöhnliches Wohngefühl und verbindet die Räume auf charmante Weise. Auf ca. 152 m² Wohnfläche verteilen sich insgesamt fünf Zimmer, darunter ein großzügiges Studio im Dachgeschoss und drei flexibel nutzbare Schlaf- oder Arbeitsräume. Die massive Ziegelbauweise, kombiniert mit modernen Elementen wie den 2025 neu eingebauten 3-fach-isolierten Fenstern, sorgt für ein behagliches Wohnklima. Die Highlights auf einen Blick: Besondere Architektur:...
2 Häuser, 1 Wohntraum: Charme & Potenzial!
Dieses besondere Objekt in ruhiger Lage von Raggendorf bietet viel mehr als ein klassisches Einfamilienhaus. Die Liegenschaft besteht aus zwei Baukörpern, die durch einen großzügigen, lichtdurchfluteten Wintergarten miteinander verbunden sind. Dieses architektonische Highlight schafft ein außergewöhnliches Wohngefühl und verbindet die Räume auf charmante Weise.
Auf ca. 152 m² Wohnfläche verteilen sich insgesamt fünf Zimmer, darunter ein großzügiges Studio im Dachgeschoss und drei flexibel nutzbare Schlaf- oder Arbeitsräume. Die massive Ziegelbauweise, kombiniert mit modernen Elementen wie den 2025 neu eingebauten 3-fach-isolierten Fenstern, sorgt für ein behagliches Wohnklima.
Die Highlights auf einen Blick:
Besondere Architektur: Zwei verbundene Häuser mit einem ca. 15 m² großen, verglasten Wintergarten als Herzstück.
Viel Platz zum Entfalten: 5 Zimmer, inklusive eines großen Studios im Dachgeschoss mit Velux-Fenstern.
Außenbereich mit Aussicht: Große Terrasse zum Entspannen und zwei Weinkeller mit ca. 20 m² Lagerfläche.
Top-Zustand: Laufend modernisiert, neue Fenster (2025), erneuerte Elektroinstallationen und gepflegte Gasheizung.
Sichere Infrastruktur: Vollständiger Anschluss an das öffentliche Wasser- und Kanalnetz.
Perfekte Lage für Pendler: Nur 20 Minuten zur Wiener Stadtgrenze; Busbahnhof mit Direktverbindung zur U1 in Gehweite.
Richtpreis: 285.000,-- EURO *)
*) Beim Preis handelt es sich um einen Richtpreis, der sich sowohl nach unten als auch nach oben verändern kann! Vorbehaltlich Annahme durch den Abgeber!
Der Vermittler ist als Doppelmakler tätig!
Dieses besondere Objekt in ruhiger Lage von Raggendorf bietet viel mehr als ein klassisches Einfamilienhaus. Die Liegenschaft besteht aus zwei Baukörpern, die durch einen großzügigen, lichtdurchfluteten Wintergarten miteinander verbunden sind. Dieses architektonische Highlight schafft ein außergewöhnliches Wohngefühl und verbindet die Räume auf charmante Weise.
Auf ca. 152 m² Wohnfläche verteilen sich insgesamt fünf Zimmer, darunter ein großzügiges Studio im Dachgeschoss und drei flexibel nutzbare Schlaf- oder Arbeitsräume. Die massive Ziegelbauweise, kombiniert mit modernen Elementen wie den 2025 neu eingebauten 3-fach-isolierten Fenstern, sorgt für ein behagliches Wohnklima.
Die Highlights auf einen Blick:
Besondere Architektur: Zwei verbundene Häuser mit einem ca. 15 m² großen, verglasten Wintergarten als Herzstück.
Viel Platz zum Entfalten: 5 Zimmer, inklusive eines großen Studios im Dachgeschoss mit Velux-Fenstern.
Außenbereich mit Aussicht: Große Terrasse zum Entspannen und zwei Weinkeller mit ca. 20 m² Lagerfläche.
Top-Zustand: Laufend modernisiert, neue Fenster (2025), erneuerte Elektroinstallationen und gepflegte Gasheizung.
Sichere Infrastruktur: Vollständiger Anschluss an das öffentliche Wasser- und Kanalnetz.
Perfekte Lage für Pendler: Nur 20 Minuten zur Wiener Stadtgrenze; Busbahnhof mit Direktverbindung zur U1 in Gehweite.
Richtpreis: 285.000,-- EURO *)
*) Beim Preis handelt es sich um einen Richtpreis, der sich sowohl nach unten als auch nach oben verändern kann! Vorbehaltlich Annahme durch den Abgeber!
Der Vermittler ist als Doppelmakler tätig!
| Angaben gemäß gesetzlichem Erfordernis: | |||
| Heizwärmebedarf: | 86.0 kWh/(m²a) | ||
| Klasse Heizwärmebedarf: | C | ||
| Faktor Gesamtenergieeffizienz: | 1.33 | ||
| Klasse Faktor Gesamtenergieeffizienz: | C | ||
Objektdaten
Ausstattung
- Gartennutzung
- Teilmöbliert
- Kabel/SAT-TV
- Wintergarten
- Zentralheizung
- Befeuerung mit Gas
- Grüne Lage
- Kabel/SAT-TV
- Teilmöbliert
- Wintergarten
- Zentralheizung mit Gas
Zustand
- Zustand
- GEPFLEGT
- Baujahr
- ca. 1987
Flächen
- Anzahl der Zimmer
- 5
- Anzahl der Schlafzimmer
- 3
- Anzahl der Badezimmer
- 1
- Anzahl der sep. WCs
- 1
- Anzahl der Terrassen
- 1
- Stellplätze
- 2
- Wohnfläche
- 150m²
- Grundstücksfläche
- 205m²
- Kellerfläche
- 20m²
- Terrassenfläche
- 1m²
Kosten
- Kaufpreis
- € 285.000,00
Verwaltung
- Verfügbar ab
- nach Vereinbarung
Häuser zum Kaufen im Umkreis von Matzen-Raggendorf
Häuser zum Kaufen im Umkreis von Matzen-Raggendorf
Häuser zum Kaufen in Österreich
Andere Besucher suchen nach...
- Grundstücke kaufen in 3400 Weidlingbach
- Wohnungen kaufen in 4663 Laakirchen
- Häuser in 7471 Rechnitz
- Wohnungen in 2410 Hainburg an der Donau
- Häuser kaufen in 2432 Schwadorf
- Wohnungen kaufen in 3002 Purkersdorf
- Häuser in 3150 Wilhelmsburg
- Wohnungen kaufen in 3470 Engelmannsbrunn
- Grundstücke kaufen im Bezirk Mattersburg
- Grundstücke kaufen im Bezirk Gmunden