TOP Doppelhaushälfte in Deutsch-Wagram - Zentrumsnahe!
-
Erstbezug
-
2023
Beschreibung
Kurzinformation für eilige Leser
- Doppelhaushälfte mit ca. 159 m² Wohnnutzfläche
- Terrasse mit rund 18m2
- Garten mit rund 56m2
- Absolute Ruhelage
- Massivbauweise (Ziegel)
- Beheizung & Warmwasseraufbereitung mittels Luftwärmepumpe, Fabrikat Vaillant
- Hochwertige Internormfenster
- 2 Stellplätze
- belagsfertiger Zustand (Schlüsselfertigpaket möglich gegen Aufpreis)
- Video in den Anhängen
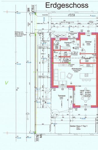
Ausführliche Objektbeschreibung
Wenn man „nach Hause“ kommt, gelangt man über die gemeinsame Zufahrtsstraße, die mit den weiteren Eigentümern der Liegenschaft geteilt wird, direkt zu seinen neuen vier Wänden.
Beim Betreten des Hauses befindet sich rechterhand ein Garderobenbereich, am Ende davon ein WC mit Handwaschbecken. Linkerhand liegt das erste...
Kurzinformation für eilige Leser
- Doppelhaushälfte mit ca. 159 m² Wohnnutzfläche
- Terrasse mit rund 18m2
- Garten mit rund 56m2
- Absolute Ruhelage
- Massivbauweise (Ziegel)
- Beheizung & Warmwasseraufbereitung mittels Luftwärmepumpe, Fabrikat Vaillant
- Hochwertige Internormfenster
- 2 Stellplätze
- belagsfertiger Zustand (Schlüsselfertigpaket möglich gegen Aufpreis)
- Video in den Anhängen
Ausführliche Objektbeschreibung
Wenn man „nach Hause“ kommt, gelangt man über die gemeinsame Zufahrtsstraße, die mit den weiteren Eigentümern der Liegenschaft geteilt wird, direkt zu seinen neuen vier Wänden.
Beim Betreten des Hauses befindet sich rechterhand ein Garderobenbereich, am Ende davon ein WC mit Handwaschbecken. Linkerhand liegt das erste Zimmer, das sich ideal als Homeoffice oder Gästezimmer eignet. Ebenfalls auf dieser Seite befindet sich der Technikraum, in dem die hochwertige Haustechnik untergebracht ist. Unter der Treppe wurde zudem ein praktischer Abstellraum eingeplant.
Bereits vom Flur aus öffnet sich der Blick in den hellen und einladenden Wohn-Essbereich – hier ist Wohlfühlen garantiert. Durch die großzügige Hebeschiebetür gelangt man auf die rund 18 m² große Terrasse und weiter in den schönen Gartenbereich. Ein Gartentor führt direkt zu den zwei zugeordneten Stellplätzen, die das Angebot abrunden.
Über die moderne Treppe gelangt man ins Obergeschoss:
Linkerhand befindet sich das erste Schlafzimmer mit einem Eckfenster, das für eine besonders freundliche Atmosphäre sorgt. Geradeaus liegt das Hauptbadezimmer mit Doppelwaschbecken, WC und Badewanne. Rechterhand befinden sich ein weiteres Zimmer sowie der großzügige Elternbereich. Dieser überzeugt mit einem eigenen Badezimmer(Dusche, WC, Doppelwaschbecken) und einem begehbaren Schrankraum, der dank Lichtkuppel hell und freundlich wirkt. Der geräumige Schlafbereich mit einem doppelflügeligen Fenster macht diesen Rückzugsort perfekt.
Technik, Ausstattung & Heizung
Beheizung & Warmwasser: über moderne Wärmepumpe, gesteuert mittels Fußbodenheizung in allen Geschossen
Kühlung: ebenfalls über die Wärmepumpe möglich
Fenster: hochwertige Internorm-Fenster mit elektrischer Beschattung
Glasfaseranschluss im Haus vorhanden
PV-Leerverrohrung bereits vorgesehen
Belagsfertiger Zustand:
Die Häuser werden im Belagsfertigen Zustand übergeben, heißt für Sie dass folgende Arbeiten bleiben:
- Innentüren + Zargen
- Bodenbeläge Innen
- Bodenbeläge Terrasse / Einfahrtsbereich
- Inneneinrichtung (Bad, Küche, etc.)
- Handlauf
- Spachteln und malen
Ein Angebot zur Schlüsselfertigkeit kann jederzeit nach Absprache gelegt werden.
🏫 Bildungseinrichtungen
- Kindergärten:
- mehrere Kindergärten im Ort
- Schulen:
- Volksschule Deutsch-Wagram
- Mittelschule Deutsch-Wagram
- Bundesoberstufenrealgymnasium Deutsch-Wagram
- Hort der Stadtgemeinde Deutsch-Wagram
🏥 Gesundheitsversorgung
- Ärzte:
- Allgemeinmediziner, Zahnärzte und Fachärzte im Ortsgebiet
- Apotheken:
- Apotheke Deutsch-Wagram
- Krankenhaus:
- Landesklinikum Mistelbach-Gänserndorf (ca. 30 Min. mit dem Auto)
- Klinik Floridsdorf in Wien (ca. 25 Min. mit dem Auto oder öffentlich)
🛍️ Nahversorgung
Einkaufsmöglichkeiten
- LIDL – ca. 1 km
- HOFER – ca. 1 km
- Billa Plus - ca. 1 km
- Spar – ca. 2 km
- BIPA, Apotheke und weitere Geschäfte – ca. 1 km
🚍 Öffentlicher Verkehr
Bahn
- Bahnhof Deutsch-Wagram (ca. 1,1 km entfernt):
- S1 Schnellbahn: Richtung Wien Leopoldau – Wien Mitte – Wien Meidling
- REX-Züge Richtung Gänserndorf – Wien – Mödling
- Fahrtzeit nach Wien Leopoldau: ca. 10 Min
- Wien Hauptbahnhof: ca. 25–30 Min
Busverbindungen (VOR)
- Linie 520 Wien Aderklaaer Straße - Deutsch Wagram - Kollnbrunn
- Linie 521 Deutsch Wagram - Strasshof - Gänserndorf
🚗 Auto-Anbindung:
- Schnelle Anbindung an die B8 (Angerer Straße) und die S1 Wiener Außenring Schnellstraße
- Fahrzeit:
- Wien Stadtgrenze: ca. 10 Min
- Wien Zentrum: ca. 25–30 Min
- Flughafen Wien-Schwechat: ca. 35 Min
🌳 Besonderheiten & Freizeit
- Naherholung & Freizeit:
- Spazierwege entlang der Felder & Kleingärten
- Sportplatz, Tennisplätze und Freibad im Ort
- Reiterhöfe und Radwege in der Umgebung
- Gemeindeleben:
- Vielfältige Vereine und Veranstaltungen
- Familienfreundliche Gemeinde mit guter Infrastruktur
Wichtig
Unter bestimmten Voraussetzungen (Anmeldung als Hauptwohnsitz, dringendes Wohnbedürfnis), kommen Sie jetzt in den Genuss der Gebührenbefreiung von der Grundbucheintragungsgebühr (1,1%) und der Eintragungsgebühr des Pfandrechts (1,2%)!
SIE SIND NOCH UNSCHLÜSSIG, OB IHRE FINANZIERUNG GESICHERT IST?
Ihre Hausbank benötigt im Normalfall 4-6 Wochen, um Ihnen mitzuteilen, ob Ihr Kredit bewilligt wird, oder nicht. Unser Finanzierungspartner sagt Ihnen nicht nur anhand Ihrer Unterlagen in kürzester Zeit, ob die Finanzierung klappen wird, er sorgt auch für den besten und günstigsten Wohnkredit, da er Zugang zu den besten Angeboten aller relevanten Banken hat.
Der Vermittler ist als Doppelmakler tätig.
Objektdaten
Ausstattung
- Estrichboden
- Fußbodenheizung
- Luftwärmepumpe
- Flachdach
- Massiv Bauweise
Dokumente / Links
Zustand
- Zustand
- ERSTBEZUG
- Baujahr
- 2023
- Alter
- NEUBAU
- HWB
- 31.3 kWh/m² pro Jahr
- Klasse HWB
- B
- fGEE
- 0.59
- Klasse fGEE
- A+
Flächen
- Anzahl der Zimmer
- 5
- Wohnfläche
- 159m²
Kosten
- Kaufpreis Brutto
- € 550.000,00
Häuser zum Kaufen im Umkreis von Deutsch-Wagram
- Bezirk Gemeindebezirk Donaustadt
- Bezirk Gemeindebezirk Donaustadt
- Bezirk Gemeindebezirk Donaustadt
- Bezirk Gemeindebezirk Floridsdorf
- Bezirk Gemeindebezirk Floridsdorf
- Bezirk Gemeindebezirk Floridsdorf
- Bezirk Gemeindebezirk Simmering
- Bezirk Gemeindebezirk Simmering
- Bezirk Gemeindebezirk Simmering
- Bezirk Gänserndorf
Häuser zum Kaufen im Umkreis von Deutsch-Wagram
Häuser zum Kaufen in Österreich
Andere Besucher suchen nach...
- Grundstücke kaufen in 3400 Weidlingbach
- Wohnungen kaufen in 4663 Laakirchen
- Häuser in 7471 Rechnitz
- Wohnungen in 2410 Hainburg an der Donau
- Häuser kaufen in 2432 Schwadorf
- Wohnungen kaufen in 3002 Purkersdorf
- Häuser in 3150 Wilhelmsburg
- Wohnungen kaufen in 3470 Engelmannsbrunn
- Grundstücke kaufen im Bezirk Mattersburg
- Grundstücke kaufen im Bezirk Gmunden