CHARMANTES EINFAMILIENHAUS - Garten, Balkon und Terrasse in ruhiger Lage von Orth an der Donau!
-
Sofort
Beschreibung
Willkommen in Ihrem neuen Zuhause! In idyllischer Lage von Orth an der Donau erwartet Sie dieses liebevoll gepflegte Einfamilienhaus, das mit einem durchdachten Grundriss, viel Charme und einem schönen Garten überzeugt.
Wohnen mit Charme und durchdachter Raumaufteilung!
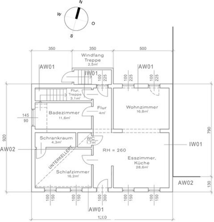
Auf rund 83,2 m² Wohnfläche bietet das Haus drei gut geschnittene Zimmer, die vielseitige Nutzungsmöglichkeiten eröffnen – ob als gemütliches Schlafzimmer, Kinderzimmer oder Homeoffice.
Das Herzstück des Hauses bildet die offene Wohnküche mit moderner Einbauküche. Sie geht fließend in den Wohnbereich über und schafft so ein großzügiges, einladendes Raumgefühl. Hier entstehen ganz automatisch schöne Momente – beim gemeinsamen Kochen, bei geselligen Abenden mit...
Willkommen in Ihrem neuen Zuhause! In idyllischer Lage von Orth an der Donau erwartet Sie dieses liebevoll gepflegte Einfamilienhaus, das mit einem durchdachten Grundriss, viel Charme und einem schönen Garten überzeugt.
Wohnen mit Charme und durchdachter Raumaufteilung!
Auf rund 83,2 m² Wohnfläche bietet das Haus drei gut geschnittene Zimmer, die vielseitige Nutzungsmöglichkeiten eröffnen – ob als gemütliches Schlafzimmer, Kinderzimmer oder Homeoffice.
Das Herzstück des Hauses bildet die offene Wohnküche mit moderner Einbauküche. Sie geht fließend in den Wohnbereich über und schafft so ein großzügiges, einladendes Raumgefühl. Hier entstehen ganz automatisch schöne Momente – beim gemeinsamen Kochen, bei geselligen Abenden mit Freunden oder bei entspannten Stunden mit Blick ins Grüne.
Für behagliche Wärme sorgt ein stilvoll integrierter Schwedenofen im Wohnbereich. Zusätzlich wird das Haus über eine Gasheizung beheizt.
Komfort und Wohlbefinden im Alltag!
Das gepflegte Badezimmer verfügt über ein Fenster, das für angenehmes Tageslicht sorgt, sowie über eine Badewanne, die zu entspannten Auszeiten einlädt. Pflegeleichte Fliesenböden verleihen den Räumen eine moderne, zeitlose Optik und sorgen gleichzeitig für hohen Wohnkomfort. In den gefliesten Bereichen des Wohnbereichs sowie im Badezimmer sorgt eine Fußbodenheizung für zusätzliche Behaglichkeit.
Im Jahr 2015 wurde das Haus umfassend saniert. In diesem Zuge wurden unter anderem Fenster mit zwei- und dreifacher Verglasung eingebaut und elektrische Rollläden installiert. Zudem erfolgte teilweise eine Dämmung der Fassade sowie der Decke zum Dachboden. Darüber hinaus wurden neue Bodenbeläge verlegt sowie eine Fußbodenheizung in den gefliesten Bereichen installiert.
Natur genießen – Balkon, Terrasse und großer Garten!
Besonders hervorzuheben sind die Außenflächen, die das Wohnerlebnis perfekt ergänzen. Der sonnige Nordwest-Balkon sowie die Terrasse bieten ideale Plätze, um den Feierabend ausklingen zu lassen, Gäste zu empfangen oder einfach die Ruhe zu genießen. Der großzügige Garten eröffnet zahlreiche Möglichkeiten: Spielen mit den Kindern, entspanntes Garteln, Grillabende mit Freunden oder einfach ein ruhiger Moment im Grünen mit schönem Ausblick.
Das Haus ist an den öffentlichen Kanal angeschlossen. Die Wasserversorgung erfolgt über einen eigenen Schlagbrunnen.
Ruhige Lage mit praktischer Infrastruktur!
Die Lage in Orth an der Donau verbindet naturnahes Wohnen mit guter Alltagstauglichkeit.
Eine Busverbindung in unmittelbarer Nähe sorgt für eine praktische Anbindung an die umliegenden Orte. Gleichzeitig befinden sich wichtige Einrichtungen wie Apotheke, Schule und Bäckerei in fußläufiger Entfernung, wodurch sich viele Wege bequem im Alltag erledigen lassen.
Highlights auf einen Blick:
- Einfamilienhaus in ruhiger Lage
- 83,2 m² Wohnfläche
- 3 Zimmer mit vielseitiger Nutzung
- Offene Wohnküche mit moderner Einbauküche
- Badezimmer mit Fenster und Badewanne
- Pflegeleichte Fliesenböden
- Gas-Zentralheizung & Schwedenofen
- Nordwest-Balkon und Terrasse
- Großer Garten mit schönem Ausblick
- Gute Infrastruktur und Busanbindung
- Sanierung 2015: Fenster_elektrische Rollläden_Fußbodenheizung in den gefliesten Bereichen
Fazit: Dieses charmante Einfamilienhaus vereint Wohnkomfort, Funktionalität und eine attraktive Lage zu einem rundum stimmigen Gesamtpaket. Ob als erstes Eigenheim, für Paare oder kleine Familien – hier finden Sie einen Ort, an dem Sie sich vom ersten Moment an zuhause fühlen können.
Nutzen Sie diese Gelegenheit und vereinbaren Sie noch heute einen Besichtigungstermin – Ihr neues Zuhause wartet bereits auf Sie! Für weitere Informationen steht Ihnen Axel Pagacz telefonisch unter +43 (0)678 129 30 10 gerne zur Verfügung.
Wir weisen darauf hin, dass zwischen dem Vermittler und dem zu vermittelnden Dritten ein familiäres oder wirtschaftliches Naheverhältnis besteht.
Der Vermittler ist als Doppelmakler tätig.
Infrastruktur / Entfernungen
Gesundheit
Apotheke <1.000m
Arzt <7.500m
Kinder & Schulen
Kindergarten <4.000m
Schule <1.000m
Nahversorgung
Supermarkt <1.500m
Bäckerei <1.000m
Sonstige
Post <1.000m
Bank <1.000m
Polizei <1.000m
Geldautomat <1.000m
Verkehr
Bus <500m
Autobahnanschluss <7.500m
Bahnhof <4.500m
Angaben Entfernung Luftlinie / Quelle: OpenStreetMap
Objektdaten
Ausstattung
- Räume veränderbar
- Gartennutzung
- Rolladen
- Bad mit Badewanne
- Bad mit Fenster
- Einbauküche
- Offene Küche
- Fliesenboden
- Zentralheizung
- Befeuerung mit Gas
- Ausrichtung Balkon/Terrasse - Nordwest
- Satteldach
- Massiv Bauweise
Zustand
- Zustand
- GEPFLEGT
- Baujahr
- 1960
- Alter
- NEUBAU
- HWB
- 27.08 kWh/m² pro Jahr
- Klasse HWB
- F
- fGEE
- 2.77
- Klasse fGEE
- E
Flächen
- Anzahl der Zimmer
- 3
- Anzahl der Badezimmer
- 1
- Anzahl der sep. WCs
- 1
- Anzahl der Terrassen
- 1
- Wohnfläche
- 83m²
- Nutzfläche
- 84m²
- Grundstücksfläche
- 257m²
- Terrassenfläche
- 1m²
Kosten
- Kaufpreis Brutto
- € 239.000,00
- Sonstige Kosten
- € 35,83
Verwaltung
- Verfügbar ab
- Sofort
Häuser zum Kaufen im Umkreis von Orth an der Donau
- Bezirk Bruck an der Leitha
- Bezirk Bruck an der Leitha
- Bezirk Gemeindebezirk Donaustadt
- Bezirk Gemeindebezirk Donaustadt
- Bezirk Gemeindebezirk Donaustadt
- Bezirk Gemeindebezirk Simmering
- Bezirk Gemeindebezirk Simmering
- Bezirk Gemeindebezirk Simmering
- Bezirk Gemeindebezirk Favoriten
- Bezirk Gemeindebezirk Favoriten
Häuser zum Kaufen im Umkreis von Orth an der Donau
Häuser zum Kaufen in Österreich
Andere Besucher suchen nach...
- Grundstücke kaufen in 3400 Weidlingbach
- Wohnungen kaufen in 4663 Laakirchen
- Häuser in 7471 Rechnitz
- Wohnungen in 2410 Hainburg an der Donau
- Häuser kaufen in 2432 Schwadorf
- Wohnungen kaufen in 3002 Purkersdorf
- Häuser in 3150 Wilhelmsburg
- Wohnungen kaufen in 3470 Engelmannsbrunn
- Grundstücke kaufen im Bezirk Mattersburg
- Grundstücke kaufen im Bezirk Gmunden