DEIN ZUHAUSE - Ein-/Zweifamilienhaus mit extra großem Grundstück in zentraler Lage in Vorchdorf
-
sofort
Beschreibung
Zwei Wohneinheiten oder viel Platz für eine Familie und für Hobby & Gartengestaltung in Vorchdorf
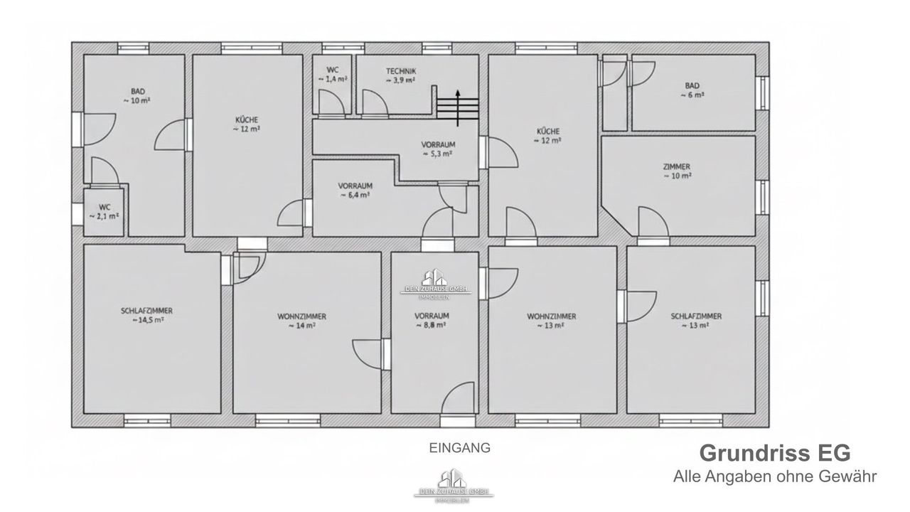
In der beliebten Gemeinde Vorchdorf wartet diese vielseitige Liegenschaft auf neue Eigentümer, die das Besondere suchen. Ob als großzügiges Einfamilienhaus oder aufgeteilt in zwei separate Wohneinheiten – hier verbindet sich zentrales Wohnen mit beeindruckendem Platzangebot. Auch eine wirtschaftliche Nutzung für Reitstall, Kleintierhaltung etc. wäre möglich. Einige Modernisierungen wurden bereits durchgeführt (Fenster, E-Verteiler, tw. Dach samt Photovoltaik ...). Die Räumlichkeiten haben zum Teil Sanierungsbedarf und je nach Nutzungswunsch (Gesamt / 2 Wohneinheiten / Einliegerwohnung) sind Adaptierungen erforderlich/möglich - siehe Grundrisspläne.
Die Highlights auf einen Blick: -...
Zwei Wohneinheiten oder viel Platz für eine Familie und für Hobby & Gartengestaltung in Vorchdorf
In der beliebten Gemeinde Vorchdorf wartet diese vielseitige Liegenschaft auf neue Eigentümer, die das Besondere suchen. Ob als großzügiges Einfamilienhaus oder aufgeteilt in zwei separate Wohneinheiten – hier verbindet sich zentrales Wohnen mit beeindruckendem Platzangebot.
Auch eine wirtschaftliche Nutzung für Reitstall, Kleintierhaltung etc. wäre möglich.
Einige Modernisierungen wurden bereits durchgeführt (Fenster, E-Verteiler, tw. Dach samt Photovoltaik ...). Die Räumlichkeiten haben zum Teil Sanierungsbedarf und je nach Nutzungswunsch (Gesamt / 2 Wohneinheiten / Einliegerwohnung) sind Adaptierungen erforderlich/möglich - siehe Grundrisspläne.
Die Highlights auf einen Blick:
- Gesamtausmaß aller Grundstücke: 5.140m²
- Wohnfläche: Ca. 164 m² – flexibel gestaltbar für eine oder zwei Familien
- Zum Haus angrenzendes Baugrundstück für separate Immobilie
- Garage und Nebengebäude mit viel Stauraum
- 17 kW Photovoltaik-Anlage zur Eigenstromnutzung bzw. Netzeinspeisung
Interesse geweckt? Vereinbaren Sie noch heute einen Besichtigungstermin und lassen Sie sich vom Potenzial dieser Immobilie in Vorchdorf überzeugen!
Für weitere Fragen oder zur Vereinbarung eines Termins steht Ihnen Herr Dominik Hitsch gerne unter der Mobilnummer +43 664 11 20 789 zur Verfügung.
DEIN ZUHAUSE vermittelt Sicherheit.
Der Vermittler ist als Doppelmakler tätig.
Infrastruktur / Entfernungen
Gesundheit
Arzt <500m
Apotheke <500m
Klinik <8.500m
Kinder & Schulen
Schule <500m
Kindergarten <1.000m
Nahversorgung
Supermarkt <500m
Bäckerei <500m
Einkaufszentrum <8.500m
Sonstige
Bank <500m
Geldautomat <500m
Post <1.000m
Polizei <8.500m
Verkehr
Bus <500m
Bahnhof <1.000m
Autobahnanschluss <500m
Flughafen <7.500m
Angaben Entfernung Luftlinie / Quelle: OpenStreetMap
Objektdaten
Ausstattung
- WG geeignet
- Kamin
- Sauna
- Bad mit Badewanne
- Bad mit Fenster
- Fliesenboden
- Laminatboden
- Zentralheizung
- Befeuerung mit Gas
- Befeuerung mit Holz
- Satteldach
- Massiv Bauweise
Dokumente / Links
Zustand
- Zustand
- TEIL_VOLLRENOVIERUNGSBED
- Baujahr
- 1955
- Alter
- ALTBAU
- HWB
- 337 kWh/m² pro Jahr
- Klasse HWB
- G
- fGEE
- 3.32
- Klasse fGEE
- F
Flächen
- Anzahl der Zimmer
- 8
- Anzahl der Badezimmer
- 2
- Anzahl der sep. WCs
- 2
- Stellplätze
- 4
- Wohnfläche
- 164m²
- Nutzfläche
- 260m²
- Grundstücksfläche
- 5.140m²
Kosten
- Kaufpreis Brutto
- € 479.000,00
- Betriebskosten
- € 118,00
- Heizkosten
- € 110,00
Verwaltung
- Verfügbar ab
- sofort
Häuser zum Kaufen im Umkreis von Vorchdorf
Häuser zum Kaufen im Umkreis von Vorchdorf
Häuser zum Kaufen in Österreich
Andere Besucher suchen nach...
- Grundstücke kaufen in 3400 Weidlingbach
- Wohnungen kaufen in 4663 Laakirchen
- Häuser in 7471 Rechnitz
- Wohnungen in 2410 Hainburg an der Donau
- Häuser kaufen in 2432 Schwadorf
- Wohnungen kaufen in 3002 Purkersdorf
- Häuser in 3150 Wilhelmsburg
- Wohnungen kaufen in 3470 Engelmannsbrunn
- Grundstücke kaufen im Bezirk Mattersburg
- Grundstücke kaufen im Bezirk Gmunden