Sonniges 5-Zi-Haus 175m² Ebensee mit Terrasse, Loggia & Pool, Gebirgsblick, Top-Ausstattung in Ebensee - Wohnen im Salzkammergut
-
sofort
Beschreibung
Sonniges Familienparadies mit Gebirgsblick, Pool & Top-Ausstattung in Ebensee - Wohnen im Salzkammergut
Dieses gepflegte Einfamilienhaus in attraktiver Lage von Ebensee vereint Wohnkomfort, Naturnähe und eine ausgezeichnete Infrastruktur. Eingebettet in die traditionsreiche Region des Salzkammergut und nur unweit von Bad Ischl sowie Gmunden gelegen, bietet diese Immobilie eine perfekte Kombination aus Erholung und Lebensqualität. Der nahe Traunsee sowie das beeindruckende Bergpanorama rund um den Traunstein laden zu vielfältigen Freizeitaktivitäten – von Wandern bis Wintersport – ein.
Das ursprünglich im Jahr 1952 errichtete Wohnhaus wurde 1986 umfassend saniert und bis zuletzt laufend modernisiert sowie technisch auf den neuesten Stand gebracht (bis...
Sonniges Familienparadies mit Gebirgsblick, Pool & Top-Ausstattung in Ebensee - Wohnen im Salzkammergut
Dieses gepflegte Einfamilienhaus in attraktiver Lage von Ebensee vereint Wohnkomfort, Naturnähe und eine ausgezeichnete Infrastruktur. Eingebettet in die traditionsreiche Region des Salzkammergut und nur unweit von Bad Ischl sowie Gmunden gelegen, bietet diese Immobilie eine perfekte Kombination aus Erholung und Lebensqualität. Der nahe Traunsee sowie das beeindruckende Bergpanorama rund um den Traunstein laden zu vielfältigen Freizeitaktivitäten – von Wandern bis Wintersport – ein.
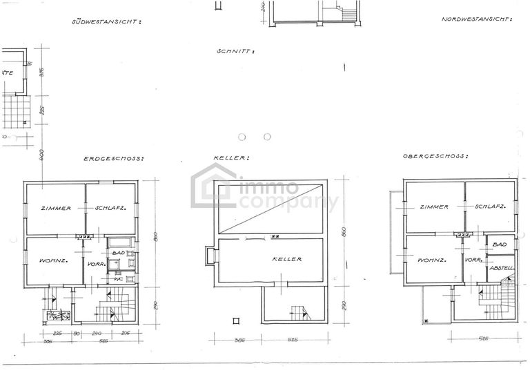
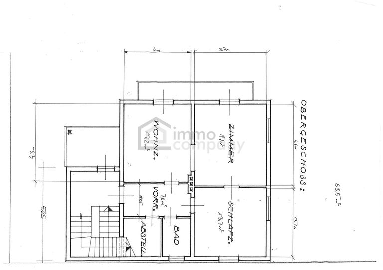
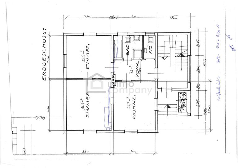
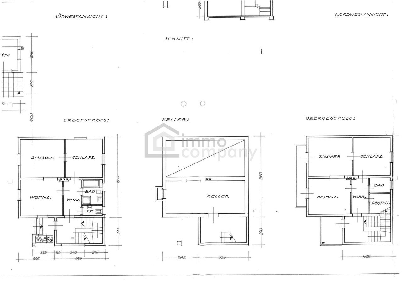
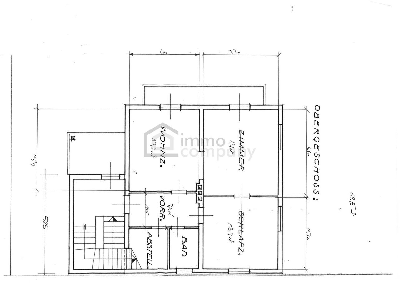
Das ursprünglich im Jahr 1952 errichtete Wohnhaus wurde 1986 umfassend saniert und bis zuletzt laufend modernisiert sowie technisch auf den neuesten Stand gebracht (bis 2024). Auf einer Wohnfläche von ca. 178 m² überzeugt das Haus mit einer durchdachten Raumaufteilung und einer angenehmen Wohnatmosphäre.
Insgesamt stehen fünf Zimmer zur Verfügung, darunter ein großzügiger Wohn- und Essbereich mit direktem Zugang zur Terrasse und in den Garten. Die moderne Küche ist funktional gestaltet und bietet viel Platz für kulinarische Entfaltung. Das Badezimmer präsentiert sich zeitgemäß ausgestattet mit Dusche und Whirlpool-Badewanne. Ein zusätzliches Gäste-WC im Erdgeschoss sorgt für zusätzlichen Komfort.
Das ca. 1.119 m² große Grundstück besticht durch einen gepflegten, pflegeleicht angelegten Garten mit umlaufender Einfriedung, die für Privatsphäre sorgt. Die großzügige, überdachte Hauptterrasse bietet einen wunderschönen Blick auf die Berge sowie ein beeindruckendes Bergpanorama. Eine Glasschiebewand schützt zusätzlich vor Wind, während ein vorhandener TV-Anschluss den Außenbereich perfekt ergänzt. Der moderne Außenpool mit Überdachung rundet das hochwertige Gesamtbild ab.
Ein vielseitig nutzbares Nebengebäude bietet zahlreiche Möglichkeiten und umfasst eine Werkstatt, eine Garage, einen Pooltechnikraum, einen Geräteraum sowie einen Dachboden. Ein Doppelcarport stellt ausreichend Platz für zwei große Fahrzeuge zur Verfügung.
Die Immobilie befindet sich in einer verkehrsberuhigten 30er-Zone mit angeschlossenem Radweg. Die Volksschule Roith ist bequem in etwa 10 Gehminuten erreichbar – ideal für Familien.
Ausstattungs-Highlights:
- Wasser-Wärmepumpe mit Fußbodenheizung
- Hochwertige JOSKO Aluminiumfenster mit 3-fach-Verglasung
- Elektrische Rollläden
- Laufend modernisiert und sehr gepflegter Zustand
Diese Immobilie eignet sich ideal für Paare oder Familien, die ein solides, hochwertig ausgestattetes Zuhause in einer der schönsten Regionen Österreichs suchen
Der Vermittler ist als Doppelmakler tätig.
Nutzen Sie die einmalige Gelegenheit, diese Immobilie zu besichtigen – sehen und erleben ist sehr viel eindrucksvoller!
Eine Besichtigung ist kostenfrei und unverbindlich, und gibt Ihnen einen unverfälschten Eindruck von der Immobilie.
Gerne unterstütze ich Sie auch bei der Finanzierung sowie beim Verkauf/Vermietung Ihrer Immobilie.
Infrastruktur / Entfernungen
Gesundheit
Arzt <2.500m
Apotheke <2.000m
Kinder & Schulen
Schule <500m
Kindergarten <1.000m
Nahversorgung
Supermarkt <1.500m
Bäckerei <2.000m
Einkaufszentrum <2.500m
Sonstige
Geldautomat <2.500m
Bank <2.500m
Post <1.500m
Polizei <2.500m
Verkehr
Bus <500m
Bahnhof <2.000m
Angaben Entfernung Luftlinie / Quelle: OpenStreetMap
Objektdaten
Ausstattung
- Teilmöbliert
- Kabel/SAT-TV
- Offene Küche
- Zentralheizung
- Fußbodenheizung
- Erdwärme
- Massiv Bauweise
Zustand
- Zustand
- MODERNISIERT
- Baujahr
- 1952
- HWB
- 192 kWh/m² pro Jahr
- Klasse HWB
- E
- fGEE
- 1.75
- Klasse fGEE
- C
Flächen
- Anzahl der Zimmer
- 5
- Anzahl der Badezimmer
- 1
- Anzahl der sep. WCs
- 2
- Anzahl der Terrassen
- 1
- Anzahl der Logia
- 1
- Wohnfläche
- 175m²
- Grundstücksfläche
- 1.119m²
- Terrassenfläche
- 1m²
Kosten
- Kaufpreis Brutto
- € 649.000,00
Verwaltung
- Verfügbar ab
- sofort
Häuser zum Kaufen im Umkreis von Ebensee
Häuser zum Kaufen im Umkreis von Ebensee
Häuser zum Kaufen in Österreich
Andere Besucher suchen nach...
- Grundstücke kaufen in 3400 Weidlingbach
- Wohnungen kaufen in 4663 Laakirchen
- Häuser in 7471 Rechnitz
- Wohnungen in 2410 Hainburg an der Donau
- Häuser kaufen in 2432 Schwadorf
- Wohnungen kaufen in 3002 Purkersdorf
- Häuser in 3150 Wilhelmsburg
- Wohnungen kaufen in 3470 Engelmannsbrunn
- Grundstücke kaufen im Bezirk Mattersburg
- Grundstücke kaufen im Bezirk Gmunden