*PERFEKT* aufgeteiltes Haus mit Garage, Carport und vielen Gestaltungsmöglichkeiten am Grazer Stadtrand *WETZELSDORF*
Beschreibung
Dieses großzügige Wohnhaus bietet rund 150m² Nutzfläche plus ca. 60m² Keller und überzeugt durch eine durchdachte Aufteilung auf drei Ebenen – ideal für Familien, Mehr-Generationen-Wohnen oder alle, die Platz, Struktur und Gestaltungsspielraum schätzen.
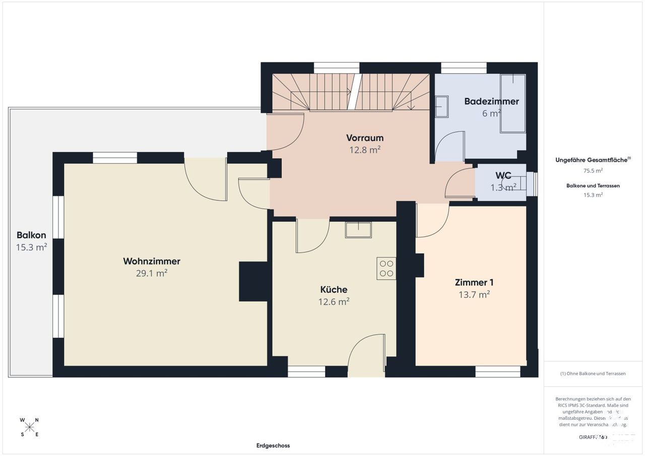
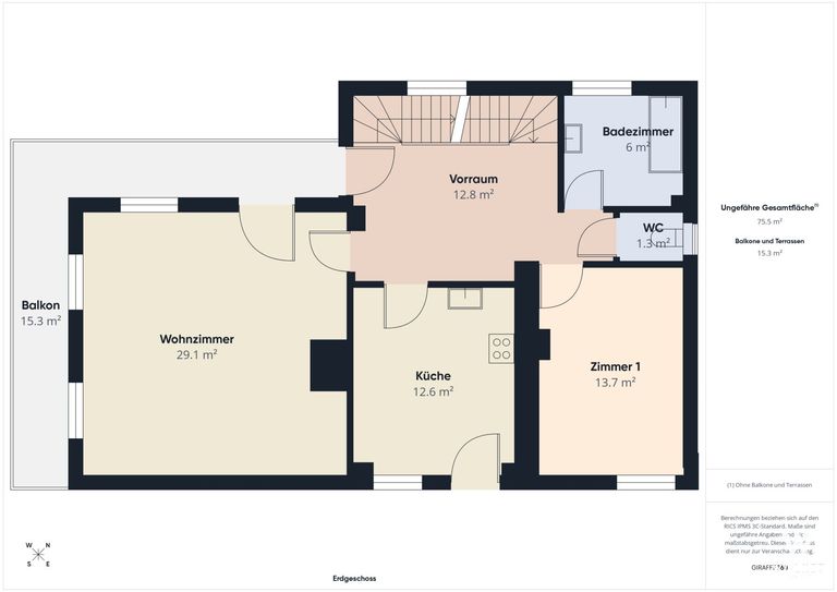
ERDGESCHOSS
Im Erdgeschoss befindet sich der zentrale Lebensmittelpunkt: eine Küche, ein Badezimmer, ein separates WC, ein großes, helles Wohnzimmer sowie ein weiteres Zimmer, das sich vielseitig nutzen lässt. Von der Küche gelangt man auf die überdachte Terrasse und weiter in den Garten - perfekt für entspannte Stunden im Freien. Des Weiteren hat man vom Erdgeschoss auch Zugang auf den rund 15 m² großen Balkon.
OBERGESCHOSS
Das Obergeschoss...
Dieses großzügige Wohnhaus bietet rund 150m² Nutzfläche plus ca. 60m² Keller und überzeugt durch eine durchdachte Aufteilung auf drei Ebenen – ideal für Familien, Mehr-Generationen-Wohnen oder alle, die Platz, Struktur und Gestaltungsspielraum schätzen.
ERDGESCHOSS
Im Erdgeschoss befindet sich der zentrale Lebensmittelpunkt: eine Küche, ein Badezimmer, ein separates WC, ein großes, helles Wohnzimmer sowie ein weiteres Zimmer, das sich vielseitig nutzen lässt. Von der Küche gelangt man auf die überdachte Terrasse und weiter in den Garten - perfekt für entspannte Stunden im Freien. Des Weiteren hat man vom Erdgeschoss auch Zugang auf den rund 15 m² großen Balkon.
OBERGESCHOSS
Das Obergeschoss bietet ein weiteres Badezimmer mit WC sowie drei gut geschnittene Zimmer, die sich ideal als Schlafzimmer, Homeoffice oder persönliche Rückzugsräume eignen. Damit bietet dieses Stockwerk optimalen Platz für Familien mit bis zu drei Kindern oder eine flexible Mischung aus Wohnen und Arbeiten.
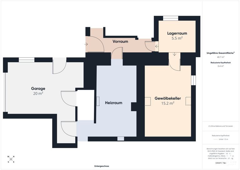
KELLERGESCHOSS
Im Kellergeschoss finden Sie einen charaktervoller Gewölbekeller, praktische Lagerräume, eine Garage sowie den Heizraum. Das Haus wird zentral über eine Ölheizung oder alternativ über feste Brennstoffe beheizt. Zusätzlich sorgt ein Doppelcarport vor dem Haus für weitere geschützte Stellplätze.
Zusammengefasst handelt es sich um ein gut gelegenes Haus mit Charme, viel Platz und großem Gestaltungsmöglichkeiten – die perfekte Basis, um es nach eigenen Vorstellungen weiter zu entwickeln, einzurichten und zu modernisieren.
Service & Besichtigung
Ein ausführliches Exposé mit Grundrissen und 360° Besichtigungstour erhalten Sie gerne per E-Mail – bitte senden Sie uns dazu Ihre vollständigen Kontaktdaten.
Unser Finanzierungsservice unterstützt Sie kostenlos und unverbindlich bei der Wahl der besten Finanzierungslösung.
Kontaktieren Sie uns für weitere Informationen oder vereinbaren Sie gleich einen persönlichen Besichtigungstermin – wir freuen uns, Ihnen dieses schöne Haus präsentieren zu dürfen!
Ihr Ansprechpartner:
Kevin Zettelbauer
Mobil: +43 660 93 45 147
E-Mail: zk@w7.immo
Noch nichts gefunden? Wir informieren Sie über geeignete Immobilienangebote noch vor allen anderen.
Legen Sie jetzt Ihren individuellen Suchagenten unter folgendem Link an. Wir schicken Ihnen passende Immobilien exklusiv vorab zu.
Suchagent anlegen - https://wolke-7-immobilien.service.immo/registrieren/de
Der Vermittler ist als Doppelmakler tätig.
Infrastruktur / Entfernungen
Gesundheit
Arzt <1.000m
Apotheke <1.500m
Klinik <1.000m
Krankenhaus <2.000m
Kinder & Schulen
Schule <1.000m
Kindergarten <1.000m
Universität <3.000m
Höhere Schule <3.000m
Nahversorgung
Supermarkt <1.500m
Bäckerei <1.500m
Einkaufszentrum <4.000m
Sonstige
Geldautomat <1.500m
Bank <1.500m
Post <1.500m
Polizei <2.000m
Verkehr
Bus <500m
Straßenbahn <1.500m
Autobahnanschluss <4.000m
Bahnhof <2.500m
Flughafen <9.500m
Angaben Entfernung Luftlinie / Quelle: OpenStreetMap
Objektdaten
Zustand
- HWB
- 142.2 kWh/m² pro Jahr
- Klasse HWB
- D
- fGEE
- 1.97
- Klasse fGEE
- D
Flächen
- Anzahl der Zimmer
- 4
- Anzahl der Badezimmer
- 2
- Anzahl der sep. WCs
- 2
- Anzahl der Balkone
- 1
- Anzahl der Terrassen
- 1
- Stellplätze
- 2
- Nutzfläche
- 156m²
- Grundstücksfläche
- 876m²
- Gartenfläche
- 400m²
- Kellerfläche
- 66m²
- Terrassenfläche
- 1m²
Kosten
- Kaufpreis Brutto
- € 328.000,00
Häuser zum Kaufen in Österreich
Häuser zum Kaufen in Österreich
Andere Besucher suchen nach...
- Grundstücke kaufen in 3400 Weidlingbach
- Wohnungen kaufen in 4663 Laakirchen
- Häuser in 7471 Rechnitz
- Wohnungen in 2410 Hainburg an der Donau
- Häuser kaufen in 2432 Schwadorf
- Wohnungen kaufen in 3002 Purkersdorf
- Häuser in 3150 Wilhelmsburg
- Wohnungen kaufen in 3470 Engelmannsbrunn
- Grundstücke kaufen im Bezirk Mattersburg
- Grundstücke kaufen im Bezirk Gmunden