*** Kapitalanlage oder Eigennutzung – vielseitiges Gewerbeobjekt mit Potenzial ***
Beschreibung
Exklusives Gewerbeobjekt mit hohem Potenzial – Neudau
Kaufpreis: 360.000 € Betriebskosten: ca. 1.500 € / Jahr Nutzfläche: ca. 300 m² Grundstück: 1.318 m² mit bestehendem Objekt | zusätzlich 1.500 m² Baugrundstück angrenzend im Preis inkl.
Adresse: Lafnitzweg 2, 8292 Neudau, Steiermark, Österreich
Einleitung
Dieses vielseitige Gewerbeobjekt bietet stabile Mieteinnahmen, flexible Nutzungsmöglichkeiten und signifikantes Entwicklungspotenzial. Derzeit ist das Objekt als Bordell vermietet, wodurch sofortige Mieteinnahmen erzielt werden können. Ob als renditestarkes Investment oder für Eigennutzer nach Kündigung des bestehenden Mietvertrags – hier können Sie ein außergewöhnliches Projekt verwirklichen.
Highlights auf einen Blick
- Renditeobjekt mit stabilen Einnahmen:...
Exklusives Gewerbeobjekt mit hohem Potenzial – Neudau
Kaufpreis: 360.000 €
Betriebskosten: ca. 1.500 € / Jahr
Nutzfläche: ca. 300 m²
Grundstück: 1.318 m² mit bestehendem Objekt | zusätzlich 1.500 m² Baugrundstück angrenzend im Preis inkl.
Adresse: Lafnitzweg 2, 8292 Neudau, Steiermark, Österreich
Einleitung
Dieses vielseitige Gewerbeobjekt bietet stabile Mieteinnahmen, flexible Nutzungsmöglichkeiten und signifikantes Entwicklungspotenzial. Derzeit ist das Objekt als Bordell vermietet, wodurch sofortige Mieteinnahmen erzielt werden können. Ob als renditestarkes Investment oder für Eigennutzer nach Kündigung des bestehenden Mietvertrags – hier können Sie ein außergewöhnliches Projekt verwirklichen.
Highlights auf einen Blick
- Renditeobjekt mit stabilen Einnahmen: ca. 21.000 € p. a. inkl. Steuern
- Derzeitige Nutzung: Bordellbetrieb
- Flexible Nutzungsmöglichkeiten: vielfältige Gewerbe‑ bzw. Hospitality‑Einsatzbereiche
- Nutzfläche: ca. 300 m² – offen, funktional und gut nutzbar
- Zusätzliches Baugrundstück: ca. 1.500 m² angrenzend zur Erweiterung
- Technik & Ausstattung: Öl‑Heizung, Heizofen, Doppelgarage
- Extras & Besonderheiten: große Außenfläche, Selch, Weingarten, Gastgarten
- Attraktive Lage: Infrastruktur in der Marktgemeinde Neudau verfügbar
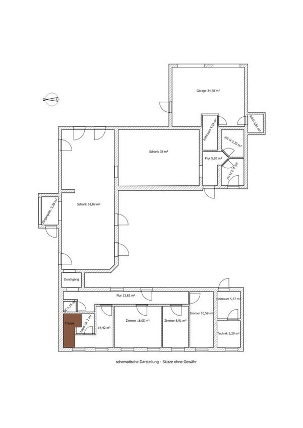
Detaillierte Objektbeschreibung
Barbereich & Gastronomische Fläche
Im Erdgeschoss befindet sich ein großzügiger, offener Barbereich mit modernen Sitzlounges und einer Bar‑Lounge im Außenbereich. Getrennte Toiletten und ein Holzheizofen sorgen für Komfort und Atmosphäre – ideal für Gastronomie, Barbetrieb oder Veranstaltungsflächen.
Räumliche Aufteilung – Schlafzimmer & Wohnbereiche
Zimmer für das Bordellgewerbe:
- Zimmer 1: mit Dusche im Zimmer
- Zimmer 2: mit Dusche im Zimmer
- Zimmer 3: mit Badewanne im Zimmer
Obergeschoss:
- Externes Badezimmer mit Badewanne
- Küche (externer Bereich im Obergeschoss)
- 2 Schlafzimmer, eines davon inkl. Dusche
- Zugang zu einem Dachboden, der noch ausgebaut werden kann
Diese Aufteilung bietet vielseitige Nutzungsmöglichkeiten für den Betrieb, Personalbereich oder Projektumgestaltung.
Technik & Infrastruktur
- Heizung: Öl‑Heizung (ca. 1.000 L Tank, Verbrauch ca. 100 L/Woche)
- Zusätzliche Wärme: Holz‑Heizofen
- Doppelgarage für Fahrzeuge und Lager
- Weingarten als zusätzlicher Wertbestandteil
- Selch – vielseitig nutzbar
- Parkfläche direkt am Objekt
Keller & Ausbaupotenzial
- Keller: Lagerraum für Vorräte, Technik oder Archiv
- Dachboden: Ausbaufähig – zusätzliche nutzbare Fläche möglich
Potenzial & Flexibilität
- Mietvertrag kündbar für Eigennutzer: Volle Flexibilität zur Eigennutzung
- Vielseitige Nutzung: Gewerbe, Hospitality, Projektentwicklung, Umwandlung in andere Konzepte
- Erweiterungspotenzial: Großes angrenzendes Baugrundstück (ca. 1.500 m²) für Neubau oder Ausbau
Lage & Infrastruktur – Neudau (Lafnitzweg 2)
Die Marktgemeinde Neudau im Bezirk Hartberg‑Fürstenfeld zeichnet sich durch eine ländlich gut erschlossene Lage mit regionaler Infrastruktur aus.
Öffentliche Infrastruktur & Versorgung:
- Marktgemeindeamt mit Verwaltung und Bürgerservice vor Ort
- Nahversorgung: Lebensmittel, Bäckerei, Bank, Post
- Medizinische Grundversorgung mit niedergelassenen Ärzten
Bildung & Betreuung:
- Volksschule und Mittelschule
- Gemeindekindergarten
Mobilität & Verkehr:
- Regionale Straßenanbindung an L411 und L435 mit Verbindung zu überregionalen Verkehrsachsen
Freizeit & Umgebung:
- Radwege (Lafnitz‑Radweg), Sportplätze, Hallenbad und Spielplätze
Fazit / Ihr Nutzen
Dieses Objekt vereint eine attraktive Rendite, hohe Flexibilität in der Nutzung und erhebliches Entwicklungspotenzial. Es eignet sich sowohl für Investoren, die sofortige Einnahmen erzielen möchten, als auch für Eigennutzer mit Visionen für ein exklusives Projekt.
Ihre Vorteile:
- Sofortige Einnahmen durch bestehende Vermietung als Bordell
- Großzügige Nutzfläche mit funktionaler Raumaufteilung
- Erweiterungsmöglichkeiten durch angrenzendes Baugrundstück
- Umfassende regionale Infrastruktur und ländlich attraktive Lage
- Kann sofort in Betrieb genommen werden, ohne größere Renovierung
Der Vermittler ist als Doppelmakler tätig.
Infrastruktur / Entfernungen
Gesundheit
Arzt <500m
Apotheke <5.000m
Kinder & Schulen
Schule <750m
Kindergarten <2.750m
Nahversorgung
Supermarkt <250m
Bäckerei <3.250m
Einkaufszentrum <7.250m
Sonstige
Bank <750m
Geldautomat <750m
Post <3.250m
Polizei <4.500m
Verkehr
Bus <500m
Bahnhof <6.500m
Autobahnanschluss <8.250m
Angaben Entfernung Luftlinie / Quelle: OpenStreetMap
Objektdaten
Ausstattung
- Räume veränderbar
- Gartennutzung
- Vollmöbliert
- Gäste-WC
- Bad mit Dusche
- Bad mit Badewanne
- Bad mit Fenster
- Fliesenboden
- Parkettboden
- Laminatboden
- Zentralheizung
- Befeuerung mit Öl
- Befeuerung mit Holz
- Bar
Zustand
- Zustand
- GEPFLEGT
- Baujahr
- 1972
- Alter
- NEUBAU
- HWB
- 98.1 kWh/m² pro Jahr
- Klasse HWB
- C
- fGEE
- 1.33
- Klasse fGEE
- C
Flächen
- Anzahl der Zimmer
- 6.5
- Nutzfläche
- 330m²
- Grundstücksfläche
- 2.829m²
Kosten
- Kaufpreis Brutto
- € 360.000,00
- Betriebskosten
- € 125,00
Häuser zum Kaufen im Umkreis von Burgauberg-Neudauberg
Häuser zum Kaufen im Umkreis von Burgauberg-Neudauberg
Häuser zum Kaufen in Österreich
Andere Besucher suchen nach...
- Grundstücke kaufen in 3400 Weidlingbach
- Wohnungen kaufen in 4663 Laakirchen
- Häuser in 7471 Rechnitz
- Wohnungen in 2410 Hainburg an der Donau
- Häuser kaufen in 2432 Schwadorf
- Wohnungen kaufen in 3002 Purkersdorf
- Häuser in 3150 Wilhelmsburg
- Wohnungen kaufen in 3470 Engelmannsbrunn
- Grundstücke kaufen im Bezirk Mattersburg
- Grundstücke kaufen im Bezirk Gmunden