RAUM - KOMFORT - VISION! Charmantes 4-Zimmer-Einfamilienhaus in Klein-Meiseldorf
-
sofort
Beschreibung
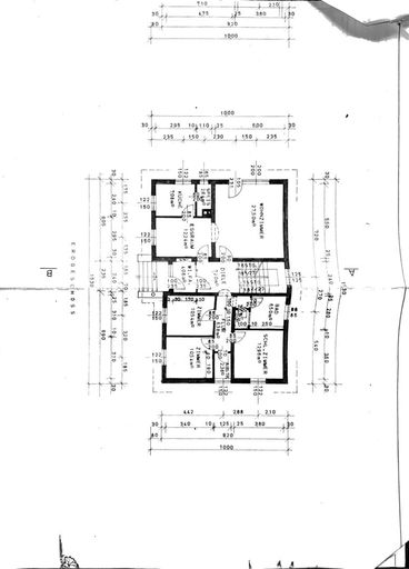
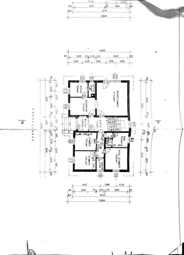
Willkommen in Ihrem neuen Zuhause in Klein-Meiseldorf, Niederösterreich! Dieses Einfamilienhaus aus dem Baujahr 1981 bietet eine solide Grundlage und viel Potenzial zur individuellen Gestaltung. Auf rund 115 m² Wohnfläche stehen Ihnen mehrere helle Räume zur Verfügung, die sich ideal für Familien oder Paare eignen.
Eckdaten im Überblick:
4 Zimmer ca. 115 m² Wohnfläche Öl-Heizung & Allesbrenner (gekoppelt) Warmwasserspeicher (200 Liter) im Keller Fenster, Fassade & Aluminium-Gartenzaun (erneuert 2013) Glasfaseranschluss vorhanden
Das Haus überzeugt durch seine funktionale Raumaufteilung und bietet eine gute Basis für modernes Wohnen. Gleichzeitig besteht die Möglichkeit, die Immobilie durch gezielte Renovierungs- und Modernisierungsmaßnahmen auf den aktuellen Stand...
Willkommen in Ihrem neuen Zuhause in Klein-Meiseldorf, Niederösterreich! Dieses Einfamilienhaus aus dem Baujahr 1981 bietet eine solide Grundlage und viel Potenzial zur individuellen Gestaltung. Auf rund 115 m² Wohnfläche stehen Ihnen mehrere helle Räume zur Verfügung, die sich ideal für Familien oder Paare eignen.
Eckdaten im Überblick:
4 Zimmer
ca. 115 m² Wohnfläche
Öl-Heizung & Allesbrenner (gekoppelt)
Warmwasserspeicher (200 Liter) im Keller
Fenster, Fassade & Aluminium-Gartenzaun (erneuert 2013)
Glasfaseranschluss vorhanden
Das Haus überzeugt durch seine funktionale Raumaufteilung und bietet eine gute Basis für modernes Wohnen. Gleichzeitig besteht die Möglichkeit, die Immobilie durch gezielte Renovierungs- und Modernisierungsmaßnahmen auf den aktuellen Stand zu bringen und nach eigenen Vorstellungen zu gestalten. Die vorhandene Kombination aus Ölofen und Allesbrenner sorgt für flexible Heizmöglichkeiten – beim Betrieb des Allesbrenners schaltet sich der Ölofen automatisch ab. Die Lage in Klein-Meiseldorf bietet ruhiges Wohnen in angenehmer Umgebung und eignet sich ideal für alle, die sich ein Eigenheim mit Entwicklungspotenzial wünschen.
Dieses Einfamilienhaus verbindet eine solide Substanz mit vielfältigen Möglichkeiten – überzeugen Sie sich selbst und verwirklichen Sie hier Ihr persönliches Wohnprojekt! Vereinbaren Sie noch heute einen Besichtigungstermin unter folgenden Kontaktdaten: Daniel Robin Schmidt +436765553920 oder schmidt@immobilien-sablatnig.at
Wir weisen darauf hin, dass zwischen dem Vermittler und dem zu vermittelnden Dritten ein familiäres oder wirtschaftliches Naheverhältnis besteht.
Der Vermittler ist als Doppelmakler tätig.
Infrastruktur / Entfernungen
Gesundheit
Arzt <6.500m
Klinik <6.000m
Apotheke <6.000m
Krankenhaus <6.500m
Kinder & Schulen
Schule <2.500m
Kindergarten <2.500m
Höhere Schule <2.500m
Nahversorgung
Supermarkt <500m
Bäckerei <6.000m
Einkaufszentrum <8.500m
Sonstige
Bank <2.500m
Geldautomat <2.500m
Post <2.500m
Polizei <6.000m
Verkehr
Bus <500m
Bahnhof <2.500m
Angaben Entfernung Luftlinie / Quelle: OpenStreetMap
Objektdaten
Ausstattung
- Gartennutzung
- Rolladen
- Bad mit Badewanne
- Bad mit Fenster
- Einbauküche
- Fliesenboden
- Parkettboden
- Etage Heizung
- Befeuerung mit Öl
- Ausrichtung Balkon/Terrasse - Südost
- Satteldach
- Massiv Bauweise
Zustand
- Zustand
- GEPFLEGT
- Baujahr
- 1981
- Alter
- NEUBAU
- HWB
- 154.9 kWh/m² pro Jahr
- Klasse HWB
- E
- fGEE
- 1.67
- Klasse fGEE
- C
Flächen
- Anzahl der Zimmer
- 4
- Anzahl der Badezimmer
- 2
- Anzahl der sep. WCs
- 1
- Anzahl der Balkone
- 1
- Wohnfläche
- 115m²
- Grundstücksfläche
- 845m²
- Kellerfläche
- 115m²
Kosten
- Kaufpreis Brutto
- € 249.000,00
- Betriebskosten
- € 250,00
Verwaltung
- Verfügbar ab
- sofort
Häuser zum Kaufen im Umkreis von Meiseldorf
Häuser zum Kaufen im Umkreis von Meiseldorf
Häuser zum Kaufen in Österreich
Andere Besucher suchen nach...
- Grundstücke kaufen in 3400 Weidlingbach
- Wohnungen kaufen in 4663 Laakirchen
- Häuser in 7471 Rechnitz
- Wohnungen in 2410 Hainburg an der Donau
- Häuser kaufen in 2432 Schwadorf
- Wohnungen kaufen in 3002 Purkersdorf
- Häuser in 3150 Wilhelmsburg
- Wohnungen kaufen in 3470 Engelmannsbrunn
- Grundstücke kaufen im Bezirk Mattersburg
- Grundstücke kaufen im Bezirk Gmunden