Exposé - Repräsentatives Wohnen & Arbeiten in Possau — Büro, Kundenbereich und private Wellnessoase
Beschreibung
Elegantes, massiv gebautes Einfamilienhaus in ruhiger Lage von Possau / Maria Saal: ideal für Käufer, die ein hochwertiges, energieeffizientes Domizil in Kärnten suchen (Haus kaufen Maria Saal, Einfamilienhaus Possau, Haus Kärnten). Ausstattungshighlights: Photovoltaik mit Fronius GEN24 (12 kW), geoTHERMplus-Wärmepumpe (Tiefbohrung), kontrollierte Wohnraumlüftung, Wellnessbereich und großzügige Werkstatt.
Kellergeschoss — 89,02 m²
Der durchdachte Wohnkeller bietet einen repräsentativen Wellness- und Arbeitsbereich (Wohnkeller mit Sauna, Haus mit Dampfbad): Dampfsauna, Infrarotsauna, Solarium und Dusche schaffen privaten Spa-Komfort (Haus mit Sauna, Wellnesshaus Kärnten). Angrenzend befindet sich ein großer Raum, aktuell genutzt als Büro und Kundenbereich — ideal für Selbständige oder Käufer, die ein Haus mit...
Elegantes, massiv gebautes Einfamilienhaus in ruhiger Lage von Possau / Maria Saal: ideal für Käufer, die ein hochwertiges, energieeffizientes Domizil in Kärnten suchen (Haus kaufen Maria Saal, Einfamilienhaus Possau, Haus Kärnten). Ausstattungshighlights: Photovoltaik mit Fronius GEN24 (12 kW), geoTHERMplus-Wärmepumpe (Tiefbohrung), kontrollierte Wohnraumlüftung, Wellnessbereich und großzügige Werkstatt.
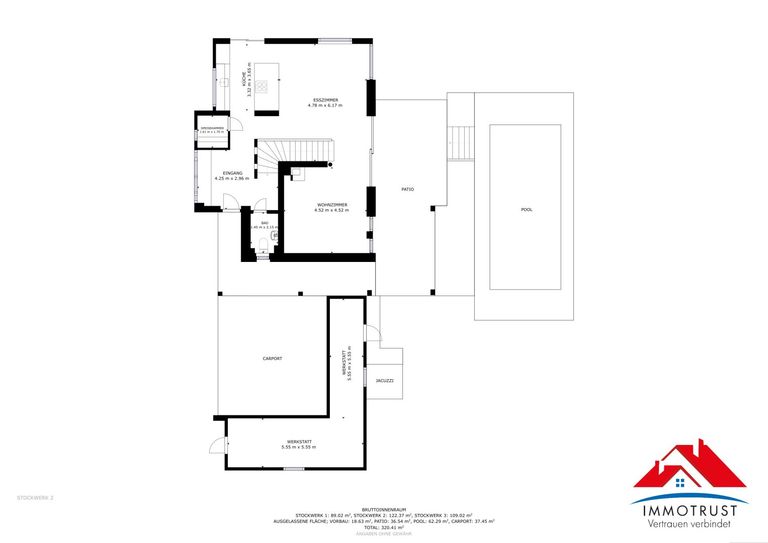
Kellergeschoss — 89,02 m²
Der durchdachte Wohnkeller bietet einen repräsentativen Wellness- und Arbeitsbereich (Wohnkeller mit Sauna, Haus mit Dampfbad): Dampfsauna, Infrarotsauna, Solarium und Dusche schaffen privaten Spa-Komfort (Haus mit Sauna, Wellnesshaus Kärnten). Angrenzend befindet sich ein großer Raum, aktuell genutzt als Büro und Kundenbereich — ideal für Selbständige oder Käufer, die ein Haus mit Büro / Praxisraum suchen (Haus mit Büro, Home-Office Possau). Unter der Treppe eine stilvolle Weinnische in Klinkeroptik. Wirtschaftsraum und Heizraum beherbergen die geoTHERMplus-Wärmepumpe mit Tiefbohrung; die Anlage arbeitet mit kontrollierter Wohnraumlüftung und sorgt für effizientes, gesundes Raumklima (energieeffizientes Haus, Haus mit Wärmepumpe). Alle Kellerräume sind durch Oberlichter freundlich und hell.
Erdgeschoss — 122,37 m²
Ein großzügiger, heller Eingangsbereich führt in die offen gestaltete Wohnzone. Rechts befindet sich ein geräumiges Gäste-WC mit Fenster (Gäste-WC Haus). Die moderne Wohnküche ist mit einer luxuriösen Marinace-Gold Granit-Natursteinarbeitsplatte und Miele-Geräten ausgestattet — perfekt für Genießer und Kochbegeisterte (Küche Miele, Küche mit Granit). Neben der Küche: Speisekammer mit Fenster (Speisekammer Haus). Robuste 61×61 cm Feinsteinzeug-Fliesen in Steinoptik sorgen in Eingangsbereich, Küche und Gästetoilette für elegante Langlebigkeit.
Der fließende Übergang zwischen Küche, Esszimmer und Wohnzimmer schafft ein offenes Wohngefühl; große, bodentiefe Fenster vermitteln den Eindruck, im Grünen zu sitzen (offener Wohnbereich, Wohnzimmer mit Panoramafenster). Vom Esszimmer reicht die Aussicht bis zu den Karawanken (Aussicht Kärnten). Wohnzimmer und Essbereich sind mit Eichenparkett ausgelegt; das Wohnzimmer wird durch einen modernen weißen Eckkamin ergänzt. Über die bodentiefen Fenster gelangt man direkt auf die Terrasse (Patio/Terrasse 36,54 m²) — überdachter Sitzplatz und Sonnendeck mit elektrisch ausfahrbarer Markise; Terrasse, Carport und Eingangsbereich sind mit edlen Bangkirai-Holzdielen belegt (Terrasse Bangkirai, Carport Holzdeck).
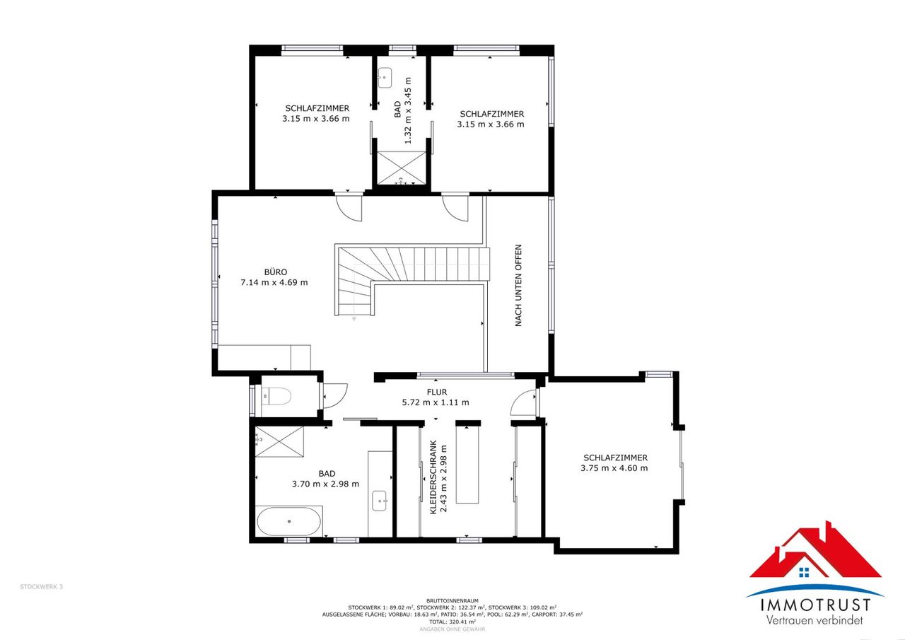
Obergeschoss — 109,02 m²
Das Obergeschoss öffnet sich zu einem großzügigen Büro mit weitem Ausblick und indirekter Beleuchtung — ideal für anspruchsvolle Home-Office-Nutzer (Büro im Haus, Home-Office Maria Saal). Gegenüber befindet sich eine offene Empore mit Klavierbereich; die akustische Offenheit macht das Haus zur idealen Wahl für Musizierende (Empore, Haus mit Musikzimmer). Im Südosten: zwei Zimmer mit angeschlossenem Bad (Kinderzimmer mit Bad). Am Nordostflügel liegen Elternschlafzimmer, Ankleide und ein großzügiges Badezimmer mit Wanne und Dusche; Badezimmer und Nassbereiche sind mit großformatigem Feinsteinzeug in warmen Tönen ausgestattet. Alle Wohn- und Schlafräume im Obergeschoss (außer Bäder/WC) sind mit Eichenparkett ausgelegt. Das Treppenhaus besticht durch ein randloses Glasgeländer, das Großzügigkeit und moderne Ästhetik unterstreicht (Glasgeländer Treppe).
Außen & Nebengebäude
Carport: 37,45 m² (Carport Possau)
Werkstatt: 61,60 m² — großzügig, ideal für Hobby, Werkstattbetrieb oder Lager (Haus mit Werkstatt).
Patio / Terrasse: 36,54 m² mit überdachtem Sitzplatz und Sonnendeck.
Die Photovoltaikanlage mit 38 leistungsstarken Modulen und Fronius GEN24 (12 kW) ist dezent installiert und macht das Objekt zum attraktiven Haus mit PV-Anlage und Stromertrag (Photovoltaik Kärnten, Haus mit Photovoltaik). Edle Schaltermaterialien von Legrand (Galea Perlmutt), hochwertige Internorm-Fenster, Danatüren mit unsichtbaren Simonwerk-Beschlägen sowie eine Urmet-Gegensprechanlage mit Fernbedienung fürs elektrische Einfahrtstor runden die hochwertige Ausstattung ab.
Technik & Komfort
geoTHERMplus-Wärmepumpe mit Tiefbohrung (Haus mit Wärmepumpe, Wärmepumpe Tiefbohrung)
Kontrollierte Wohnraumlüftung mit Wärmerückgewinnung (Wohnraumlüftung Kärnten)
Photovoltaik + Fronius GEN24 12 kW (Photovoltaik Haus, Fronius GEN24)
Hochwertige Internorm-Fenster (Internorm Fenster), Bangkirai-Terrassenbelag, Eichenparkett (Eichenholzparkett)
Warum dieses Haus?
Dieses Einfamilienhaus in Possau / Maria Saal ist ideal für Familien, anspruchsvolle Käufer und Selbständige, die ein energieeffizientes Haus in Kärnten mit Wellnessbereich, Home-Office-Möglichkeit und großer Werkstatt suchen (Einfamilienhaus Maria Saal, Haus kaufen Possau, Haus mit Sauna, Haus mit PV).
Kurztext für Portale
Einfamilienhaus kaufen Possau / Maria Saal — 3 Ebenen, Wellness, Photovoltaik, geoTHERMplus-Wärmepumpe, Werkstatt, Carport. Hochwertige Ausstattung: Internorm-Fenster, Eichenparkett, Bangkirai-Terrasse. Ideal für Familie, Home-Office & Hobby.
(Suchbegriffe: Einfamilienhaus kaufen Possau, Haus kaufen Maria Saal, Haus Kärnten, Haus mit Sauna, Haus mit Photovoltaik)
Virtueller Rundgang & 360°-Ansicht
3D-Rundgang: https://my.matterport.com/show/?m=5Mx5sAu2t9Q
360°-Luftaufnahme (118 m über dem Haus): https://maps.app.goo.gl/rDfdijp22ojuPsC27
Der Vermittler ist als Doppelmakler tätig.
Infrastruktur / Entfernungen
Gesundheit
Arzt <4.000m
Apotheke <4.000m
Krankenhaus <8.500m
Klinik <9.500m
Kinder & Schulen
Schule <4.000m
Kindergarten <4.000m
Nahversorgung
Supermarkt <4.000m
Bäckerei <8.000m
Einkaufszentrum <7.500m
Sonstige
Bank <4.000m
Geldautomat <4.000m
Polizei <4.000m
Post <5.500m
Verkehr
Bus <1.500m
Autobahnanschluss <3.500m
Bahnhof <4.000m
Flughafen <5.500m
Angaben Entfernung Luftlinie / Quelle: OpenStreetMap
Objektdaten
Ausstattung
- Gartennutzung
- Rollstuhlgerecht
- Kabel/SAT-TV
- Swimmingpool
- Wasch-/Trockenraum
- Wellnessbereich
- Fahrradraum
- Rolladen
- Bibliothek
- Gäste-WC
- Bad mit Badewanne
- Bad mit Fenster
- Bad mit Pissoir
- Einbauküche
- Offene Küche
- Fliesenboden
- Parkettboden
- Zentralheizung
- Erdwärme
- Ausrichtung Balkon/Terrasse - Südwest
- Kamera
- Flachdach
- Massiv Bauweise
Flächen
- Anzahl der Zimmer
- 4.5
- Anzahl der Terrassen
- 1
- Wohnfläche
- 231m²
- Nutzfläche
- 320m²
- Grundstücksfläche
- 1.500m²
- Kellerfläche
- 89m²
- Terrassenfläche
- 1m²
Kosten
- Kaufpreis Brutto
- € 1.240.000,00
Häuser zum Kaufen im Umkreis von Maria Saal
Häuser zum Kaufen im Umkreis von Maria Saal
Häuser zum Kaufen in Österreich
Andere Besucher suchen nach...
- Grundstücke kaufen in 3400 Weidlingbach
- Wohnungen kaufen in 4663 Laakirchen
- Häuser in 7471 Rechnitz
- Wohnungen in 2410 Hainburg an der Donau
- Häuser kaufen in 2432 Schwadorf
- Wohnungen kaufen in 3002 Purkersdorf
- Häuser in 3150 Wilhelmsburg
- Wohnungen kaufen in 3470 Engelmannsbrunn
- Grundstücke kaufen im Bezirk Mattersburg
- Grundstücke kaufen im Bezirk Gmunden