Großzügiges Einfamilienhaus mit Terrasse, Garten, Garage & 2 Grundstücken in Möderndorf / Maria Saal
Beschreibung
Dieses großzügige und vielseitig nutzbare Einfamilienhaus in 9063 Möderndorf / Maria Saal bietet ein Gesamtpaket, das am Markt nur selten zu finden ist: große Wohnfläche, viel Nutzfläche, mehrere Etagen, schöner Garten, Terrasse, Balkon, Garage, Gartenhaus sowie zusätzliche Fläche für Besucherfahrzeuge. Die Immobilie eignet sich ideal für Käufer, die ein Haus in Kärnten, ein großes Familienhaus, ein Mehrgenerationenhaus, ein Haus mit Homeoffice, ein Haus mit Garten und Garage oder ein Einfamilienhaus nahe Klagenfurt suchen.
Unter Zugrundelegung deiner korrigierten Flächenangaben stehen hier insgesamt ca. 341,1 m² Nutzfläche zur Verfügung, wovon ca. 230,6 m² als Wohnfläche gelten. Das Haus überzeugt durch eine durchdachte...
Dieses großzügige und vielseitig nutzbare Einfamilienhaus in 9063 Möderndorf / Maria Saal bietet ein Gesamtpaket, das am Markt nur selten zu finden ist: große Wohnfläche, viel Nutzfläche, mehrere Etagen, schöner Garten, Terrasse, Balkon, Garage, Gartenhaus sowie zusätzliche Fläche für Besucherfahrzeuge. Die Immobilie eignet sich ideal für Käufer, die ein Haus in Kärnten, ein großes Familienhaus, ein Mehrgenerationenhaus, ein Haus mit Homeoffice, ein Haus mit Garten und Garage oder ein Einfamilienhaus nahe Klagenfurt suchen.
Unter Zugrundelegung deiner korrigierten Flächenangaben stehen hier insgesamt ca. 341,1 m² Nutzfläche zur Verfügung, wovon ca. 230,6 m² als Wohnfläche gelten. Das Haus überzeugt durch eine durchdachte Aufteilung auf Keller-/Untergeschoss, Erdgeschoss und Obergeschoss und bietet damit viel Raum für Familie, Arbeiten, Gäste, Hobby und Lagerung. Im Exposé sind insgesamt 7 Zimmer, 2 Bäder, 2 WCs, 1 Garage, 1 Balkon und 6 Abstellräumeausgewiesen; ausgeführt ist das Gebäude in Massivbauweise mit Satteldach, Fliesen-, Parkett- und Steinböden, Einbauküche, Alarmanlage, außenliegendem Sonnenschutz sowie Doppel- bzw. Mehrfachverglasung. Beheizt wird das Haus über eine Zentralheizung mit Pellets.
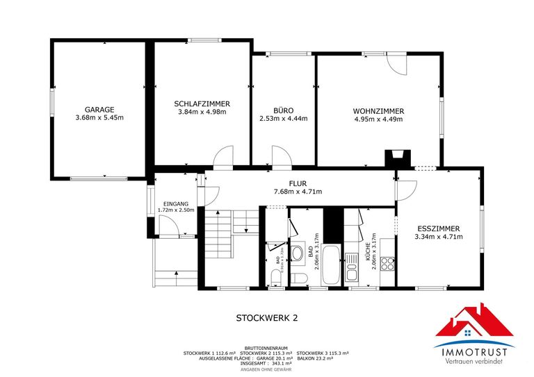
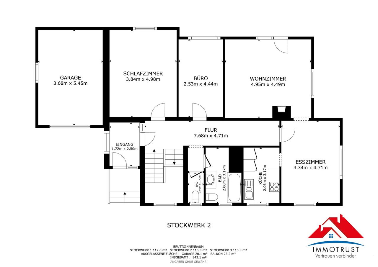
Bereits das Erdgeschoss präsentiert sich als klassische und äußerst wohnfreundliche Hauptwohnebene. Laut Exposé und Grundriss befinden sich hier unter anderem ein großzügiges Wohnzimmer, ein separates Esszimmer, eine Küche, ein Schlafzimmer, ein weiteres Zimmer bzw. Büro, ein Badezimmer, ein separates WC, der Eingangsbereich sowie der zentrale Flur. Besonders attraktiv ist die Anbindung an den Außenbereich: Vom Wohnzimmer im Erdgeschoss gelangt man direkt auf die Terrasse, und von dort weiter in den tollen Garten. Genau diese Verbindung aus Innen- und Außenraum macht das Haus für Familien, Gartenliebhaber und Käufer mit Anspruch an Wohnqualität besonders interessant. Auch die Garage ist auf dieser Ebene funktional eingebunden, was die Alltagstauglichkeit der Immobilie zusätzlich stärkt. Die Fotos im Exposé zeigen außerdem Wohnzimmer, Esszimmer, Küche, Terrasse und Eingangsbereich dieser Ebene.
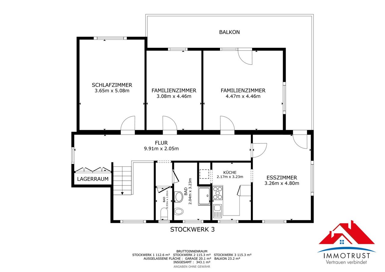
Das Obergeschoss erweitert das Raumangebot noch einmal deutlich und schafft ideale Voraussetzungen für eine große Familie oder für Wohnen mit mehreren Generationen. Laut Grundriss stehen hier ein Schlafzimmer, zwei weitere Familienzimmer, ein Esszimmer, eine Küche, ein Badezimmer, ein separates WC, ein großzügiger Flur sowie der Balkon zur Verfügung. Dadurch entsteht eine Struktur, die nicht nur viel Platz bietet, sondern auch unterschiedliche Nutzungsszenarien zulässt – etwa als Familienetage, Gästebereich, Rückzugszone für Kinder und Jugendliche oder als Kombination aus Wohnen und Arbeiten. Der im Exposé ausgewiesene Balkon ergänzt diese Ebene um einen attraktiven Außenbereich mit schönem Wohnwert. Zudem sind laut Ausstattung Bergblick, Fernblick und Grünblick vorhanden, was den qualitativen Gesamteindruck zusätzlich aufwertet.
Ein wesentlicher Mehrwert liegt im Keller- bzw. Untergeschoss, das weit über klassische Nebenflächen hinausgeht. Dort zeigen die Pläne und Fotos mehrere Lagerräume, einen Heizungsraum, einen Pelletraum, einen Flur sowie einen zusätzlichen Büro- bzw. Nutzraum. Gerade für Käufer, die gezielt nach einem Haus mit viel Stauraum, Haus mit Lagerflächen, Haus mit Keller, Haus mit Werkstattpotenzial, Haus mit Hobbyräumen oder Haus mit separatem Arbeitsbereich suchen, ist das ein starkes Verkaufsargument. Die vorhandene Pellet-Zentralheizung ist in diesem Bereich untergebracht und unterstreicht gemeinsam mit dem separaten Pelletraum die funktionale und nachhaltige Ausrichtung der Haustechnik.
Auch das Grundstücksprofil ist ein wesentliches Asset dieser Liegenschaft. Das Grundstück 130/1 mit 1.072,6 m² ist vollständig als A1 Dorfgebiet gewidmet und damit Bauland. Auf diesem Grundstück befinden sich das Wohnhaus, die Garage und das Gartenhaus. Zusätzlich gehört das Grundstück 131 mit 127,5 m² zur Liegenschaft. Dieses zusätzliche Grundstück ist kein Bauland, sondern als Land- bzw. forstwirtschaftliche Nutzfläche ausgewiesen. Nach deinen Angaben wurde es vom Eigentümer dazugekauft und bislang dazu genutzt, Besucherfahrzeuge abzustellen, was in der praktischen Nutzung einen spürbaren Mehrwert für Gäste, Familie oder zusätzliche Stellmöglichkeiten bietet.
Das Haus richtet sich damit an eine besonders attraktive Zielgruppe: an Käufer, die ein großes Einfamilienhaus in Maria Saal, ein Haus im Grünen in Kärnten, ein Familienhaus mit Terrasse und Garten, ein Mehrgenerationenhaus mit vielen Zimmern, ein Haus mit Büro, ein Haus mit Pelletheizung, ein Haus mit Garage und Gartenhaus oder ein Haus nahe Klagenfurt mit viel Platz suchen. Gerade durch die Kombination aus Wohnfläche, Nutzfläche, Etagenstruktur, Terrasse, Balkon, Garten, Garage, Gartenhaus und Zusatzgrundstückhebt sich diese Immobilie klar vom Standardangebot ab.
Auch infrastrukturell ist die Liegenschaft gut positioniert. Im Exposé sind unter anderem Bus in ca. 650 m, Autobahnanschluss in ca. 1.650 m, Bahnhof in ca. 1.825 m sowie Nahversorger, Schulen, Bank und weitere Einrichtungen in praktikabler Distanz angeführt. Damit verbindet die Immobilie ruhiges, naturnahes Wohnen mit einer guten Erreichbarkeit des Kärntner Zentralraums.
Dieses Haus ist ideal für alle, die eine großzügige, solide und vielseitig nutzbare Liegenschaft mit Pellet-Zentralheizung, mehreren Wohnebenen, terrassen- und gartenorientiertem Wohnbereich, Balkon, Garage, Gartenhaus und zusätzlicher Fläche für Besucherfahrzeuge suchen. Eine seltene Gelegenheit für Käufer, die in Möderndorf / Maria Saal ein Einfamilienhaus mit viel Platz, starkem Grundriss und langfristigem Wohnwerterwerben möchten.
Der Vermittler ist als Doppelmakler tätig.
Infrastruktur / Entfernungen
Gesundheit
Arzt <2.500m
Apotheke <2.000m
Krankenhaus <7.500m
Klinik <7.500m
Kinder & Schulen
Schule <2.500m
Kindergarten <5.000m
Universität <8.500m
Höhere Schule <9.000m
Nahversorgung
Supermarkt <2.000m
Bäckerei <6.000m
Einkaufszentrum <8.000m
Sonstige
Bank <2.000m
Geldautomat <5.500m
Post <6.500m
Polizei <2.500m
Verkehr
Bus <1.000m
Autobahnanschluss <2.000m
Bahnhof <2.000m
Flughafen <6.500m
Angaben Entfernung Luftlinie / Quelle: OpenStreetMap
Objektdaten
Ausstattung
- Gartennutzung
- Vollmöbliert
- Kabel/SAT-TV
- Wasch-/Trockenraum
- Bad mit Dusche
- Bad mit Badewanne
- Einbauküche
- Fliesenboden
- Steinboden
- Parkettboden
- Zentralheizung
- Ausrichtung Balkon/Terrasse - Ost
- Ausrichtung Balkon/Terrasse - Süd
- Alarmanlage
- Satteldach
- Massiv Bauweise
Dokumente / Links
Zustand
- Zustand
- GEPFLEGT
- Baujahr
- 1972
- Alter
- ALTBAU
- HWB
- 118 kWh/m² pro Jahr
- Klasse HWB
- D
- fGEE
- 1.31
- Klasse fGEE
- C
Flächen
- Anzahl der Zimmer
- 7
- Anzahl der Badezimmer
- 2
- Anzahl der sep. WCs
- 2
- Anzahl der Balkone
- 1
- Wohnfläche
- 231m²
- Nutzfläche
- 341m²
- Grundstücksfläche
- 1.200m²
Kosten
- Kaufpreis Brutto
- € 595.000,00
Häuser zum Kaufen im Umkreis von Maria Saal
Häuser zum Kaufen im Umkreis von Maria Saal
Häuser zum Kaufen in Österreich
Andere Besucher suchen nach...
- Grundstücke kaufen in 3400 Weidlingbach
- Wohnungen kaufen in 4663 Laakirchen
- Häuser in 7471 Rechnitz
- Wohnungen in 2410 Hainburg an der Donau
- Häuser kaufen in 2432 Schwadorf
- Wohnungen kaufen in 3002 Purkersdorf
- Häuser in 3150 Wilhelmsburg
- Wohnungen kaufen in 3470 Engelmannsbrunn
- Grundstücke kaufen im Bezirk Mattersburg
- Grundstücke kaufen im Bezirk Gmunden