TRAUMHAFTES REIHENHAUS IN STETTEN! 4 Zimmer, Garten, Terrasse – Ihr neues Zuhause!
Beschreibung
Ihr neues Zuhause in Stetten, Niederösterreich – stilvoll, ruhig und familienfreundlich
Willkommen in Ihrem neuen Zuhause! Dieses gepflegte Reihenhaus in Stetten, Niederösterreich, vereint modernen Wohnkomfort mit einer naturnahen Lage – perfekt für Familien und alle, die das Leben im Grünen genießen möchten.
Eckdaten im Überblick:
-
Neuwertiger Zustand
-
4 Zimmer
-
Baujahr 2003
-
Zentral begehbar
-
Ca. 112 m² Wohnfläche
-
Ca. 50 m² Garten
-
Überdachte Terrasse
-
Parkett- und Fliesenböden
-
Süd-Ausrichtung
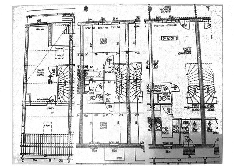
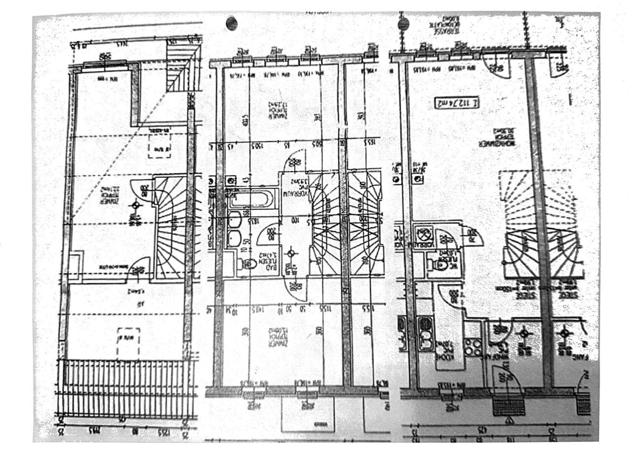
Auf drei Ebenen verteilen sich rund 112 m² Wohnfläche mit einer durchdachten Raumaufteilung....
Ihr neues Zuhause in Stetten, Niederösterreich – stilvoll, ruhig und familienfreundlich
Willkommen in Ihrem neuen Zuhause! Dieses gepflegte Reihenhaus in Stetten, Niederösterreich, vereint modernen Wohnkomfort mit einer naturnahen Lage – perfekt für Familien und alle, die das Leben im Grünen genießen möchten.
Eckdaten im Überblick:
Neuwertiger Zustand
4 Zimmer
Baujahr 2003
Zentral begehbar
Ca. 112 m² Wohnfläche
Ca. 50 m² Garten
Überdachte Terrasse
Parkett- und Fliesenböden
Süd-Ausrichtung
Auf drei Ebenen verteilen sich rund 112 m² Wohnfläche mit einer durchdachten Raumaufteilung. Die lichtdurchfluteten Zimmer schaffen eine freundliche, einladende Atmosphäre. Das absolute Highlight: Der ausgebaute Dachboden, der als größtes Schlafzimmer genutzt wird – ideal als Elternschlafzimmer oder Rückzugsort mit viel Platz.
Der offene Wohn- und Essbereich mit moderner Einbauküche lädt zum Kochen und Verweilen ein. Ob gemütliche Familienabende oder gesellige Stunden mit Freunden – hier finden Sie den idealen Rahmen für schöne gemeinsame Momente.
Das Badezimmer mit Badewanne bietet Entspannung pur. Zwei separate WCs sorgen für zusätzlichen Komfort – besonders praktisch im Familienalltag.
Ein weiteres Plus ist der liebevoll angelegte Garten mit überdachter Terrasse – perfekt, um sonnige Tage im Freien zu genießen. Ob beim Frühstück im Grünen oder beim Spielen mit den Kindern – hier finden Sie Ihre persönliche Wohlfühloase mit Blick ins Grüne.
Die Ausstattung mit hochwertigem Parkett und stilvollen Fliesen sorgt nicht nur für ein modernes Wohnambiente, sondern ist auch besonders pflegeleicht. Beheizt wird das Haus mittels Etagenheizung über Fernwärme – effizient und komfortabel zugleich. Eine Garage rundet das Angebot ab und bietet sicheren Platz für Ihr Fahrzeug oder zusätzlichen Stauraum.
Die Lage ist ideal für Familien: Schulen, Kindergärten und Einkaufsmöglichkeiten befinden sich in unmittelbarer Nähe. Eine gute Anbindung an das öffentliche Verkehrsnetz (Busverbindungen) ermöglicht eine rasche Erreichbarkeit der umliegenden Städte.
Weitere Bilder folgen in Kürze – ein Blick lohnt sich!
Lassen Sie sich dieses charmante Haus nicht entgehen und vereinbaren Sie gleich einen Besichtigungstermin.
Für nähere Informationen steht Ihnen
Daniel Robin Schmidt gerne telefonisch zur Verfügung: +43 (0) 676 555 39 20
Wir weisen darauf hin, dass zwischen dem Vermittler und dem zu vermittelnden Dritten ein familiäres oder wirtschaftliches Naheverhältnis besteht.
Der Vermittler ist als Doppelmakler tätig.
Infrastruktur / Entfernungen
Gesundheit
Arzt <3.000m
Apotheke <4.500m
Krankenhaus <4.500m
Klinik <9.500m
Kinder & Schulen
Schule <500m
Kindergarten <500m
Universität <8.000m
Nahversorgung
Supermarkt <2.500m
Bäckerei <3.500m
Einkaufszentrum <6.500m
Sonstige
Bank <500m
Geldautomat <500m
Post <2.500m
Polizei <4.500m
Verkehr
Bus <500m
Autobahnanschluss <2.000m
Straßenbahn <8.500m
Bahnhof <1.500m
Angaben Entfernung Luftlinie / Quelle: OpenStreetMap
Objektdaten
Ausstattung
- Bad mit Badewanne
- Einbauküche
- Fliesenboden
- Parkettboden
- Etage Heizung
- Befeuerung mit Gas
- Fern Befeuerung
- Ausrichtung Balkon/Terrasse - Südwest
- Satteldach
- Massiv Bauweise
Zustand
- Zustand
- GEPFLEGT
- Baujahr
- 2003
- Alter
- NEUBAU
Flächen
- Anzahl der Zimmer
- 4
- Anzahl der Badezimmer
- 1
- Anzahl der sep. WCs
- 2
- Anzahl der Terrassen
- 1
- Wohnfläche
- 112m²
- Gartenfläche
- 40m²
- Kellerfläche
- 3m²
- Terrassenfläche
- 1m²
Kosten
- Kaufpreis Brutto
- € 375.000,00
- Betriebskosten
- € 381,00
- Sonstige Kosten
- € 218,00
Häuser zum Kaufen im Umkreis von Stetten
Häuser zum Kaufen im Umkreis von Stetten
Häuser zum Kaufen in Österreich
Andere Besucher suchen nach...
- Grundstücke kaufen in 3400 Weidlingbach
- Wohnungen kaufen in 4663 Laakirchen
- Häuser in 7471 Rechnitz
- Wohnungen in 2410 Hainburg an der Donau
- Häuser kaufen in 2432 Schwadorf
- Wohnungen kaufen in 3002 Purkersdorf
- Häuser in 3150 Wilhelmsburg
- Wohnungen kaufen in 3470 Engelmannsbrunn
- Grundstücke kaufen im Bezirk Mattersburg
- Grundstücke kaufen im Bezirk Gmunden